Thiết kế nhà 2 tầng mái Nhật chuẩn phong thuỷ đón tài lộc | MH05704
| Chủ đầu tư: Anh Võ Văn Hồng | Số tầng: 2 |
| Địa chỉ: An Đông, TPHCM | Diện tích xây dựng: 9,6 x 14,7m |
| Loại hình: Nhà mái Nhật hiện đại | Tổng diện tích: 224m2 |
Công năng:
|
|
Nhà 2 tầng mái Nhật hiện đại đang trở thành xu hướng được nhiều gia chủ lựa chọn nhờ vẻ đẹp tinh tế, sang trọng và khả năng đáp ứng phong thủy tuyệt vời. Với mẫu thiết kế nhà đẹp Maxhome đã khéo léo kết hợp hình khối hiện đại cùng hệ mái Nhật thanh thoát, tạo nên không gian sống thoáng mát, hài hòa và đón trọn vượng khí cho gia đình.
Hình ảnh dưới đây ghi lại hiện trạng khu đất của gia đình anh Hồng tại An Đông, TP.HCM. Sau khi khảo sát thực tế và trao đổi chi tiết về nhu cầu – sở thích của gia chủ, đội ngũ kiến trúc sư Maxhome đã đề xuất phương án thiết kế 3D hoàn chỉnh cho mẫu nhà mái Nhật 2 tầng. Bản thiết kế không chỉ phù hợp với diện tích khu đất mà còn tối ưu công năng, đảm bảo thẩm mỹ và mang đến một không gian sống sang trọng, tiện nghi cho cả gia đình.

Mẫu nhà 2 tầng mái Nhật trở nên nổi bật nhờ sự phối hợp hài hòa giữa màu sắc và vật liệu trang trí. Tổng thể công trình sử dụng gam trắng sứ làm chủ đạo, giúp ngôi nhà trông sáng sủa, tinh tế và hiện đại. Ở một số diện tường và mảng phân tầng, kiến trúc sư khéo léo nhấn nhá bằng sắc xanh ghi, tạo chiều sâu thị giác và tăng thêm tính thẩm mỹ cho mặt tiền. Sự kết hợp này mang đến vẻ đẹp thanh lịch nhưng vẫn đầy điểm nhấn cho công trình.

Hệ cột của công trình được thiết kế hài hòa giữa sự mạnh mẽ và mềm mại. Tầng 1 sử dụng cột vuông vức, tạo cảm giác vững chãi cho toàn bộ ngôi nhà, trong khi tầng 2 lại được bố trí cột tròn thanh thoát, góp phần nâng đỡ hệ mái phía trên một cách cân đối và sang trọng. Phần chân cột được sơn giả đá cao cấp, mang đến vẻ đẹp bề thế và tăng tính thẩm mỹ cho mặt tiền.
Bên cạnh đó, chân tường và các bồn hoa đều được ốp đá chẻ, vừa tăng độ bền, vừa tạo điểm nhấn tự nhiên cho công trình. Mỗi bồn hoa được Maxhome thiết kế cao khoảng 40cm, trở thành khu vực lý tưởng để gia chủ và các thành viên thỏa sức sáng tạo, trồng thêm cây xanh hoặc hoa trang trí, giúp không gian sống luôn tươi mát và sinh động.

Góc nhìn từ sảnh phụ của mẫu nhà vườn vẫn toát lên vẻ sang trọng và tinh tế, không hề thua kém sảnh chính. Lan can ban công được chế tác từ sắt sơn mỹ thuật cao cấp, trang trí bằng các hoa văn mềm mại, tỉ mỉ, giúp tổng thể kiến trúc thêm phần hài hòa và bắt mắt. Thiết kế không chỉ đảm bảo an toàn tối đa cho người sử dụng mà còn góp phần nâng cao giá trị thẩm mỹ, mang đến sự đồng bộ và sang trọng cho toàn bộ ngôi nhà.

Tại vị trí cửa chính, chúng tôi sử dụng hệ cửa thép vân gỗ cao cấp, mang đến vẻ đẹp sang trọng và độ bền vượt trội. Toàn bộ các cửa đi còn lại và hệ thống cửa sổ được thiết kế từ nhôm hệ kết hợp kính cường lực, tạo nên sự đồng bộ và hiện đại cho tổng thể công trình. Giải pháp này không chỉ giúp không gian luôn thông thoáng mà còn tận dụng tối đa ánh sáng tự nhiên, góp phần tiết kiệm năng lượng và tăng tính thẩm mỹ cho ngôi nhà.

Quan sát từ góc nhìn 3D có thể thấy công trình nhà 2 tầng mái Nhật sử dụng hệ mái lợp ngói Fuji màu xanh than, mang lại vẻ đẹp hiện đại và hài hòa cho tổng thể kiến trúc. Ở vị trí cuối mái, chúng tôi chừa một khoảng diện tích hợp lý để lắp đặt bồn nước và hệ thống máy nước nóng năng lượng mặt trời.

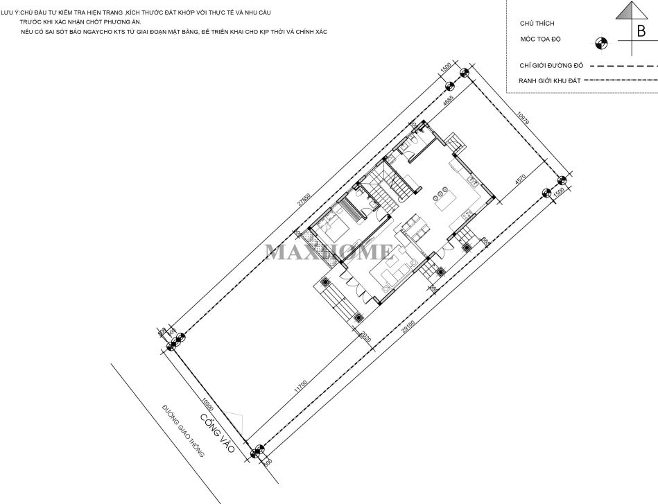
Mặt bằng định vị cho thấy khuôn viên đất được bố trí theo hướng Tây Nam, với kích thước 9,6 x 14,7m. Tổng diện tích xây dựng và sử dụng của công trình vào khoảng 224m², đáp ứng tốt nhu cầu sinh hoạt của gia đình. Bản vẽ định vị cũng giúp xác định rõ ràng ranh giới khu đất, vị trí công trình trên nền đất hiện trạng và đảm bảo phương án thi công được triển khai chính xác, khoa học.

Từ sảnh chính bước vào là không gian phòng khách kết hợp phòng thờ được bố trí trang trọng và hợp phong thủy. Ngăn cách với khu vực này là hệ vách lam hiện đại, dẫn lối đến phòng bếp ăn rộng rãi, có cửa mở ra sảnh phụ giúp không khí lưu thông tốt và mang lại sự thoáng mát cho toàn bộ tầng một. Tầng 1 còn được bố trí một phòng ngủ có nhà vệ sinh khép kín tiện nghi, phù hợp cho người lớn tuổi hoặc khách lưu trú. Ngoài ra, cuối nhà có thêm một nhà vệ sinh chung, đáp ứng nhu cầu sinh hoạt của cả gia đình một cách thuận tiện.

Tầng 2 được thiết kế với một phòng sinh hoạt chung rộng rãi, có cửa mở ra ban công phụ bên hông, tạo không gian thư giãn thoáng đãng cho các thành viên trong gia đình. Khu vực này còn bao gồm 3 phòng ngủ được bố trí khoa học, đảm bảo sự riêng tư và tiện nghi. Trong đó, phòng ngủ 02 sở hữu nhà vệ sinh khép kín, mang đến sự thuận tiện cho người sử dụng. Cuối tầng là nhà vệ sinh chung cùng khu vực phụ phục vụ nhu cầu sinh hoạt hằng ngày, góp phần hoàn thiện công năng của toàn bộ tầng 2.












