Thiết kế nhà 2 tầng mái Nhật mặt tiền 15m đẹp hút mắt tại Thanh Hoá | MH05584
| Chủ đầu tư: Anh Vũ Trọng Anh | Số tầng: 2 |
| Địa chỉ: Triệu Sơn, Thanh Hoá | Diện tích xây dựng: 15 x 12,6m |
| Loại hình: Nhà mái Nhật hiện đại | Tổng diện tích: 300m2 |
Công năng:
|
|
Ngôi nhà 2 tầng mái Nhật mặt tiền 15m tại Thanh Hóa là một trong những công trình nổi bật do Maxhome thiết kế và thi công trọn gói. Với phong cách kiến trúc hiện đại pha chút tân cổ điển tinh tế, công trình không chỉ mang vẻ đẹp sang trọng, bề thế mà còn đáp ứng đầy đủ công năng cho gia đình nhiều thế hệ. Đây chắc chắn là một mẫu nhà lý tưởng dành cho những ai yêu thích không gian sống tiện nghi, gần gũi với thiên nhiên nhưng vẫn toát lên nét đẳng cấp riêng.
Ngôi nhà 2 tầng mái Nhật được thiết kế với hình khối vuông vắn, cân đối, thể hiện rõ nét phong cách kiến trúc hiện đại mà vẫn giữ được vẻ sang trọng và tinh tế. Gam màu trắng chủ đạo kết hợp cùng màu ghi điểm xuyết ở một số mảng tường giúp công trình thêm chiều sâu và tạo cảm giác trang nhã. Đặc biệt, các cột trụ được ốp gạch granite cao cấp không chỉ tăng tính thẩm mỹ mà còn giúp bảo vệ bề mặt công trình khỏi tác động của thời tiết, mang lại vẻ đẹp bền vững theo thời gian.

Ngôi nhà 2 tầng mái Nhật sở hữu mặt tiền rộng lên đến 15m, tạo điều kiện thuận lợi để các kiến trúc sư thỏa sức sáng tạo trong việc bố trí và trang trí ngoại thất. Toàn bộ mặt tiền được thiết kế cân đối, phối màu hài hòa giữa các mảng tường, mang đến tổng thể tinh tế và bắt mắt. Đặc biệt, phần trần được ốp gỗ nhựa cao cấp, không chỉ giúp tăng tính thẩm mỹ mà còn chống ẩm, chống cong vênh hiệu quả, góp phần hoàn thiện vẻ đẹp sang trọng và hiện đại cho công trình.

Ngôi nhà 2 tầng mái Nhật được thiết kế với hệ thống cửa sổ bố trí đều quanh nhà, giúp không gian bên trong luôn tràn ngập ánh sáng tự nhiên. Toàn bộ cửa đều sử dụng chất liệu nhôm kính cường lực cao cấp, mang đến vẻ đẹp hiện đại, sang trọng đồng thời tăng khả năng cách âm, cách nhiệt hiệu quả. Thiết kế này không chỉ giúp tối ưu sự thông thoáng và gắn kết với thiên nhiên bên ngoài, mà còn đảm bảo độ bền và an toàn tuyệt đối cho ngôi nhà.

Từ góc nhìn trên cao, ngôi nhà 2 tầng mái Nhật hiện lên với không gian sân trước rộng rãi, được quy hoạch khoa học và tiện nghi. Khu vực sân được bố trí thêm bộ bàn ghế ngoài trời, tạo thành nơi thư giãn lý tưởng cho các thành viên trong gia đình. Bên cạnh đó, sân còn có khoảng trống đủ rộng để đậu xe ô tô, vừa đảm bảo tính thẩm mỹ vừa mang đến sự thuận tiện trong sinh hoạt hàng ngày.

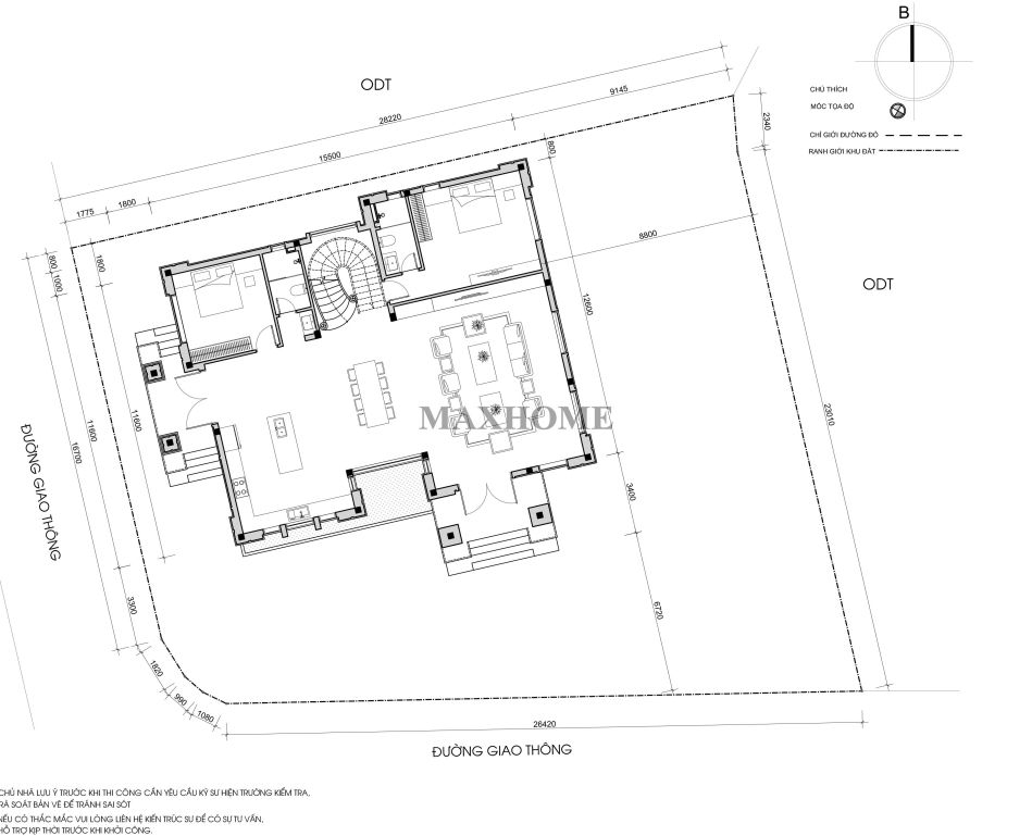
Dựa trên mặt bằng định vị, có thể thấy khuôn viên ngôi nhà sở hữu diện tích rất rộng rãi với kích thước 15 x 12,6m, tổng diện tích sử dụng khoảng 300m². Nhờ lợi thế này, không gian được quy hoạch khoa học, đảm bảo sự thông thoáng, tiện nghi và đáp ứng đầy đủ nhu cầu sinh hoạt của gia đình.

Từ cửa chính bước vào, không gian đầu tiên là phòng khách được thiết kế rộng rãi, thoáng mát với bố cục mở, tạo cảm giác gần gũi và dễ chịu. Tiếp nối là khu vực phòng ăn liên thông với bếp, giúp tối ưu diện tích và thuận tiện trong sinh hoạt hằng ngày. Khu bếp được bố trí cửa phụ bên hông, đảm bảo thông gió tự nhiên và mang lại sự thông thoáng cho toàn bộ không gian. Ngôi nhà vườn 2 tầng mái Nhật này còn được thiết kế 2 phòng ngủ, trong đó phòng ngủ 01 có nhà vệ sinh khép kín tiện nghi, còn phòng ngủ 02 sử dụng nhà vệ sinh chung bố trí liền kề, đảm bảo sự riêng tư và tiện lợi cho các thành viên trong gia đình.

Tầng 2 được bố trí hợp lý với không gian phòng thờ trang nghiêm, hướng ra ban công rộng rãi và thoáng mát, tạo điều kiện đón ánh sáng tự nhiên và lưu thông không khí tốt. Bên cạnh đó là phòng sinh hoạt chung, nơi các thành viên có thể quây quần, trò chuyện và thư giãn sau một ngày làm việc. Hai phòng ngủ số 04 và 05 được sắp xếp liền kề, sử dụng chung một nhà vệ sinh tiện nghi, giúp tối ưu không gian sử dụng. Riêng phòng ngủ số 03 là phòng master được thiết kế sang trọng, có khu vực thay đồ riêng và nhà vệ sinh khép kín bên trong, mang đến sự riêng tư và thoải mái tối đa cho gia chủ.












