Thiết kế nhà 2 tầng tân cổ điển đẹp như mơ với công năng cực kỳ tiện nghi | MH05913

Chủ đầu tư: Anh Nguyễn Văn Toàn Số tầng: 2
Địa chỉ: Hoàng Vân, Bắc Ninh Diện tích xây dựng: 10,9 x 15,8m
Loại hình: Nhà mái Nhật tân cổ điển Tổng diện tích: 245m2
Công năng:
  • Tầng 1: Phòng khách, phòng thờ, 2 phòng ngủ, 2 wc
  • Tầng 2: Phòng sinh hoạt chung, 3 phòng ngủ, 2 wc

Ai bảo cứ tân cổ điển là phải già và sến? Mẫu nhà 2 tầng tân cổ điển trong bài viết này sẽ khiến bạn thay đổi định kiến ngay lập tức vì công trình sở hữu vẻ ngoài chanh sả nhưng bên trong tiện nghi, hiện đại tuyệt vời. Với sự kết hợp giữa hệ mái Nhật quốc dân và những đường phào chỉ thanh thoát, ngôi nhà khiến hàng xóm phải trầm trồ vì đẹp như mơ, cùng Maxhome khám phá xem siêu phẩm này có gì mà khiến hội yêu nhà mê tít nhé!

Ngay từ cái nhìn đầu tiên, công trình 2 tầng tân cổ điển này đã toát lên một vẻ đẹp giao hòa giữa nét tân cổ điển tinh tế và hơi thở hiện đại đầy phóng khoáng, một tổng hòa kiến trúc đủ sức làm say lòng bất cứ ai kiếm tìm sự sang trọng, bền vững và một chút hoài niệm duyên dáng. Toàn bộ khối kiến trúc hiện lên sừng sững nhưng không hề khô cứng, mà ngược lại, sự kết hợp khéo léo giữa các hình khối, vật liệu và chi tiết trang trí đã tạo nên một bức tranh ngoại thất hài hòa, đẳng cấp.

thiet-ke-nha-2-tang-tan-co-dien-dep-nhu-mo-voi-cong-nang-cuc-ky-tien-nghi-1

Màu sắc đóng vai trò chủ đạo trong việc định hình phong cách và cảm xúc, anh Toàn cũng lựa chọn màu sơn trắng tinh khôi bao phủ để toàn bộ công trình, mang lại cảm giác thanh lịch và tôn vinh tối đa các đường nét kiến trúc, giúp chúng nổi bật dưới mọi góc độ ánh sáng. Sự tương phản được tạo nên bởi hệ mái Nhật màu xanh than, một sắc độ trầm lắng nhưng không kém phần sang trọng giúp cân bằng thị giác và mang lại chiều sâu cho tổng thể. Gam màu này còn gợi lên sự vững chãi, bình yên như một vòng tay che chở cho tổ ấm bên dưới. Từ góc nhìn trên cao, hệ mái Nhật hiện đại này với độ dốc vừa phải, các khối đua ra ăn khớp nhịp nhàng, vững chãi và vô cùng duyên dáng cho công trình.

thiet-ke-nha-2-tang-tan-co-dien-dep-nhu-mo-voi-cong-nang-cuc-ky-tien-nghi-7

Điểm nhấn kiến trúc ngoại thất không thể không nhắc đến là hệ thống cột trụ và phào chỉ mang đậm phong cách tân cổ điển. Các trụ cột được thiết kế với tỷ lệ cân đối, một số nơi mang dáng dấp khỏe khoắn của trụ vuông, trong khi những nơi khác lại uyển chuyển hơn với trụ tròn được khắc họa tinh xảo làm bật lên vẻ đẹp cổ điển. Những đường phào chỉ chạy dọc thân tường, quanh các khung cửa sổ hay tại vị trí giao thoa giữa các tầng là yếu tố định hình không gian, tạo chiều sâu và sự phân cấp rõ ràng cho các mảng tường phẳng. Chúng như những nét vẽ mềm mại, uyển chuyển, phá vỡ đi sự đơn điệu của mặt phẳng lớn và đồng thời dẫn dắt ánh nhìn khám phá từng ngóc ngách của ngôi nhà.

thiet-ke-nha-2-tang-tan-co-dien-dep-nhu-mo-voi-cong-nang-cuc-ky-tien-nghi-6

Hệ thống cửa sổ và cửa ra vào của căn nhà 2 tầng tân cổ điển được đầu tư kỹ lưỡng, khung cửa màu đen một lần nữa tạo nên sự tương phản mạnh mẽ với nền tường trắng, làm nổi bật lên các ô cửa kính lớn giúp thu hút ánh sáng tự nhiên tối đa vào bên trong. Thiết kế hình chữ nhật cổ điển của cửa sổ được giữ nguyên, gợi nhắc về những ngôi biệt thự Pháp xưa nhưng với vật liệu và công nghệ hiện đại, chúng mang lại vẻ đẹp bền bỉ và sang trọng vượt thời gian. Đặc biệt, cửa chính được chạm khắc hoa văn tinh xảo với tông màu gỗ ấm áp, trở thành một điểm nhấn thu hút mọi ánh nhìn ngay từ bậc tam cấp. Bậc tam cấp này được ốp đá tự nhiên rất trang trọng và đảm bảo sự chắc chắn, dễ dàng vệ sinh.

thiet-ke-nha-2-tang-tan-co-dien-dep-nhu-mo-voi-cong-nang-cuc-ky-tien-nghi-8

Ban công là một phần không thể thiếu của mẫu nhà 2 tầng tân cổ điển này, các lan can ban công được làm từ nhôm đúc nghệ thuật với những họa tiết uốn lượn mềm mại và phủ một lớp sơn vàng đồng óng ánh. Sắc vàng này như một điểm nhấn vương giả thu hút ánh nhìn và tạo nên sự sang trọng tuyệt đối.

Ngoài ra, khi màn đêm buông xuống, hệ thống đèn chiếu sáng ngoại thất được bố trí khoa học để đảm bảo an ninh và khéo léo làm nổi bật các chi tiết kiến trúc và tạo nên một vẻ đẹp lung linh, huyền ảo cho ngôi nhà, khiến công trình trở nên cuốn hút hơn bao giờ hết.

thiet-ke-nha-2-tang-tan-co-dien-dep-nhu-mo-voi-cong-nang-cuc-ky-tien-nghi-9
Mặt bằng bố trí công năng tầng 1

Bước chân vào nhà anh Toàn sẽ bắt gặp ngay phòng khách rộng lớn với diện tích lên tới 32m2 đón nhận nguồn ánh sáng tự nhiên dồi dào và kết nối trực tiếp với không gian phòng thờ trang trọng rộng 13,5m2. Sự tinh tế trong thiết kế còn được thể hiện qua việc bố trí 2 phòng ngủ nghỉ ngơi ngay tại tầng 1 giúp tối ưu hóa sự tiện nghi cho các thành viên trong gia đình. Hai nhà vệ sinh được phân bổ khoa học được đặt nằm cạnh cầu thang và một phòng khép kín rộng 5,1m2 bên trong phòng ngủ, đảm bảo tính riêng tư và tiện dụng tối đa trong sinh hoạt hàng ngày.

thiet-ke-nha-2-tang-tan-co-dien-dep-nhu-mo-voi-cong-nang-cuc-ky-tien-nghi-10
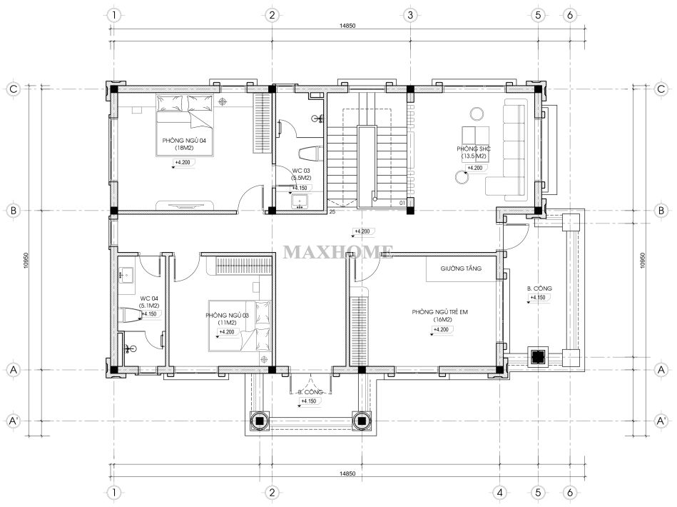
Mặt bằng bố trí công năng tầng 2

Di chuyển lên tầng 2, phòng sinh hoạt chung có diện tích 13,5m2 được đặt ở vị trí trung tâm tạo cầu nối gắn kết các thành viên trước khi bước vào các không gian riêng biệt. Tầng này sở hữu thêm 2 phòng ngủ rộng rãi, trong đó phòng ngủ 04 có diện tích 18m2 và 1 phòng ngủ đặc biệt dành cho trẻ em rộng 16m2 với thiết kế giường tầng sinh động. Việc bố trí thêm một phòng ngủ 03 nhỏ gọn 11m2 giúp ngôi nhà 2 tầng tân cổ điển có tổng cộng tới 5 phòng ngủ, đáp ứng hoàn hảo nhu cầu của các gia đình đông thành viên. Điểm cộng lớn của tầng 2 chính là hệ thống ban công rộng mở phía trước và bên hông nhà giúp lưu thông không khí, kết hợp cùng 2 nhà vệ sinh được lắp đặt tương ứng với vị trí tầng dưới để thuận tiện cho việc thiết kế kỹ thuật và sử dụng.

Yêu cầu tư vấn

    *Vui lòng để lại thông tin, nhân viên tư vấn sẽ liên hệ lại quý khách trong thời gian sớm nhất