Thiết kế nhà 2 tầng tân cổ với ngói nâu đẳng cấp cho gia chủ | MH05507

Chủ đầu tư: Anh Lê Tiến Dũng Số tầng: 2
Địa chỉ: Xuân Tiến, Quảng Yên, Thanh Hoá Diện tích xây dựng: 10,9 x 16,4m
Loại hình: Nhà mái Nhật tân cổ điển Tổng diện tích: 244m2
Công năng:
  • Tầng 1: Phòng khách, phòng bếp, 2 phòng ngủ, 1 wc, 1 phòng tắm, sân ướt
  • Tầng 2: Phòng thờ, 3 phòng ngủ, 1 wc, 1 phòng tắm, sân phơi

Trong bài viết này, Maxhome sẽ đưa bạn về với mảnh đất Thanh Hóa đầy nắng gió để chiêm ngưỡng một siêu phẩm kiến trúc vừa mới được bàn giao hồ sơ thiết kế cho gia đình anh Dũng. Nếu bạn là một người yêu thích vẻ đẹp vượt thời gian, sự giao thoa hoàn hảo giữa nét quyền quý của kiến trúc Châu Âu và sự thanh thoát của hơi thở hiện đại thì mẫu nhà 2 tầng tân cổ với hệ mái Nhật màu nâu độc đáo này chắc chắn sẽ khiến bạn không thể rời mắt ngay từ cái nhìn đầu tiên.

Ngôi nhà 2 tầng tân cổ của anh Dũng hiện lên đầy bề thế và uy nghi với tổng chiều cao công trình lên tới 10,7m rất kỳ lý tưởng để tạo nên sự thông thoáng và diện mạo cao ráo. Trong đó, tầng 1 được thiết kế cao 4,1m tạo ra một không gian đón khách vô cùng rộng rãi và sang trọng, trong khi tầng 2 cao 3,6m mang lại cảm giác ấm cúng và riêng tư cho các thành viên.

thiet-ke-nha-2-tang-tan-co-voi-ngoi-nau-dang-cap-cho-gia-chu-7

Điểm nhấn hoàn thiện cho tổng thể mẫu nhà đẹp chính là hệ mái Nhật cao 3m với tông màu nâu trầm đặc trưng. Thay vì sử dụng màu xanh than phổ biến thì sắc ngói nâu này đã góp phần giúp công trình trông lạ mắt, đẳng cấp và mang lại cảm giác bình yên, vững chãi, rất phù hợp với phong thủy và cá tính riêng của gia chủ.

thiet-ke-nha-2-tang-tan-co-voi-ngoi-nau-dang-cap-cho-gia-chu-8

Đi sâu vào chi tiết ngoại thất, điểm khiến người ta ấn tượng nhất chính là sự tinh tế trong việc xử lý các mảng tường. Trên nền sơn trắng tinh khôi và trang nhã, Maxhome đã khéo léo điểm xuyết hệ thống chỉ âm tường có kích thước 30x15mm được tính toán tỉ lệ cực kỳ chuẩn xác với khoảng cách đều đặn 520mm giữa các rãnh. Sự xuất hiện của những đường chỉ âm này không hề làm rối mắt mà ngược lại, chúng giúp xóa đi sự đơn điệu của các bức tường lớn và giúp mẫu nhà 2 tầng tân cổ trở nên có chiều sâu hơn dưới ánh nắng mặt trời. Kết hợp với đó là những chi tiết phù điêu đắp nổi nhẹ nhàng ở các đầu cột và ban công tạo nên một vẻ đẹp đầy chất thơ và sự quý phái đặc trưng.

thiet-ke-nha-2-tang-tan-co-voi-ngoi-nau-dang-cap-cho-gia-chu-10

thiet-ke-nha-2-tang-tan-co-voi-ngoi-nau-dang-cap-cho-gia-chu-9

Sự sang trọng của ngôi nhà 2 tầng tân cổ còn được khẳng định qua hệ thống cửa được đầu tư bài bản. Tại mặt tiền, toàn bộ các ô cửa sổ đều sử dụng khung gỗ cao cấp kết hợp với kính cường lực, tạo nên một vẻ đẹp vừa truyền thống vừa hiện đại giúp ngôi nhà vừa đón được ánh sáng tự nhiên vừa giữ được sự riêng tư cần thiết. Đặc biệt, bộ cửa chính được chế tác từ gỗ tự nhiên với những đường vân sắc nét, bao quanh bởi hệ phào chỉ gỗ dày dặn và uyển chuyển càng làm tôn lên vẻ khang trang, bề thế cho lối vào. Mỗi chi tiết nhỏ từ tay nắm cửa đến những đường chạm khắc đều được chăm chút tỉ mỉ khiến bất kỳ vị khách nào ghé thăm cũng phải trầm trồ trước gu thẩm mỹ tinh tế của anh Dũng.

thiet-ke-nha-2-tang-tan-co-voi-ngoi-nau-dang-cap-cho-gia-chu-11

Không chỉ dừng lại ở khối nhà chính, mẫu nhà 2 tầng tân cổ này còn ghi điểm bởi sự hài hòa với không gian xung quanh. Phần chân tường được ốp đá tự nhiên tối màu giúp bảo vệ công trình khỏi tác động của thời tiết, chống rêu mốc và tạo cảm giác nâng đỡ chắc chắn cho toàn bộ ngôi nhà anh Dũng. Hệ thống ban công được trang trí bằng lan can sắt nghệ thuật với những đường cong uốn lượn mềm mại tạo nên những khoảng hở lý tưởng để gia chủ có thể thư giãn và ngắm nhìn cảnh quan xung quanh.

thiet-ke-nha-2-tang-tan-co-voi-ngoi-nau-dang-cap-cho-gia-chu-12
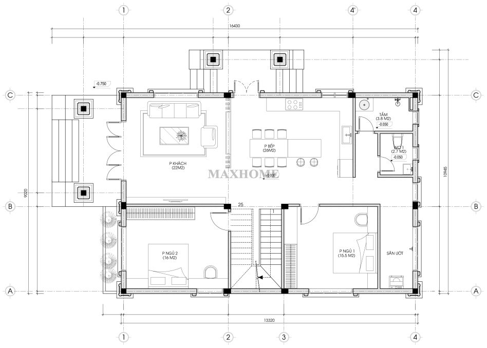
Mặt bằng định vị công trình

Bên cạnh vẻ ngoài lộng lẫy, không gian bên trong của mẫu nhà 2 tầng tân cổ tại Thanh Hóa cũng được các kiến trúc sư Maxhome tính toán kỹ lưỡng để tối ưu hóa diện tích sử dụng cho gia đình anh Dũng. Ngay sau cánh cửa gỗ sang trọng là không gian phòng khách 22m2 rộng mở, đón nhận nguồn ánh sáng tự nhiên dồi dào đã tạo nên một khu vực sinh hoạt chung ấm cúng và bề thế. Tiếp nối là khu vực phòng bếp ăn được ngăn cách một cách tinh tế để đảm bảo sự riêng tư nhưng vẫn giữ được độ thông thoáng xuyên suốt.

thiet-ke-nha-2-tang-tan-co-voi-ngoi-nau-dang-cap-cho-gia-chu-13
Mặt bằng bố trí công năng tầng 1

Đặc biệt, mặt bằng tầng 1 còn khéo léo bố trí 2 phòng ngủ yên tĩnh rất thuận tiện cho việc nghỉ ngơi của một số thành viên trong gia đình anh Dũng. Hệ thống tiện ích phụ trợ bao gồm 1 nhà vệ sinh riêng biệt, 1 phòng tắm và khu vực sân ướt phía sau được thiết kế khoa học giúp mọi hoạt động nội trợ và sinh hoạt hàng ngày trở nên thuận tiện, sạch sẽ và ngăn nắp hơn bao giờ hết.

thiet-ke-nha-2-tang-tan-co-voi-ngoi-nau-dang-cap-cho-gia-chu-14
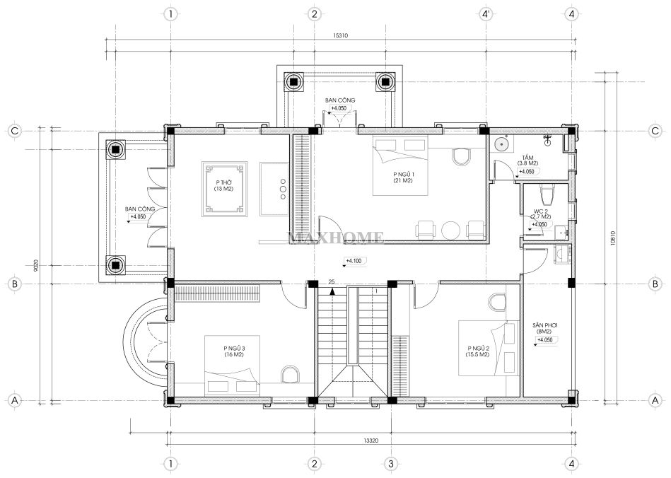
Mặt bằng bố trí công năng tầng 2

Di chuyển lên tầng 2, không gian sống dường như được mở rộng hơn để ưu tiên cho sự thư giãn và lòng thành kính đối với tổ tiên với phòng thờ trang nghiêm rộng 13m2. Phần diện tích còn lại được dành trọn cho 3 phòng ngủ riêng biệt, mỗi phòng đều có cửa sổ lớn giúp lưu thông không khí và ánh sáng. Tương tự như tầng 1, tầng 2 cũng được trang bị 1 nhà vệ sinh và 1 phòng tắm tách biệt để tối ưu hóa thời gian sử dụng. Ngoài ra, một khu vực sân phơi rộng rãi được bố trí kín đáo phía sau giúp đảm bảo tính thẩm mỹ chung cho ngoại thất công trình mà vẫn đáp ứng đầy đủ nhu cầu phơi phóng, giặt giũ thiết yếu của gia đình.

Yêu cầu tư vấn

    *Vui lòng để lại thông tin, nhân viên tư vấn sẽ liên hệ lại quý khách trong thời gian sớm nhất