Thiết kế nhà 2 tầng trắng tân cổ điển không bao giờ lỗi thời | MH05854
| Chủ đầu tư: Anh Phan Chí Cường | Số tầng: 2 |
| Địa chỉ: Phú Bài, TP Huế | Diện tích xây dựng: 9 x 17,4m |
| Loại hình: Nhà mái Nhật tân cổ điển | Tổng diện tích: 248m2 |
Công năng:
|
|
Từ trước tới nay, các mẫu nhà 2 tầng mang phong cách tân cổ điển sơn trắng luôn giữ vị trí vững chắc trong lựa chọn của nhiều gia đình Việt. Kiểu kiến trúc này chinh phục người nhìn bằng sự hài hòa, bền vững và giá trị thẩm mỹ lâu dài. Mẫu nhà 2 tầng của nhà anh Cường ở TP Huế do Maxhome thực hiện và gia đình anh rất hài lòng khi sở hữu được bộ hồ sơ thiết kế nhà đẹp trong tay.
Ngoại thất ngôi nhà 2 tầng gây ấn tượng bởi tổng thể cân đối và trang nhã cùng gam màu trắng chủ đạo bao phủ toàn bộ công trình mang đến cảm giác tinh khôi, sang trọng và dễ chịu. Màu trắng không chỉ giúp ngôi nhà anh Cường nổi bật giữa không gian xanh xung quanh mà còn đóng vai trò làm nền hoàn hảo để các chi tiết kiến trúc tân cổ điển được tôn lên rõ nét. Dưới ánh sáng tự nhiên ban ngày hay hệ đèn ngoại thất vào buổi tối thì mẫu nhà đẹp này đều giữ được vẻ đẹp thanh lịch và cuốn hút.

Đi sâu vào các điểm nhấn kiến trúc khác, hệ cột ở tầng 1 và tầng 2 được xử lý phào chỉ tinh giản, có rãnh đứng nhẹ tạo cảm giác cao ráo và vững chãi mà không hề nặng nề. Đây là cách Maxhome khéo léo áp dụng tinh thần tân cổ điển hiện đại giúp mẫu nhà 2 tầng vừa sang trọng vừa phù hợp với điều kiện khí hậu và thẩm mỹ đương đại tại Việt Nam, đặc biệt là ở TP Huế thơ mộng này.

Mái Nhật là một điểm cộng lớn cho tổng thể ngoại thất, loại mái này có độ dốc vừa phải, Maxhome thiết kế đua rộng ra 800mm tạo sự bề thế và mềm mại hơn cho khối nhà. Thêm vào đó, màu mái xanh than tương phản nhẹ với sơn trắng giúp công trình thêm chiều sâu thị giác. Đồng thời, kiểu mái này còn mang giá trị thực tiễn cao giúp thoát nước nhanh, chống nóng hiệu quả và tăng độ bền cho nhà 2 tầng theo thời gian.

Hướng mắt nhìn lên trên tầng 2 sẽ thấy hệ ban công và lan can sắt mỹ thuật. Lan can sơn đen với hoa văn uốn lượn tinh tế tạo điểm nhấn đắt giá, phá vỡ sự đơn sắc của mặt tiền trắng mà vẫn giữ được tinh thần cổ điển sang trọng. Ban công thiết kế rộng rãi, bố trí thêm các chậu cây xanh nhỏ gọn mang lại cảm giác gần gũi với thiên nhiên.


Khu vực tầng 1 được xử lý rất khéo léo với mảng ốp gạch màu đen ở chân tường. Chi tiết này không chỉ giúp công trình trông chắc chắn hơn mà còn có tác dụng chống bám bẩn, rất phù hợp với điều kiện thời tiết mưa nhiều của Huế. Sự chuyển tiếp màu sắc từ gạch đen tới vị trí đá ốp tường xám lên trắng sáng tạo nên từng lớp rõ ràng giúp ngoại thất nhà 2 tầng thêm phần sang trọng và có chiều sâu.

Hệ cửa kính khung màu đen được bố trí hài hòa trên mặt tiền giúp đảm bảo yếu tố thẩm mỹ và tối ưu ánh sáng tự nhiên. Cửa kính sẽ giúp ngôi nhà luôn thoáng đãng, trong khi khung cửa tối màu tạo điểm nhấn mạnh mẽ, cân bằng lại sắc trắng chủ đạo. Ngoài ra, khi kết hợp với hệ đèn treo tường kiểu cổ điển, ngoại thất căn nhà 2 tầng mái Nhật càng trở nên ấm áp và nổi bật vào buổi tối, mang lại cảm giác ấm cúng mà bất kỳ ai cũng muốn về nhà nghỉ ngơi.


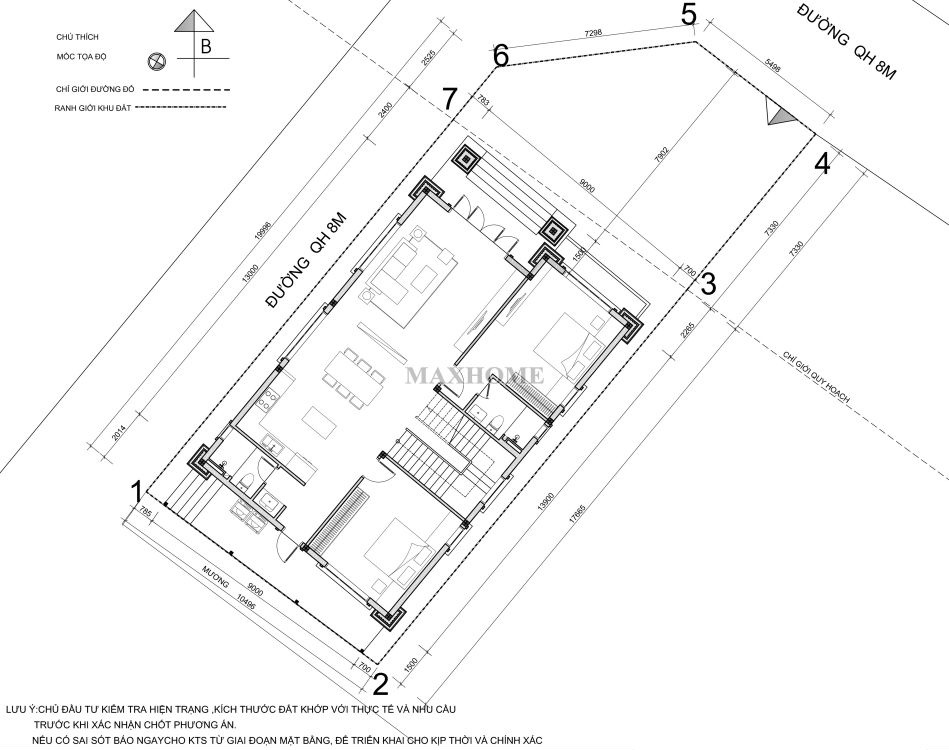
Nhà anh Cường nằm ở vị trí đắc địa ngay ngã ba đường, khuôn đất bị vát chéo nhẹ một góc nhưng không đáng kể, vẫn dư ra khoảng trống rộng để tạo khu vực sân chơi và để xe thoải mái. Ngôi nhà 2 tầng cao ráo và uy nghi sẽ được tiến hành xây dựng sớm để sang năm mới cả gia đình anh Cường sinh hoạt trong không gian mới mẻ này.

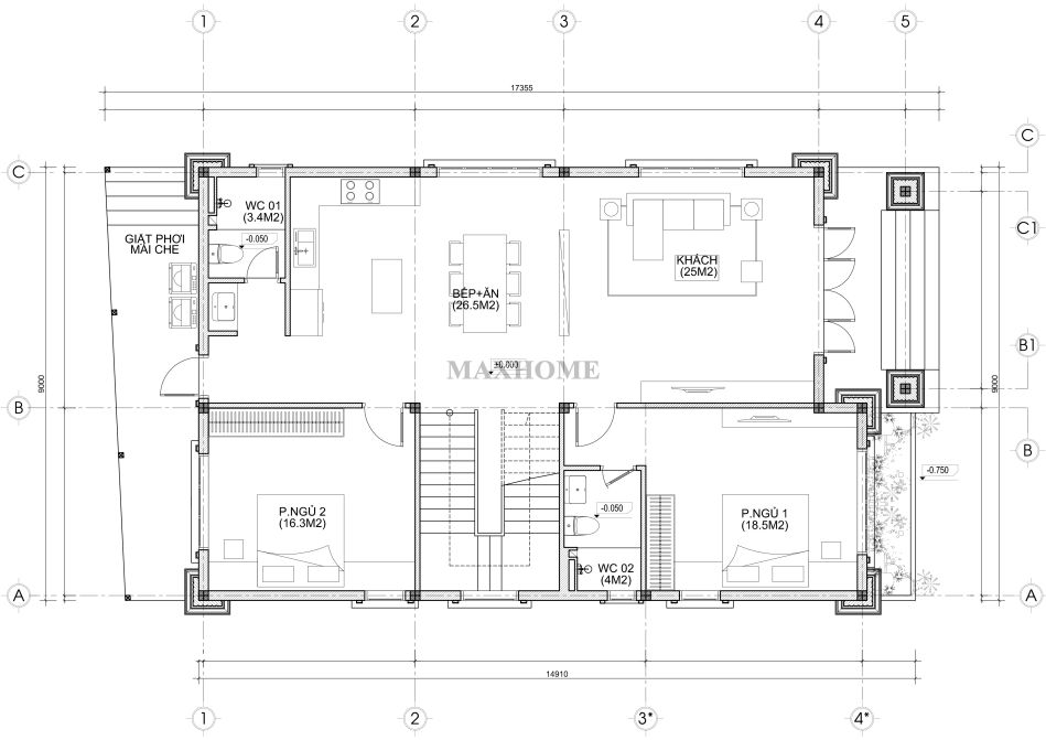
Công năng của ngôi nhà 2 tầng được bố trí theo hướng tối ưu cho sinh hoạt gia đình nhiều thế hệ để đảm bảo sự thuận tiện, riêng tư nhưng vẫn có những không gian kết nối chung rõ ràng. Tầng 1 của ngôi nhà được bố trí tập trung cho sinh hoạt hằng ngày với phòng khách 25m2 đặt gần cửa chính rất trang trọng. Khu vực bếp và phòng ăn liên thông giúp thuận tiện cho việc nấu nướng và quây quần gia đình. Cuối cùng là 2 phòng ngủ và 2 nhà vệ sinh được bố trí hợp lý để đảm bảo sử dụng thoải mái và riêng tư.

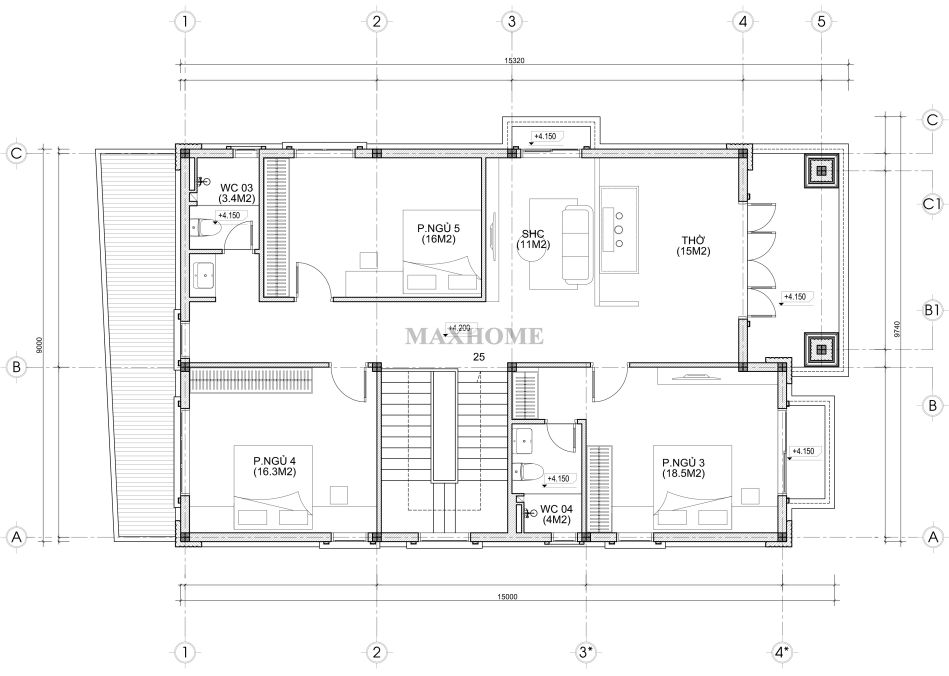
Lên đến tầng 2, công năng được mở rộng theo hướng nghỉ ngơi và sinh hoạt riêng tư nhiều hơn. Không gian đầu tiên là phòng thờ 15m2 bố trí ở vị trí trang nghiêm và yên tĩnh. Phía sau phòng thờ là phòng sinh hoạt chung 11m2 đóng vai trò như không gian kết nối các thành viên trong gia đình ở tầng trên. Tầng 2 cũng được bố trí thêm 3 phòng ngủ giúp đáp ứng tốt nhu cầu nghỉ ngơi cho các thành viên còn lại trong gia đình. Đi kèm là 2 nhà vệ sinh phục vụ chung cho khu vực tầng 2 giúp sinh hoạt diễn ra thuận tiện, đặc biệt vào những khung giờ cao điểm buổi sáng hoặc buổi tối.











