Thiết kế nhà cấp 4 111m2 nhỏ xinh có chi phí hợp lý tại Đồng Nai | MH05033
| Chủ đầu tư: Anh Lê Tiến Thành | Số tầng: 1 |
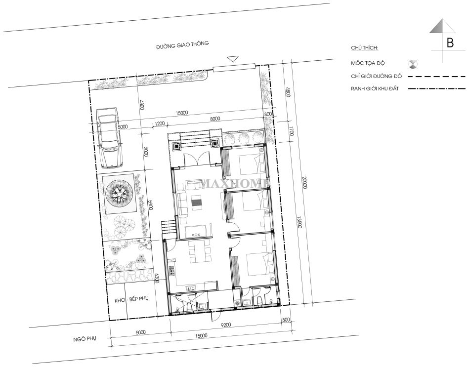
| Địa chỉ: Vĩnh Cửu, Đồng Nai | Diện tích xây dựng: 9,3 x 15,1m |
| Loại hình: Nhà mái Nhật hiện đại | Tổng diện tích: 111m2 |
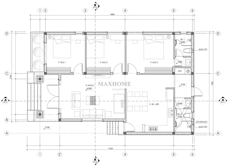
| Công năng:
Phòng khách, phòng bếp, 3 phòng ngủ, 2 wc |
|
Sở hữu ngay bản thiết kế nhà cấp 4 111m2 của Maxhome rất nhỏ gọn và xinh xắn phù hợp ở bất kỳ khu vực nông thôn nào. Tại tỉnh thành Đồng Nai đã xuất hiện mẫu nhà cấp 4 đẹp đó và thuộc sở hữu của gia đình anh Thành. Với chi phí đầu tư vừa phải, diện tích sử dụng hợp lý và phong cách thiết kế hiện đại, căn nhà đã toát lên vẻ sang trọng, tinh tế nhưng vẫn giữ được nét gần gũi, thân thiện của một tổ ấm gia đình.
Mẫu nhà cấp 4 111m2 nổi bật với diện mạo sơn hai màu trắng và xám làm chủ đạo. Hai tông màu trung tính này tạo cảm giác thanh thoát, nhẹ nhàng mà vẫn toát lên sự tinh tế hiện đại. Màu trắng được sử dụng cho các mảng tường chính giúp không gian trở nên rộng rãi và sáng sủa hơn. Trong khi đó, màu xám được phối ở những vị trí nhấn như diềm tường, phào chỉ viền cửa sổ hay viền mái giúp nên hiệu ứng tương phản tinh tế và bắt mắt. Cách phối màu này không chỉ mang lại vẻ ngoài sang trọng mà còn giúp mẫu nhà đẹp của anh Thành bền màu theo thời gian, ít bám bụi và dễ bảo trì.

Một trong những điểm nhấn khiến ngôi nhà cấp 4 111m2 này trở nên ấn tượng chính là hệ phào chỉ nổi ở viền mái và diềm tường. Phào được thiết kế tinh gọn với kích thước 50x50mm, vừa đủ tạo điểm nhấn mà không gây rối mắt. Từng đường phào sắc nét, dứt khoát giúp phần mái Nhật thêm nổi bật và tạo chiều sâu cho tổng thể kiến trúc. Bên cạnh đó, những rãnh soi âm tường kích thước 30x10mm được thực hiện tỉ mỉ, chạy đều trên các mảng tường tạo nên hiệu ứng ánh sáng bóng đổ thú vị khi nhìn ở các góc khác nhau. Dù là chi tiết nhỏ nhưng lại góp phần lớn trong việc làm nên tính thẩm mỹ hiện đại và chỉn chu cho toàn bộ công trình.

Bước đến khu vực sảnh chính, ấn tượng đầu tiên là hai cột vuông bề thế và cân đối đã tạo nên cảm giác vững chãi cho toàn bộ ngôi nhà. Chân cột được sơn giả đá đen vân trắng mang lại hiệu ứng sang trọng và tinh tế. Sự kết hợp giữa màu đen và trắng đã tạo điểm nhấn thị giác mạnh và giúp phần sảnh trở nên nổi bật hơn trên nền màu tổng thể của ngôi nhà. Cặp cột không chỉ có giá trị thẩm mỹ mà còn mang ý nghĩa phong thủy tượng trưng cho sự vững bền và che chở cho gia đình anh Hải.

Cửa chính của ngôi nhà cấp 4 mái Nhật này được lựa chọn loại cửa nhôm hộp kính cao cấp, cao 2,7m đảm bảo độ bền và tính an toàn. Cửa kính giúp không gian bên trong luôn tràn ngập ánh sáng tự nhiên đồng thời tạo sự liên kết mềm mại giữa nội thất và ngoại cảnh. Thiết kế này không chỉ mang lại cảm giác rộng mở, thoáng đãng mà còn giúp mặt tiền ngôi nhà thêm phần hiện đại và sang trọng. Vật liệu nhôm kính cũng rất phù hợp với khả nằng chống cong vênh, mối mọt và dễ vệ sinh, bảo trì.

Ở phần chân tường, đội ngũ Maxhome đã lựa chọn ốp đá chẻ cao 750mm để tăng tính bảo vệ và độ bền cho công trình. Lớp đá chẻ này sẽ giúp chống ẩm, chống thấm hiệu quả và mang lại vẻ đẹp tự nhiên, khỏe khoắn. Màu sắc của đá phối hợp hài hòa với tổng thể trắng và xám giúp ngôi nhà cấp 4 111m2 thêm phần vững chãi, sang trọng mà vẫn giữ nét mộc mạc và gần gũi. Đặc biệt, phần đá chẻ này còn là chi tiết nhấn mạnh tính bền vững và rất đối với khí hậu nóng quanh năm ở Đồng Nai.


Ngôi nhà cấp 4 có tổng diện tích sử dụng là 111m2, ngôi nhà được Maxhome thiết kế cân đối và tỷ lệ đẹp mắt. Các khối kiến trúc được bố trí hợp lý cùng đường nét dứt khoát đã mang lại cảm giác gọn gàng mà vẫn đầy đủ công năng sử dụng. Dưới bàn tay thiết kế của Maxhome, từng không gian sống trong nhà anh Hải đều được đảm bảo tính thẩm mỹ và độ bền vững lâu dài.

Từ sảnh chính bước vào là không gian phòng khách được thiết kế liền kề với gian thờ, sau bức tường nhỏ là khu vực bếp ăn gọn gàng mà tinh tế và kết nối thuận tiện với lối đi phụ giúp cho mọi người dễ đi lại. Ngoài ra, căn nhà anh Hải còn có 3 phòng ngủ bố trí hợp lý để đảm bảo sự riêng tư, yên tĩnh và thông thoáng cho từng thành viên trong gia đình. Cuối nhà là 2 nhà vệ sinh được sắp xếp khoa học, tiện lợi cho sinh hoạt hằng ngày.
Với lối kiến trúc nhẹ nhàng, màu sắc hài hòa và chi tiết được chăm chút tỉ mỉ, mẫu nhà cấp 4 111m2 đã đáp ứng đầy đủ nhu cầu sinh hoạt và thể hiện rõ gu thẩm mỹ, cá tính của gia chủ. Nếu bạn đang tìm kiếm một mẫu nhà cấp 4 vừa đẹp vừa tiết kiệm chi phí thì thiết kế của Maxhome chắc chắn sẽ là lựa chọn đáng để tham khảo.











