Thiết kế nhà phố 2 tầng có gara ô tô khiến nhiều gia chủ “chốt liền” | MH05999
| Chủ đầu tư: Chị Ngô Thị Phượng | Số tầng: 2 |
| Địa chỉ: Xuân Bách, Nội Bài, Hà Nội | Diện tích xây dựng: 5,4m x 22,9m |
| Loại hình: Nhà lô phố hiện đại | Tổng diện tích: 192m2 |
Công năng:
|
|
Trong bối cảnh quỹ đất đô thị ngày càng hạn chế, nhu cầu sở hữu một không gian sống tiện nghi, hiện đại và có gara ô tô riêng đang trở thành ưu tiên hàng đầu của nhiều gia đình. Nhà phố 2 tầng hiện đại có gara ô tô không chỉ giải quyết bài toán chỗ để xe an toàn mà còn mang đến không gian sinh hoạt khoa học, thẩm mỹ cao, phù hợp với nhịp sống đô thị năng động hiện nay.
Nhà phố 2 tầng kết hợp gara ô tô phía trước đang là lựa chọn được nhiều gia chủ tại khu vực đô thị ưu tiên, đặc biệt phù hợp với những lô đất có diện tích hạn chế. Cách bố trí này không chỉ giúp tối ưu quỹ đất sử dụng, mang lại sự thuận tiện trong việc di chuyển và sinh hoạt hằng ngày mà còn tạo khoảng đệm hợp lý giữa không gian bên ngoài và khu vực ở. Công trình trong bài viết là phương án thiết kế do Maxhome thực hiện đã hoàn thiện trọn bộ hồ sơ thiết kế cho gia đình chị Phượng tại Hà Nội, đảm bảo hài hòa giữa thẩm mỹ, công năng và nhu cầu thực tế của gia chủ.

Cách phối màu của nhà phố 2 tầng được thiết kế tinh tế, sử dụng gam màu trắng làm chủ đạo, mang lại cảm giác thanh lịch và hiện đại. Điểm nhấn là các đường viền màu vàng được bố trí khéo léo, giúp tôn lên hình khối kiến trúc và tạo nét nổi bật cho mặt tiền. Bên cạnh đó, khu vực trần được sử dụng vật liệu gỗ nhựa vừa tăng tính thẩm mỹ, vừa có khả năng chống ẩm, chống mối mọt, phù hợp với điều kiện khí hậu đô thị và góp phần hoàn thiện vẻ đẹp sang trọng cho tổng thể công trình.

Phong cách hiện đại của nhà phố 2 tầng được thể hiện qua các đường nét kiến trúc khỏe khoắn, dứt khoát, kết hợp khéo léo với những đường cong nhẹ nhàng nhằm tạo sự mềm mại và cân đối cho tổng thể công trình. Kiểu thiết kế này thường được áp dụng cho nhà phố không chỉ vì tính thẩm mỹ cao, phù hợp với nhịp sống đô thị mà còn giúp tối ưu kết cấu, giản lược chi tiết trang trí, từ đó tiết kiệm chi phí xây dựng và rút ngắn thời gian thi công.

Do hai bên công trình đều tiếp giáp với nhà hàng xóm nên việc bố trí cửa sổ bên hông bị hạn chế. Vì vậy, các kiến trúc sư tập trung khai thác hệ cửa và ô thoáng tại mặt tiền nhằm đảm bảo khả năng lấy sáng, thông gió tự nhiên mà vẫn giữ được sự riêng tư cần thiết. Giải pháp này không chỉ phù hợp với đặc thù nhà phố liền kề trong khu vực đô thị mà còn góp phần nâng cao tính thẩm mỹ cho tổng thể công trình. Bên cạnh đó, khu vực sân chơi tại tầng 2 được thiết kế rộng rãi, bố trí thêm bộ bàn ghế uống trà, tạo không gian thư giãn lý tưởng cho các thành viên sau những giờ làm việc, học tập căng thẳng.

Nhà phố 2 tầng được thiết kế hệ mái bằng bê tông cốt thép chắc chắn, bề mặt phía trên được ốp gạch sạch sẽ, thuận tiện cho việc vệ sinh và bảo trì. Khu vực mái còn được bố trí téc nước và hệ thống năng lượng mặt trời, giúp đảm bảo nguồn nước sinh hoạt ổn định, đồng thời tiết kiệm điện năng và nâng cao hiệu quả sử dụng lâu dài cho gia đình.

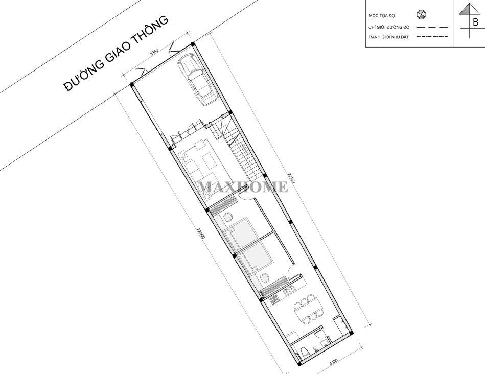
Nhà phố 2 tầng được xây dựng sát mặt đường giao thông, thuận tiện cho việc di chuyển và sinh hoạt hằng ngày. Công trình có kích thước mặt tiền 5,4m, chiều dài 22,9m, với tổng diện tích sử dụng khoảng 192m². Quy mô này cho phép bố trí mặt bằng công năng hợp lý, đảm bảo không gian sống tiện nghi, thông thoáng và phù hợp với nhu cầu sử dụng của gia đình trong điều kiện đô thị.

Tầng 1 được bố trí không gian gara ô tô riêng biệt, đảm bảo thuận tiện cho việc di chuyển và cất giữ phương tiện. Từ cửa chính bước vào là khu vực phòng khách, được sắp xếp gọn gàng và thông thoáng. Tiếp nối phía trong là hai phòng ngủ đặt liền kề nhau, phù hợp cho các thành viên cần không gian nghỉ ngơi yên tĩnh. Cuối nhà là khu vực bếp – ăn được bố trí hợp lý, kết hợp với một nhà vệ sinh chung, đáp ứng đầy đủ nhu cầu sinh hoạt hằng ngày và đảm bảo sự tiện nghi cho cả gia đình.

Tầng 2 được bố trí phòng thờ trang nghiêm, đảm bảo sự yên tĩnh và phù hợp với yếu tố phong thủy của gia đình. Tiếp nối là hai phòng ngủ được sắp xếp hợp lý, đáp ứng nhu cầu nghỉ ngơi và sinh hoạt riêng tư. Trong đó, phòng ngủ cuối nhà được thiết kế nhà vệ sinh khép kín bên trong, mang lại sự tiện nghi, thoải mái và thuận tiện trong quá trình sử dụng hằng ngày.












