Thiết kế nhà phố 3 tầng hiện đại ở Đà Nẵng – đẹp & tối ưu công năng | MH05819

Chủ đầu tư: Chị Cao Thị Xuân Số tầng: 3
Địa chỉ: Hoà Khánh, Đà Nẵng Diện tích xây dựng: 5 x 21m
Loại hình: Nhà lô phố hiện đại Tổng diện tích: 242m2
Công năng:
  • Tầng 1: Phòng khách, phòng bếp ăn, 1 phòng ngủ, 1 wc, gara
  • Tầng 2: Phòng sinh hoạt chung, 3 phòng ngủ, 2 wc
  • Tầng 3: Phòng thờ, sân chơi, sân phơi

Thiết kế nhà phố 3 tầng hiện đại ở Đà Nẵng đang là lựa chọn ưu tiên của nhiều gia đình trẻ nhờ khả năng tối ưu diện tích, công năng linh hoạt và tính thẩm mỹ cao. Với đặc thù quỹ đất đô thị ngày càng hạn chế, các mẫu nhà phố 3 tầng hiện đại không chỉ chú trọng đến hình khối kiến trúc khỏe khoắn mà còn đề cao giải pháp lấy sáng, thông gió tự nhiên, phù hợp với điều kiện khí hậu miền Trung.

Kiến trúc hiện đại khi ứng dụng vào loại hình nhà phố được xem là giải pháp tối ưu cho những gia đình sở hữu khu đất nằm trong khu vực đô thị với mặt tiền hạn chế. Dựa trên hiện trạng thực tế và nhu cầu sử dụng của gia đình chị Xuân, kiến trúc sư đã nghiên cứu kỹ lưỡng để đưa ra phương án thiết kế nhà phố 3 tầng hiện đại với bố cục khoa học, hình khối gọn gàng và đường nét tinh tế. Công trình không chỉ đảm bảo tính thẩm mỹ thời thượng mà còn tối ưu công năng, khả năng lấy sáng và thông gió tự nhiên.

Mẫu nhà phố 3 tầng gây ấn tượng bởi sự kết hợp hài hòa giữa các khối kiến trúc vuông vức, khỏe khoắn cùng những đường cong mềm mại, uyển chuyển – xu hướng thiết kế đang được ưa chuộng hiện nay. Sự đan xen linh hoạt giữa hình khối thẳng và cong không chỉ tạo điểm nhấn thẩm mỹ độc đáo mà còn giúp mặt tiền trở nên sinh động, hiện đại hơn. Bên cạnh đó, các vật liệu hoàn thiện mang phong cách đương đại như kính cường lực, lam trang trí và mảng ốp cao cấp được lựa chọn kỹ lưỡng, góp phần nâng tầm diện mạo công trình và đảm bảo độ bền vững theo thời gian.

Nhà phố 3 tầng sử dụng gam màu trắng làm tông màu chủ đạo, mang lại cảm giác tinh tế, hiện đại và giúp tổng thể công trình trở nên sáng thoáng hơn. Khu vực mặt tiền tầng 1 được ốp đá granite trắng vân mây sang trọng, vừa tạo điểm nhấn thẩm mỹ vừa đảm bảo độ bền và khả năng chống bám bẩn hiệu quả. Lên đến tầng 2, bề mặt tường được hoàn thiện bằng sơn nhám cao cấp, kết hợp cùng bồn hoa ốp gỗ nhựa ngoài trời, góp phần tạo sự ấm áp và cân bằng thị giác cho mặt đứng.

Hệ thống bồn hoa của nhà phố 3 tầng được xử lý chống thấm kỹ lưỡng ngay từ khâu thi công, đảm bảo độ bền lâu dài và hạn chế tối đa tình trạng thấm nước xuống các không gian bên dưới. Các bồn cây được bố trí hợp lý tại mặt tiền và ban công, kết hợp trồng nhiều loại cây xanh phù hợp với khí hậu đô thị, giúp tăng khả năng điều hòa không khí và tạo cảm giác gần gũi với thiên nhiên. Nhờ đó, công trình không chỉ giảm bớt cảm giác khô cứng, ngột ngạt thường thấy ở nhà phố mà còn mang đến không gian sống trong lành, hài hòa, hạn chế hiệu ứng “đô thị hóa” một cách hiệu quả.

Quan sát từ góc nhìn trên cao, có thể thấy nhà phố 3 tầng được bố trí hệ mái kính tại khu vực sân thượng, sử dụng khung sắt sơn tĩnh điện chắc chắn, có khả năng chống gỉ sét và chịu tác động tốt trước điều kiện thời tiết. Giải pháp mái kính giúp tận dụng tối đa ánh sáng tự nhiên, đồng thời vẫn đảm bảo che chắn hiệu quả. Tại không gian này, kiến trúc sư khéo léo sắp xếp bộ bàn trà thư giãn, tạo nên khu vực sinh hoạt ngoài trời lý tưởng để nghỉ ngơi, thưởng trà hay tận hưởng không khí thoáng đãng, góp phần nâng cao chất lượng sống cho gia đình.

Do nhà phố 3 tầng tọa lạc ngay mặt đường, giải pháp cửa được lựa chọn nhằm đảm bảo an ninh và sự thuận tiện trong quá trình sử dụng. Cửa chính sử dụng cửa cuốn hiện đại, giúp bảo vệ ngôi nhà an toàn hơn trước tác động bên ngoài, đồng thời tối ưu diện tích khi đóng mở. Toàn bộ các hệ cửa còn lại được lắp đặt nhôm hệ Xingfa kết hợp kính cường lực cao cấp, không chỉ mang đến vẻ đẹp hiện đại, đồng bộ cho tổng thể kiến trúc mà còn giúp tăng khả năng lấy sáng, cách âm, cách nhiệt hiệu quả, góp phần tạo nên không gian sống thoáng đãng và tiện nghi.

Công trình nhà phố 3 tầng được xây dựng trên khu đất có vị trí gần mặt đường, với phương án lùi khối nhà về phía sau nhằm bố trí khu vực gara ô tô phía trước, vừa thuận tiện cho việc di chuyển vừa đảm bảo an toàn giao thông. Ngôi nhà có kích thước xây dựng 5 x 21m. Tổng diện tích sử dụng của công trình ước tính khoảng 242m², đáp ứng đầy đủ nhu cầu sinh hoạt của gia đình với các không gian chức năng được bố trí khoa học, tối ưu diện tích và phù hợp với đặc thù nhà phố đô thị.

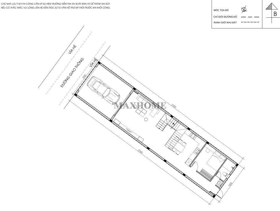
Mặt bằng định vị công trình

Khu vực phía trước là gara ô tô rộng khoảng 23m², đảm bảo thuận tiện cho việc đỗ xe và di chuyển. Tiếp nối vào bên trong là phòng khách được thiết kế rộng rãi, thông thoáng, tạo cảm giác chào đón ngay từ khi bước vào nhà. Khu vực cầu thang được bố trí ở vị trí trung tâm, giúp kết nối các tầng một cách thuận tiện và tối ưu diện tích sử dụng. Phía sau là không gian bếp – phòng ăn ấm cúng, đảm bảo sự riêng tư cần thiết, và cuối nhà bố trí một phòng ngủ nhỏ phù hợp cho người lớn tuổi hoặc khách, liền kề là nhà vệ sinh chung, thuận tiện cho sinh hoạt.

Mặt bằng bố trí công năng tầng 1

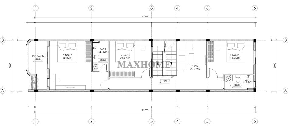
Không gian tầng 2 ưu tiên sự riêng tư và tiện nghi cho các thành viên trong gia đình. Tại đây bố trí khu sinh hoạt chung ấm cúng, là nơi gắn kết các thành viên sau một ngày làm việc. Tầng này gồm 3 phòng ngủ với diện tích được phân bổ hợp lý; trong đó phòng ngủ 03 được thiết kế nhà vệ sinh khép kín, đảm bảo sự thuận tiện và riêng tư khi sử dụng. Hai phòng ngủ còn lại là phòng ngủ 01 và phòng ngủ 02 cùng sử dụng một nhà vệ sinh chung, được đặt ở vị trí trung tâm, giúp việc sinh hoạt diễn ra thuận tiện mà vẫn tối ưu diện tích sử dụng.

Mặt bằng bố trí công năng tầng 2

Không gian tầng 3 được bố trí phù hợp với văn hóa sinh hoạt của gia đình Việt. Khu vực phòng thờ được thiết kế trang nghiêm, đặt ở vị trí yên tĩnh và hợp phong tục truyền thống, đảm bảo sự tôn kính và linh thiêng. Phía trước là khoảng sân chơi thoáng đãng, có thể tận dụng làm nơi thư giãn, trồng cây xanh hoặc sinh hoạt ngoài trời. Cuối nhà bố trí khu sân phơi gọn gàng, kín đáo, giúp tối ưu công năng sử dụng mà vẫn đảm bảo tính thẩm mỹ và sự thông thoáng cho toàn bộ ngôi nhà.

Mặt bằng bố trí công năng tầng 3

Yêu cầu tư vấn

    *Vui lòng để lại thông tin, nhân viên tư vấn sẽ liên hệ lại quý khách trong thời gian sớm nhất