Thiết kế nhà phố 3 tầng lô góc với không gian mở, công năng tối ưu | MH05376
| Chủ đầu tư: Anh Đỗ Văn Thắng | Số tầng: 3 |
| Địa chỉ: Pleiku, Gia Lai | Diện tích xây dựng: 8 x 14,8m |
| Loại hình: Nhà mái Nhật hiện đại | Tổng diện tích: 280m2 |
Công năng:
(Công trình có sử dụng thang máy) |
|
Việc sở hữu một mảnh đất lô góc luôn là niềm mơ ước của nhiều gia chủ bởi lợi thế về tầm nhìn và sự thông thoáng, đặc biệt là khu đô thị đông đúc. Vừa qua, Maxhome đã có dịp đồng hành cùng gia đình anh Thắng tại Gia Lai để kiến tạo nên một tác phẩm kiến trúc đầy ấn tượng, căn nhà phố 3 tầng lô góc hiện lên giữa phố phường với vẻ đẹp khang trang, tinh tế và được tối ưu hóa không gian.
Nằm ở vị trí đắc địa, căn nhà phố 3 tầng lô góc của anh Thắng mang trên mình phong cách hiện đại đầy lôi cuốn. Thay vì những chi tiết hoa văn cầu kỳ, đội ngũ thiết kế Maxhome đã tập trung vào việc tạo hình khối từ những mảng đặc, rỗng được sắp xếp đan xen tạo nên một tổng thể cá tính và chắc chắn. Sự kết hợp giữa các đường nét vuông vức và các khoảng lùi hợp lý giúp mẫu nhà phố 3 tầng này thoát khỏi cảm giác bí bách thường thấy của nhà phố, thay vào đó là sự phóng khoáng và tự do.

Về màu sắc, Maxhome lựa chọn tông trắng tinh khôi làm chủ đạo giúp công trình luôn bền màu với thời gian và còn làm nền hoàn hảo để tôn vinh các vật liệu trang trí khác. Điểm xuyết trên nền tường trắng là các mảng gạch ốp cao cấp và nhựa giả gỗ với tông màu trầm ấm. Sự tương phản nhẹ nhàng giữa màu trắng của sơn và màu nâu của gỗ mang lại cảm giác sang trọng, gần gũi với thiên nhiên.


Hệ thống tường rào và cổng chính cũng là một điểm nhấn không thể bỏ qua. Hàng rào được thiết kế đầy cá tính với các ô gạch bông gió giúp đón gió và ánh sáng tự nhiên nhưng vẫn đảm bảo sự riêng tư. Phía trước tường rào, những bồn cây nhỏ được bố trí khéo léo mang sắc xanh dịu mát vào không gian sống. Cánh cổng thép đen chắc chắn với thiết kế tối giản không chỉ bảo vệ an toàn mà còn góp phần hoàn thiện vẻ đẹp hiện đại cho ngôi nhà phố 3 tầng lô góc.

Bước qua cánh cổng, một giải pháp công năng thông minh hiện ra là khu vực gara ô tô nằm ngay tại sân trước. Điểm đặc biệt là phần mái che cho khu vực này chính là phần diện tích tầng 2 nhô ra được đổ bê tông kiên cố. Với thiết kế này, gia đình anh Thắng có thể thoải mái đậu được 2 chiếc xe ô tô mà không lo nắng mưa đồng thời tận dụng tối đa diện tích sử dụng phía trên. Phía ngoài còn có một cầu thang lộ thiên dẫn trực tiếp lên tầng 2 tạo sự thuận tiện và tạo nét độc đáo trong lối kiến trúc nhà lô góc.

Sự tinh tế của công trình còn nằm ở các chi tiết lan can và ban công đều được làm từ kính cường lực trong suốt kết hợp với tay vịn inox đen nổi bật. Lựa chọn này không chỉ tạo cảm giác mở rộng không gian mà còn giúp ngôi nhà trở nên thanh thoát hơn. Đặc biệt, dưới mỗi phần trần nhà nhô ra, Maxhome đã ốp nhựa giả gỗ sang trọng và lắp đặt hệ thống đèn LED ngoài trời. Khi màn đêm buông xuống, những ánh đèn rực rỡ tỏa ra giúp mẫu nhà phố 3 tầng lô góc trở nên lung linh và thu hút mọi ánh nhìn.


Hoàn thiện cho tổng thể công trình là hệ mái Nhật gọn gàng, hiện đại, có độ dốc vừa phải và nhô ra khoảng 750mm để giúp thoát nước mưa tốt cũng như che chắn hiệu quả cho các mảng tường phía dưới. Mái Nhật với màu xanh than lịch lãm không chỉ phù hợp với điều kiện khí hậu tại Gia Lai mà còn tạo nên một cái kết trọn vẹn và cân bằng cho một kiến trúc hiện đại đầy sức sống.

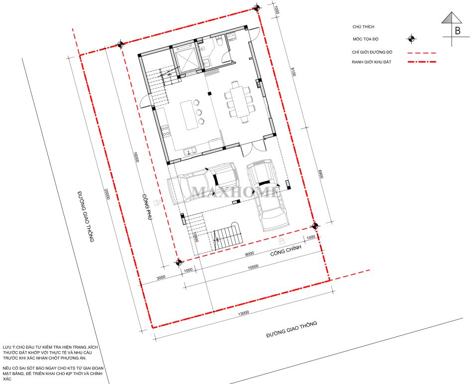
Mặt bằng tổng thể cho thấy lợi thế của một căn nhà lô góc với hai mặt tiền tiếp giáp đường giao thông. Khu đất có hình dạng khá vuông vức với kích thước khoảng 10x16m. Maxhome đã khéo léo bố trí khối nhà chính lùi về phía sau và một bên để dành không gian cho sân trước và gara ngoài trời. Cổng chính được đặt ở hướng mặt tiền rộng hơn, trong khi cổng phụ giúp tối ưu hóa việc di chuyển cho xe cộ tạo sự thông thoáng và thuận tiện trong giao thông.

Tầng 1 là không gian sinh hoạt chung và tiện ích của gia đình anh Thắng với cao độ nền được thiết kế nâng lên nhẹ nhàng. Từ sân trước bước vào là khu vực phòng ăn và phòng bếp được thiết kế theo lối mở hiện đại để tạo sự kết nối liền mạch. Khu vực bếp nấu bố trí hệ tủ chữ L tối ưu công năng. Phía sau là khu giặt riêng biệt và 1 nhà vệ sinh chung kín đáo. Điểm nhấn là hệ thống giao thông đứng bao gồm cả thang bộ và thang máy, đáp ứng nhu cầu di chuyển tiện lợi.

Phòng khách trên tầng 2 được bố trí tại vị trí trung tâm, tiếp giáp với ban công lớn giúp đón ánh sáng tự nhiên và gió trời. Tầng này sở hữu 2 phòng ngủ 01 và 02, mỗi phòng đều có ban công riêng biệt tạo không gian riêng tư lý tưởng. Khu vực vệ sinh gồm 2 nhà vệ sinh được bố trí giữa hai phòng ngủ giúp đảm bảo sự tiện nghi trong sinh hoạt hàng ngày.

Lên tầng 3, phòng thờ được đặt ở vị trí trang trọng hướng ra ban công phía trước mặt tiền và phía sau là phòng sinh hoạt chung. Tầng này có thêm 2 phòng ngủ 03 và 04, ngoài ra tầng 3 còn có hệ thống chăm sóc sức khỏe với phòng xông khô và xông ướt riêng biệt, cùng 1 nhà vệ sinh chung để mang đến trải nghiệm nghỉ dưỡng ngay tại căn nhà phố 3 tầng lô góc này.











