Thiết kế nhà phố tân cổ điển sang trọng, đẳng cấp vượt thời gian | MH05822
| Chủ đầu tư: Anh Nguyễn Gia Lương | Số tầng: 3 |
| Địa chỉ: Chư Sê, Gia Lai | Diện tích xây dựng: 6,1 x 20,2m |
| Loại hình: Nhà phố tân cổ điển | Tổng diện tích: 295m2 |
Công năng:
|
|
Nhà phố tân cổ điển luôn là lựa chọn lý tưởng dành cho những gia chủ yêu thích vẻ đẹp sang trọng, tinh tế nhưng vẫn đảm bảo công năng sử dụng tiện nghi. Sự kết hợp hài hòa giữa đường nét kiến trúc cổ điển và hơi thở hiện đại giúp không gian nhà phố trở nên đẳng cấp, bền vững theo thời gian. Với cách xử lý mặt tiền khéo léo, bố cục cân đối và chi tiết trang trí tinh xảo, mẫu nhà phố tân cổ điển mang đến vẻ đẹp vượt ngoài mong đợi, khẳng định gu thẩm mỹ và vị thế của gia chủ giữa khu đô thị sầm uất.
Nếu nhắc đến những mẫu nhà tạo ấn tượng mạnh ngay từ ánh nhìn đầu tiên, thì thiết kế nhà phố tân cổ điển 3 tầng dưới đây chính là một đại diện tiêu biểu. Công trình không chỉ gây choáng ngợp bởi hình khối bề thế, tỷ lệ cân đối mà còn thể hiện rõ sự tinh tế, khéo léo của kiến trúc sư trong việc bố trí và kết hợp linh hoạt các loại mái. Giải pháp thiết kế này vừa nâng cao giá trị thẩm mỹ tổng thể, vừa tối ưu công năng sử dụng, đảm bảo sự tiện nghi và phù hợp với nhu cầu sinh hoạt lâu dài của gia đình.

Ấn tượng nổi bật đầu tiên của mẫu nhà phố tân cổ điển 3 tầng này chính là hệ cột Doric thông tầng, được bố trí kéo dài từ tầng 2 lên tầng 3, tạo cảm giác cao ráo, bề thế và sang trọng cho mặt tiền. Bên cạnh đó, các đường phào chỉ được thiết kế tinh tế, chạy xuyên suốt xung quanh công trình, góp phần tôn lên vẻ đẹp đặc trưng của phong cách tân cổ điển. Tổng thể kiến trúc được tổ chức theo nguyên tắc đối xứng chặt chẽ về hình khối và tỷ lệ, không chỉ đảm bảo giá trị thẩm mỹ mà còn thể hiện sự chuẩn mực, hài hòa trong thiết kế.

Tại khu vực tầng 3, ban công được thiết kế với đường nét mềm mại, uốn cong duyên dáng, kết hợp cùng hệ lan can sắt mỹ thuật tạo hình tinh xảo, góp phần làm nổi bật đặc trưng thanh lịch của phong cách tân cổ điển. Chi tiết cong này không chỉ tạo điểm nhấn kiến trúc độc đáo cho mặt tiền mà còn giúp tổng thể công trình trở nên nhẹ nhàng, uyển chuyển hơn. Đặc biệt, gam màu trắng được lựa chọn làm màu sắc chủ đạo càng tôn lên vẻ sang trọng, tinh khôi và giúp các chi tiết phào chỉ, hoa văn trang trí trở nên nổi bật hơn.

Mẫu nhà phố tân cổ điển được thiết kế với hệ bậc ngũ cấp cao ráo, giúp tôn nền công trình và tạo sự cân đối hài hòa giữa phần chân đế, thân nhà và hệ mái phía trên. Bên cạnh yếu tố hình khối, giải pháp lấy sáng tự nhiên cũng được kiến trúc sư đặc biệt chú trọng thông qua việc bố trí hệ cửa sổ và cửa ban công sử dụng kính cường lực kết hợp khung nhôm Xingfa cao cấp, vừa đảm bảo độ bền, vừa mang lại không gian thông thoáng và tràn ngập ánh sáng. Riêng tầng 1 sử dụng cửa thép vân gỗ sang trọng, không chỉ nâng cao tính an toàn mà còn góp phần hoàn thiện vẻ đẹp đẳng cấp cho tổng thể kiến trúc ngôi nhà.

Bên cạnh lối vào chính, mẫu nhà phố 3 tầng này còn được bố trí thêm hệ sảnh phụ bên hông, giúp tăng tính linh hoạt trong quá trình di chuyển và sử dụng không gian. Phần diện tích chừa bên hông được thiết kế rộng rãi, thuận tiện cho việc đỗ ô tô cũng như phục vụ sinh hoạt hằng ngày của gia đình. Trong các thiết kế của Maxhome, việc ưu tiên tổ chức nhiều lối ra vào luôn được chú trọng, nhằm đảm bảo sự thông thoáng, tiện nghi và đáp ứng tốt nhu cầu sử dụng thực tế của gia chủ.

Điểm độc đáo của mẫu nhà phố tân cổ điển này nằm ở giải pháp kết hợp linh hoạt nhiều loại mái khác nhau, vừa đáp ứng yêu cầu thẩm mỹ vừa tối ưu công năng sử dụng. Phía trước công trình sử dụng hệ mái vòm mềm mại, tạo dấu ấn sang trọng và đậm chất tân cổ điển; khu vực giữa là mái Thái cao ráo giúp chống nóng hiệu quả, đồng thời tăng chiều cao và độ thông thoáng cho không gian bên trong. Trong khi đó, phần cuối nhà được bố trí mái bằng, thuận tiện cho việc đặt bồn nước, hệ thống thái dương năng và tổ chức khu sân phơi.

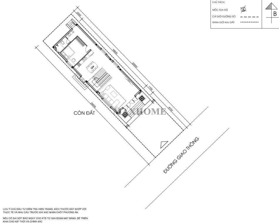
Tiếp theo là hình ảnh mặt bằng định vị công trình nhà phố tân cổ điển, giúp thể hiện rõ ranh giới khu đất xây dựng, vị trí đặt công trình trên lô đất cũng như mối liên hệ giữa ngôi nhà với không gian xung quanh, từ đó dễ dàng hình dung tổng thể quy mô và bố trí mặt bằng.

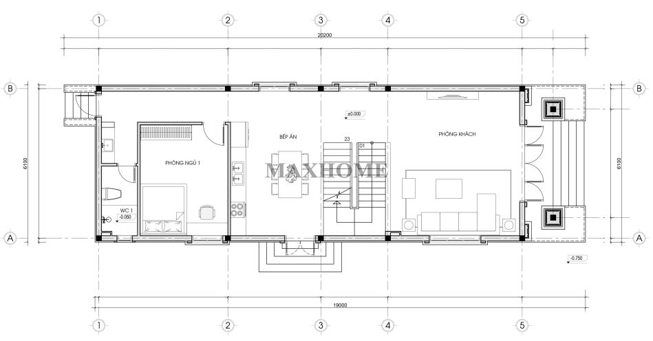
Từ cửa chính bước vào là không gian phòng khách được bố trí rộng rãi, thông thoáng, tạo cảm giác thoải mái và thuận tiện cho việc tiếp đón khách. Liền kề khu vực cầu thang là phòng bếp kết hợp phòng ăn, được sắp xếp khoa học, đảm bảo sự gọn gàng và tiện nghi trong quá trình sinh hoạt, đồng thời có lối đi ra sảnh phụ bên hông nhà giúp tăng khả năng thông gió và kết nối không gian. Ở cuối nhà bố trí một phòng ngủ yên tĩnh, phù hợp cho người lớn tuổi hoặc khách lưu trú, đặt cạnh khu vệ sinh chung, thuận tiện cho việc sử dụng hằng ngày.

Tầng 2 được bố trí chủ yếu cho không gian nghỉ ngơi với tổng cộng 3 phòng ngủ, đảm bảo sự riêng tư và tiện nghi cho các thành viên trong gia đình. Trong đó, phòng ngủ 02 được thiết kế nhà vệ sinh khép kín bên trong, đồng thời có cửa mở ra ban công, giúp không gian luôn thông thoáng và đón được nhiều ánh sáng tự nhiên. Hai phòng ngủ còn lại sử dụng chung một nhà vệ sinh, được bố trí hợp lý để thuận tiện trong sinh hoạt hằng ngày, đồng thời tối ưu diện tích sử dụng cho toàn bộ tầng.

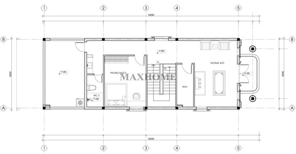
Tầng 3 được bố trí không gian phòng thờ trang nghiêm, đặt ở vị trí ưu tiên và hướng ra ban công, đảm bảo sự thông thoáng cũng như yếu tố phong thủy. Bên cạnh đó, tầng này còn có một phòng kho nhỏ gọn, thuận tiện cho việc lưu trữ đồ dùng sinh hoạt. Khu vực cuối nhà là phòng ngủ, được sắp xếp hợp lý và sử dụng chung nhà vệ sinh đặt liền kề, vừa đảm bảo sự riêng tư cần thiết, vừa tối ưu diện tích và công năng sử dụng cho toàn bộ mặt bằng.












