Tiện nghi với mẫu nhà cấp 4 có gara để xe rộng rãi ở Ninh Bình | MH05882

Chủ đầu tư: Anh Trần Thanh Bình Số tầng: 1
Địa chỉ: Nam Lý, Ninh Bình Diện tích xây dựng: 18 x 11,6m
Loại hình: Nhà mái Nhật hiện đại Tổng diện tích: 130m2
Công năng:

Phòng khách + thờ, phòng bếp, phòng làm việc, 3 phòng ngủ, 2 wc, bếp phụ

Bạn đang sở hữu một mảnh đất rộng rãi tại Ninh Bình và mong muốn xây dựng một tổ ấm vừa hiện đại vừa yên bình nhưng vẫn phải đầy đủ tiện nghi? Đừng bỏ qua mẫu thiết kế dưới đây, hãy cùng Maxhome khám phá sự kết hợp hoàn hảo giữa nét đẹp truyền thống và hơi thở hiện đại trong mẫu nhà cấp 4 có gara cực kỳ ấn tượng này nhé!

Ngắm nhìn tổng thể mẫu nhà cấp 4 có gara, điều đầu tiên khiến bất cứ ai cũng phải siêu lòng chính là sự thanh lịch và trang nhã. Ngôi nhà chọn tông màu trắng sứ rất đẹp mà không bao giờ lỗi mốt. Ngoài ra, sự tinh tế còn nằm ở phần chân tường được ốp gạch đá màu xám đen mang tới một giải pháp kỹ thuật thông minh giúp chống rêu mốc và bụi bẩn, giữ cho ngôi nhà luôn như mới theo thời gian

tien-nghi-voi-mau-nha-cap-4-co-gara-de-xe-rong-rai-o-ninh-binh-1

Điểm đắt giá nhất trong bản thiết kế này chính là phần gara ô tô được bố trí cực kỳ khoa học. Thay vì xây dựng gara khép kín tù túng thì đội ngũ thiết kế Maxhome đã phác hoạ một hệ mái che nhẹ nhàng phía bên hông nhà. Điều này tạo ra một không gian đệm thông thoáng giúp xe cộ không bị ám mùi xăng dầu vào không gian sống trong nhà. Với mẫu nhà cấp 4 có gara này, bạn sẽ hoàn toàn yên tâm về việc bảo quản phương tiện của gia đình khỏi tác động của thời tiết mà vẫn giữ được tính thẩm mỹ đồng bộ cho tổng thể ngôi nhà.

tien-nghi-voi-mau-nha-cap-4-co-gara-de-xe-rong-rai-o-ninh-binh-7

Bước lại gần hơn, bạn sẽ bị thu hút bởi hệ thống cửa được đầu tư bài bản. Cửa chính sử dụng chất liệu thép cao cấp với những đường giả vân gỗ tinh xảo rất giống thật. Cánh cửa thép lớn không chỉ là bộ mặt của gia chủ mà còn tạo cảm giác ấm áp, chào đón mỗi khi bạn trở về nhà.

Ngược lại, hệ thống cửa sổ lại được thiết kế theo phong cách hiện đại với khung nhôm hệ kết hợp kính cường lực để không gian bên trong luôn ngập tràn ánh sáng tự nhiên, giúp gia chủ có thể ngồi từ trong phòng khách mà vẫn tận hưởng được khung cảnh sân vườn xanh mát phía ngoài. Đây chính là lối kiến trúc mở mà bất kỳ mẫu nhà cấp 4 có gara hiện đại nào cũng hướng tới.

tien-nghi-voi-mau-nha-cap-4-co-gara-de-xe-rong-rai-o-ninh-binh-10

tien-nghi-voi-mau-nha-cap-4-co-gara-de-xe-rong-rai-o-ninh-binh-8

Để tạo thêm điểm nhấn cho mẫu nhà đẹp, Maxhome đã khéo léo kết hợp với hệ mái Nhật màu xanh than đậm với độ dốc vừa phải giúp thoát nước nhanh và còn mang lại vẻ đẹp cân đối, bề thế cho toàn bộ khuôn viên. Thêm nữa, một ngôi nhà đẹp tại Ninh Bình sẽ không thể hoàn thiện nếu thiếu đi hệ thống cổng và hàng rào chắc chắn. Ở bản thiết kế này, hàng rào được xây dựng những mảng tường trắng xen kẽ với các thanh nan sắt đen tạo nên sự thanh thoát, không gây cảm giác bí bách cho những người đi đường nhìn vào nhưng vẫn đảm bảo sự an toàn và riêng tư tuyệt đối cho gia chủ.

tien-nghi-voi-mau-nha-cap-4-co-gara-de-xe-rong-rai-o-ninh-binh-9

Khoảng sân rộng được lát gạch xám chống trơn trượt kết hợp cùng các bồn hoa nhỏ và cây xanh ở góc sân đã tạo nên một không gian sống xanh, hài hòa với thiên nhiên. Mỗi buổi chiều tà, đứng dưới sảnh hiên rộng rãi và ngắm nhìn chiếc xe thân yêu nằm gọn trong nhà cấp 4 có gara, bạn sẽ cảm nhận được định nghĩa thực sự của sự hưởng thụ.

tien-nghi-voi-mau-nha-cap-4-co-gara-de-xe-rong-rai-o-ninh-binh-11
Mặt bằng định vị công trình

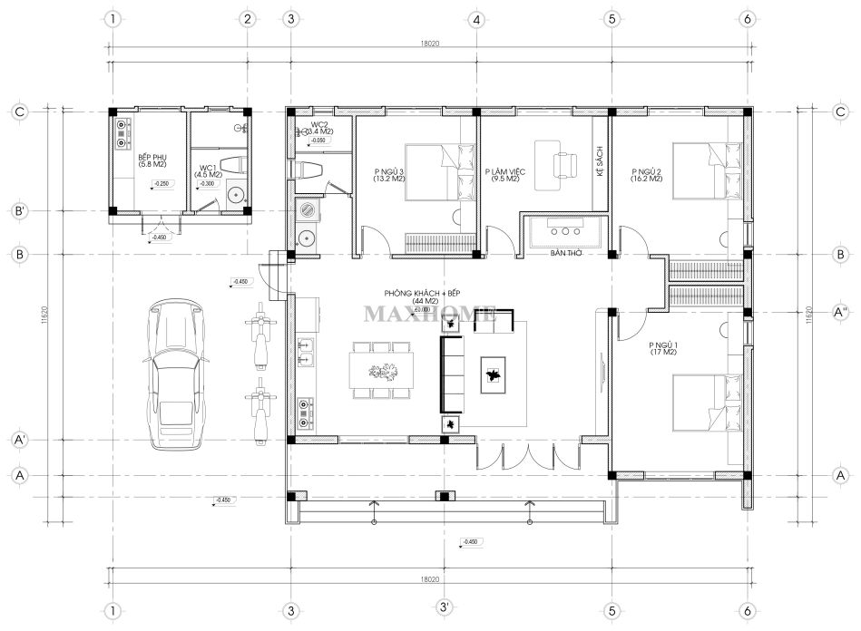
Nếu vẻ ngoài của ngôi nhà khiến bạn say đắm thì cách bố trí công năng bên trong sẽ làm bạn hoàn toàn thuyết phục bởi sự khoa học và ấm cúng. Trái tim của ngôi nhà là khu vực phòng khách được đặt gần liền mạch với gian bếp rộng 44m2 mang tới không khí vui vẻ, náo nhiệt khi có khách tới nhà chơi và dễ dàng thết đãi những bữa cơm trang trọng. Gần đó có khu vực bàn thờ nhỏ đặt gọn gàng trong góc rất trang nghiêm và ấm cúng nhờ ánh đèn vàng chiếu sáng nhẹ nhàng.

tien-nghi-voi-mau-nha-cap-4-co-gara-de-xe-rong-rai-o-ninh-binh-12
Mặt bằng bố trí công năng nhà cấp 4 có gara

Ngay cạnh phòng thờ là phòng làm việc 9,5m2 yên tĩnh giúp gia chủ có không gian riêng tư để tập trung sáng tạo và năng suất làm việc hơn. Sự tiện nghi được đẩy lên cao với 3 phòng ngủ rộng rãi đảm bảo sự riêng tư và thoải mái cho từng thành viên. Toàn bộ ngôi nhà sử dụng chung 2 nhà vệ sinh chung được thiết kế hiện đại, sạch sẽ và tối ưu hóa diện tích sử dụng. Đặc biệt, ngôi nhà cấp 4 có gara còn tinh tế bố trí thêm một bếp phụ rộng 5,8m2 phía ngoài để phục vụ cho những buổi tiệc tùng hay chế biến các món ăn cầu kỳ mà không lo ám mùi vào không gian chính.

Yêu cầu tư vấn

    *Vui lòng để lại thông tin, nhân viên tư vấn sẽ liên hệ lại quý khách trong thời gian sớm nhất