Tối ưu đất hẹp với mẫu nhà phố 4 tầng mặt tiền 4m đẹp mê ly | MH05734
| Chủ đầu tư: Anh Nguyễn Bá Trung | Số tầng: 4 |
| Địa chỉ: Bồ Đề, Hà Nội | Diện tích xây dựng: 4 x 16m |
| Loại hình: Nhà lô phố hiện đại | Tổng diện tích: 224m2 |
Công năng:
|
|
Nhà phố 4 tầng mặt tiền 4m đang trở thành giải pháp lý tưởng cho những gia đình sở hữu quỹ đất hẹp nhưng vẫn mong muốn có không gian sống rộng rãi, tiện nghi và thẩm mỹ. Với thiết kế thông minh, tối ưu từng mét vuông, mẫu nhà này không chỉ đáp ứng đầy đủ công năng mà còn mang đến vẻ đẹp hiện đại, sang trọng. Đây là một phương án hoàn hảo giúp mở rộng không gian theo chiều cao, phù hợp với cả khu vực đô thị đông đúc.
Trong bối cảnh quỹ đất đô thị ngày càng thu hẹp, những mẫu nhà phố hiện đại trở thành lựa chọn tối ưu cho các gia đình muốn sở hữu không gian sống tiện nghi trên diện tích hạn chế. Nắm bắt nhu cầu đó, Maxhome đã triển khai thiết kế mẫu nhà phố 4 tầng mặt tiền 4m cho gia đình anh Trung tại Bồ Đề, Hà Nội. Công trình không chỉ đảm bảo tính thẩm mỹ mà còn được tối ưu hóa về công năng, đáp ứng hoàn hảo nhu cầu sinh hoạt của gia đình trong môi trường đô thị đông đúc.

Điểm nhấn đầu tiên của mẫu nhà phố 4 tầng nằm ở phong cách kiến trúc hình khối hiện đại, được tạo nên từ những mảng khối vuông vức, mạnh mẽ. Công trình không sử dụng quá nhiều chi tiết trang trí cầu kỳ mà ưu tiên sự tối giản tinh tế. Gam màu trắng tinh khôi được chọn làm chủ đạo, kết hợp hài hòa với các vật liệu ốp trang trí như đá chẻ, gạch giả gỗ và gạch granite. Sự phối hợp này không chỉ mang lại vẻ đẹp sang trọng, khỏe khoắn mà còn giúp mặt tiền công trình trở nên bền bỉ và nổi bật theo thời gian.

Mẫu nhà phố 4 tầng sử dụng hệ thống cửa hoàn toàn bằng kính cường lực, giúp không gian luôn tràn ngập ánh sáng tự nhiên và tạo cảm giác rộng thoáng hơn cho ngôi nhà nằm trên mặt tiền hẹp. Công trình không bố trí cửa sổ mà thay vào đó là các cửa lớn dẫn ra ban công, vừa tối ưu tầm nhìn vừa tăng khả năng lấy gió. Khu vực cổng được thiết kế bằng sắt hộp sơn tĩnh điện bền chắc, đảm bảo an toàn và đồng thời mang đến vẻ đẹp hiện đại cho tổng thể kiến trúc.

Lan can ban công sử dụng chất liệu sắt sơn tĩnh điện với thiết kế tối giản, tạo cảm giác hiện đại nhưng vẫn chắc chắn. Ban công được bố trí không gian trồng cây xanh, giúp tăng cường mảng xanh cho ngôi nhà và mang lại cảm giác gần gũi với thiên nhiên, đồng thời giảm bớt sự khô cứng của môi trường đô thị cho nhà phố 4 tầng.

Nhà phố được thiết kế với mái bằng, phù hợp với nhiều phong cách kiến trúc đô thị hiện nay. Chúng tôi đã bố trí hệ thống thoát nước từ mái xuống một cách khoa học, đảm bảo hiệu quả chống thấm và ngăn ngừa ứ đọng nước. Bên cạnh đó, ngôi nhà 4 tầng còn được trang bị hệ thống giếng trời, giúp không gian bên trong luôn thông thoáng, tràn đầy ánh sáng tự nhiên và tạo sự kết nối hài hòa với môi trường bên ngoài.
Công trình được xây dựng theo hướng Tây Nam, với kích thước 4 x 16m, tối ưu hóa diện tích mặt tiền hẹp đặc trưng của nhà phố. Tổng diện tích sử dụng của ngôi nhà vào khoảng 224m², đáp ứng đầy đủ nhu cầu sinh hoạt của gia đình và cho phép bố trí các không gian chức năng một cách hợp lý, tiện nghi.

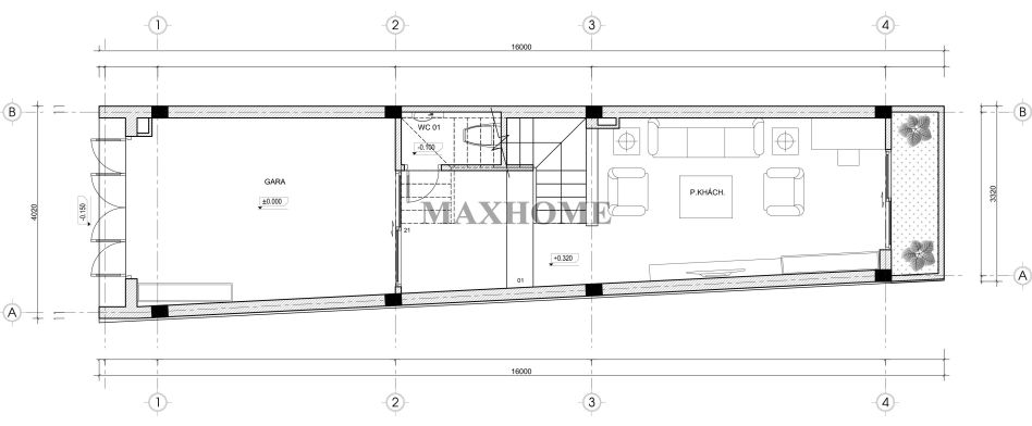
Từ cổng chính bước vào là khu vực gara để xe, được bố trí thuận tiện cho việc di chuyển hằng ngày. Đi qua không gian này, một bậc thềm nhỏ dẫn lên phòng khách rộng rãi, là nơi đón tiếp khách và sinh hoạt chung của gia đình. Ngoài ra, ngay dưới chân cầu thang còn có một nhà vệ sinh chung, thuận tiện cho việc sử dụng mà không ảnh hưởng đến sự riêng tư của các khu vực khác.

Tầng 2 được bố trí không gian bếp và phòng ăn thông thoáng, thuận tiện cho sinh hoạt hằng ngày của gia đình. Ở cuối nhà là một phòng ngủ có diện tích vừa phải, đảm bảo sự yên tĩnh và riêng tư. Bên cạnh đó, tầng này còn có một nhà vệ sinh chung đặt liền kề, giúp tối ưu hóa công năng và mang lại sự tiện lợi cho việc sử dụng.

Tầng 3 được thiết kế với hai phòng ngủ, mỗi phòng đều có cửa sổ lấy sáng tự nhiên, mang lại sự thông thoáng và thoải mái cho người sử dụng. Ngoài ra, tầng này còn được bố trí một nhà vệ sinh chung, thuận tiện cho sinh hoạt và đảm bảo tối ưu hóa công năng của toàn bộ không gian.

Tầng 4 được bố trí phòng thờ trang nghiêm, là không gian dành riêng cho việc thờ cúng và gìn giữ giá trị tâm linh của gia đình. Khu vực đặt máy giặt được sắp xếp gọn gàng, thuận tiện cho việc giặt giũ hằng ngày. Ngoài ra, tầng này còn có một sân thượng rộng rãi, phù hợp để trồng cây xanh, phơi đồ hoặc tạo một góc thư giãn thoáng mát cho các thành viên trong nhà.












