Bản thiết kế mẫu nhà ở kết hợp phòng dạy học đẹp và khang trang | MH06023
| Chủ đầu tư: Anh Vũ Đức Hà | Số tầng: 1 |
| Địa chỉ: Yên Từ, Ninh Bình | Diện tích xây dựng: 10,6 x 20,1m |
| Loại hình: Nhà mái Nhật tân cổ điển | Tổng diện tích: 153m2 |
| Công năng:
Phòng khách, phòng bếp, phòng dạy học, 4 phòng ngủ, 2 wc |
|
Nỗi niềm chung của các thầy cô giáo khi mở lớp tại gia thường là để làm sao học sinh đến học đông vui, rộn ràng mà không làm đảo lộn thế giới riêng tư của gia đình. Nếu bạn cũng đang loay hoay với bài toán đó thì câu trả lời nằm gọn trong bản thiết kế mẫu nhà ở kết hợp phòng dạy học đầy khang trang này. Hãy cùng Maxhome khám phá xem chủ đầu tư anh Hà đã sở hữu không gian sống này như thế nào để vừa có một tổ ấm bình yên vừa có một môi trường sư phạm chuyên nghiệp nhé!
Điểm nhấn đắt giá nhất của mẫu nhà ở kết hợp phòng dạy học chính là khu vực mặt tiền được chăm chút tỉ mỉ đến từng chi tiết nhỏ. Sảnh chính hiện lên đầy ấn tượng với hệ mái vòm cong nhẹ nhàng, đây cũng là một nét đặc trưng của phong cách tân cổ điển giúp làm mềm đi những khối hình vuông vức của diện tường. Nâng đỡ hệ mái này là cặp trụ cột vuông vức và uy nghi với phần bệ đỡ chắc chắn phía dưới. Để tăng thêm phần tinh tế, thân cột được điểm xuyết bởi những đường kẻ chỉ dọc thanh mảnh và chạy song song đều đặn tạo hiệu ứng thị giác kéo dài chiều cao cho ngôi nhà. Không chỉ dừng lại ở sảnh chính, tại các góc tường, Maxhome cũng khéo léo mô phỏng hệ cột tương đương để tạo nên một sự đồng nhất về cấu trúc và mang lại cảm giác kiên cố và bề thế cho toàn bộ khối nhà cấp 4 mái Nhật đẹp này.

Sự khang trang của mặt tiền còn được khẳng định qua hệ thống cửa được đầu tư bài bản. Toàn bộ các cửa sổ và cửa phụ đều sử dụng chất liệu nhôm hệ kính cao cấp với tông màu đen hiện đại giúp đón trọn ánh sáng tự nhiên vào không gian nội thất và tạo độ bền cao trước tác động của thời tiết. Đặc biệt, bộ cửa chính chính là trái tim của ngôi nhà khi được trang trí thêm các nan hoa đồng tinh tế bên trong lớp kính cường lực. Sự kết hợp giữa màu vàng ánh kim của đồng và sự sáng bóng của kính đã tạo nên vẻ ngoài rạng ngời dưới ánh nắng và thể hiện gu thẩm mỹ đẳng cấp của gia chủ ngay từ cái nhìn đầu tiên.

Để đảm bảo tính riêng tư cho gia đình anh Hà cũng như sự thuận tiện cho học sinh khi đến lớp, bài toán giao thông trong nhà ở kết hợp phòng dạy học được giải quyết rất thông minh. Ở hai bên hông nhà, các lối đi nhỏ được bố trí dẫn sâu vào bên trong giúp luồng di chuyển của các thành viên trong gia đình và khách mời được tách biệt rõ ràng.

Từng bậc thềm dẫn lối phụ đi vào tuy không được thiết kế quá cầu kỳ về hoa văn nhưng lại được tính toán kỹ lưỡng về độ cao và sự chắc chắn nhờ lát đá granite chống trơn trượt để đảm bảo an toàn tuyệt đối. Một lối đi sẽ dẫn thẳng vào khu vực phòng bếp ấm cúng giúp gia chủ dễ dàng vận chuyển thực phẩm hay di chuyển sinh hoạt mà không cần đi qua phòng khách. Trong khi đó, lối đi còn lại dẫn trực tiếp vào phòng dạy học để tạo ra không gian chuyên biệt dành riêng cho công việc giảng dạy của chủ đầu tư.

Khi quan sát từ trên cao, bạn mới có thể cảm nhận trọn vẹn sự tinh tế trong việc tổ chức hình khối và mái lợp. Công trình chính được bao phủ bởi hệ mái Nhật xếp tầng thanh lịch với màu xanh than trầm ấm, các độ dốc được tính toán tỉ mỉ giúp thoát nước nhanh và điều hòa không khí hiệu quả. Ngược lại, phía sau công trình phụ bao gồm bếp và phòng dạy học, để tiết kiệm chi phí nhưng vẫn đảm bảo công năng, Maxhome đã lựa chọn lắp đặt mái tôn chống nóng loại tốt nhất. Sự phân cấp này không chỉ giúp phân định rõ ràng không gian nghỉ ngơi và không gian làm việc mà còn tạo nên một tổng thể kiến trúc nhịp nhàng.

Bên cạnh căn nhà mới khang trang là sự hiện diện của căn nhà cũ được giữ lại tạo nên một sự kết nối giữa truyền thống và hiện đại, giữa những kỷ niệm xưa cũ và sự khởi đầu mới mẻ. Với diện tích xây dựng rộng rãi và cách bố trí khoa học, mẫu nhà ở kết hợp phòng dạy học này thực sự là một không gian lý tưởng vừa đảm bảo sự yên tĩnh cho việc học tập vừa mang lại cuộc sống tiện nghi, đẳng cấp cho cả gia đình anh Hà.

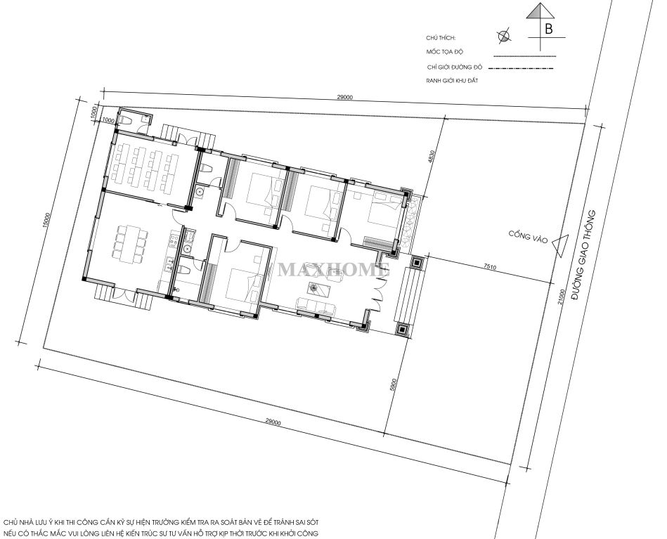
Bản vẽ tổng thể cho thấy công trình được đặt trên một khuôn viên đất hình thang có chiều dài khoảng 29m và chiều rộng trung bình khoảng 15m. Ngôi nhà ở kết hợp phòng dạy học được xây dựng lùi về phía sau để dành khoảng sân phía trước rộng rãi tạo khoảng lùi cần thiết so với đường giao thông. Cổng vào được bố trí thuận tiện, dẫn thẳng vào sân chính giúp việc di chuyển xe cộ dễ dàng.

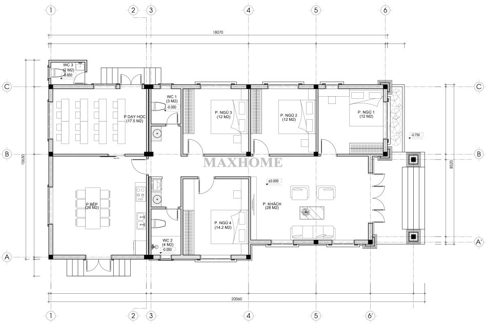
Căn phòng khách rộng rãi có diện tích 28m2 đóng vai trò là trung tâm kết nối các khu vực khác. Ngôi nhà sở hữu 4 phòng ngủ, trong đó phòng ngủ 04 rộng 14.2m2 và ba phòng ngủ còn lại có đồng diện tích 12m2 đảm bảo không gian riêng tư cho các thành viên. Khu vực bếp và phòng ăn được thiết kế tách biệt với diện tích 28m2 tạo sự thoải mái cho những bữa cơm gia đình. Đặc biệt, ngôi nhà còn có một phòng dạy học rộng 17.5m2 với lối đi riêng phù hợp cho mục đích làm việc. Hệ thống vệ sinh gồm 3 nhà vệ sinh được bố trí khéo léo tại các góc tiện dụng giúp tối ưu hóa diện tích sử dụng.












