Bật mí mẫu nhà phố 3 tầng 1 tum khiến dân mạng săn lùng nhiều nhất 2025! | MH05711
| Chủ đầu tư: Anh Trần Nam Hải | Số tầng: 3 tầng 1 tum |
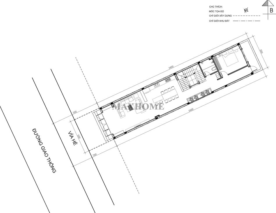
| Địa chỉ: Sơn Thuỷ, Tuyên Quang | Diện tích xây dựng: 5 x 25,2m |
| Loại hình: Nhà lô phố hiện đại | Tổng diện tích: 342m2 |
Công năng:
|
|
Ngày nay, những mẫu nhà phố 3 tầng 1 tum mặt tiền 5m đang trở thành lựa chọn lý tưởng cho các gia đình sinh sống tại khu đô thị đông đúc. Với thiết kế hiện đại, tối ưu không gian và đảm bảo tính thẩm mỹ cao, ngôi nhà không chỉ mang đến sự tiện nghi trong sinh hoạt mà còn thể hiện gu thẩm mỹ tinh tế của gia chủ. Mời bạn cùng tham khảo mẫu nhà đẹp do Maxhome thiết kế nhé!
Phối cảnh 3D của mẫu nhà phố 3 tầng 1 tum mang đến cái nhìn tổng thể tinh tế và đầy đẳng cấp. Kiến trúc được thiết kế theo phong cách hiện đại, kết hợp hài hòa giữa các khối hình vuông vức và những đường nét mềm mại, tạo nên sự cân đối và cuốn hút. Tông màu chủ đạo trắng – xám được phối hợp khéo léo, làm nổi bật vẻ đẹp thanh lịch, sang trọng và bền vững theo thời gian. Bên cạnh đó, các chi tiết trang trí tinh giản cùng vật liệu cao cấp như kính cường lực và lam nhôm không chỉ tăng tính thẩm mỹ mà còn giúp ngôi nhà đón sáng tự nhiên hiệu quả, mang lại không gian sống thông thoáng và hiện đại.

Mẫu nhà phố 3 tầng 1 tum sử dụng gam màu trắng làm chủ đạo, kết hợp tinh tế với các vật liệu hiện đại như gạch granite ốp tại tầng 1 và gạch giả đá trang trí ở một số mảng tường. Sự phối hợp hài hòa giữa màu sắc và chất liệu giúp tổng thể ngôi nhà trở nên sang trọng, nổi bật và có chiều sâu hơn. Bề mặt tường sáng màu không chỉ tôn lên vẻ thanh thoát, tinh tế mà còn giúp phản chiếu ánh sáng tự nhiên tốt hơn, mang lại cảm giác rộng rãi và thoáng đãng cho không gian sống. Các chi tiết ốp lát được thi công tỉ mỉ, góp phần nâng cao tính thẩm mỹ và độ bền vững cho công trình.

Toàn bộ hệ thống cửa của mẫu nhà đẹp được sử dụng nhôm hệ Xingfa cao cấp kết hợp với kính cường lực dày dặn, mang đến vẻ đẹp hiện đại, tinh tế và đảm bảo độ bền theo thời gian. Phần ban công lan can cũng được lắp đặt bằng kính cường lực trong suốt, không chỉ tăng tính an toàn mà còn giúp không gian trở nên thoáng đãng, mở rộng tầm nhìn và đón ánh sáng tự nhiên tối đa. Việc sử dụng đồng nhất vật liệu kính trong thiết kế góp phần tạo nên diện mạo sang trọng, đồng thời giúp công trình thể hiện rõ nét phong cách kiến trúc hiện đại và tinh gọn.

Ngôi nhà phố 3 tầng 1 tum do nằm sát với công trình liền kề nên kiến trúc sư đã khéo léo hạn chế việc bố trí cửa sổ ở hai bên hông để đảm bảo sự riêng tư và an toàn. Thay vào đó, toàn bộ hệ thống cửa sổ, cửa chính và ban công được tập trung ở mặt tiền, giúp công trình vẫn đảm bảo độ thông thoáng, tận dụng tối đa ánh sáng tự nhiên và gió trời. Giải pháp thiết kế này không chỉ mang lại hiệu quả thẩm mỹ cao, mà còn góp phần tối ưu công năng sử dụng, phù hợp với đặc trưng của những ngôi nhà phố có diện tích mặt tiền hạn chế trong khu đô thị hiện nay.

Điểm đặc biệt nổi bật của mẫu nhà phố 3 tầng 1 tum này chính là không gian hồ bơi được bố trí ngay tại tầng 3, có diện tích khoảng 26m². Đây là một thiết kế vô cùng ấn tượng và hiếm thấy ở các công trình nhà phố thông thường, mang đến khu vực thư giãn lý tưởng cho cả gia đình. Hồ bơi không chỉ giúp giải nhiệt trong những ngày nắng nóng, mà còn góp phần tăng giá trị thẩm mỹ cho ngôi nhà, tạo nên một không gian sống sang trọng, hiện đại và gần gũi với thiên nhiên ngay giữa lòng phố thị.

Khi thiết kế và thi công hồ bơi trong nhà, việc chống thấm là yếu tố vô cùng quan trọng cần được đặc biệt chú ý. Việc này không chỉ bảo vệ kết cấu công trình, tránh hiện tượng thấm dột, nứt nẻ, mà còn đảm bảo tuổi thọ và độ bền lâu dài cho hồ bơi. Các giải pháp chống thấm hiện đại như sử dụng vật liệu chống thấm chuyên dụng, lớp màng chống thấm hoặc sơn epoxy được thi công tỉ mỉ sẽ giúp ngăn chặn rò rỉ nước, đồng thời giữ cho không gian xung quanh hồ luôn khô ráo, an toàn và sạch sẽ. Việc quan tâm đến chống thấm ngay từ đầu còn giúp giảm chi phí bảo trì về sau và duy trì tính thẩm mỹ của toàn bộ công trình.


Điểm nhấn nổi bật của công trình chính là phần mái che kính cường lực uốn cong ở phía sau, tạo nên hiệu ứng thị giác mềm mại và hiện đại. Thiết kế này không chỉ mang lại giá trị thẩm mỹ độc đáo mà còn giúp tận dụng tối đa ánh sáng tự nhiên, mang đến sự thông thoáng và sáng sủa cho không gian bên dưới. Bên cạnh đó, hệ thống ban công ở các tầng được thiết kế tinh tế với lan can kính trong suốt kết hợp tay vịn inox sáng bóng, vừa mở rộng tầm nhìn, vừa góp phần tôn lên vẻ sang trọng và thanh thoát cho tổng thể ngôi nhà.


Công trình được xây dựng theo hướng Tây Nam, với kích thước 5 x 25,2m, tổng diện tích sử dụng khoảng 342m². Đây là diện tích lý tưởng để bố trí đầy đủ các không gian sinh hoạt tiện nghi cho gia đình, đồng thời vẫn đảm bảo sự thông thoáng và hài hòa trong tổng thể kiến trúc. Hướng Tây Nam cũng là lựa chọn phù hợp với nhiều gia chủ, giúp ngôi nhà đón nhận nguồn gió mát tự nhiên, hạn chế nắng gắt buổi chiều và mang lại cảm giác dễ chịu quanh năm.

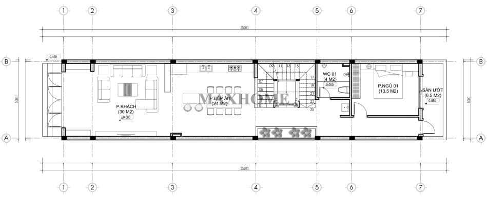
Từ cửa chính bước vào là không gian phòng khách rộng rãi, được bố trí ở vị trí trung tâm nhằm tạo ấn tượng đầu tiên khi bước vào nhà. Tiếp nối là khu vực bếp và phòng ăn được thiết kế liền kề, thuận tiện cho sinh hoạt hằng ngày cũng như kết nối các thành viên trong gia đình. Ở cuối nhà là phòng ngủ yên tĩnh, đảm bảo sự riêng tư và thoải mái cho người sử dụng. Bên cạnh đó là nhà vệ sinh chung được bố trí hợp lý, thuận tiện cho việc sử dụng của cả gia đình mà vẫn đảm bảo tính thẩm mỹ và công năng.

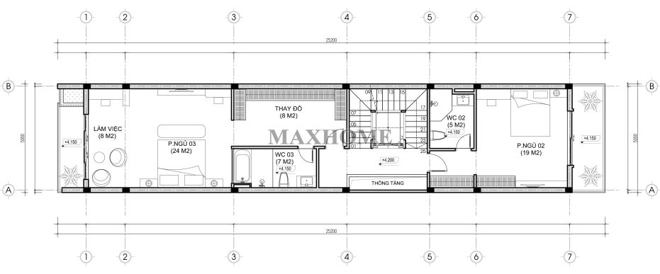
Tầng 2 được bố trí 2 phòng ngủ với thiết kế khoa học và tiện nghi. Phòng ngủ số 02 có nhà vệ sinh khép kín bên trong, mang lại sự riêng tư và thuận tiện cho người sử dụng. Trong khi đó, phòng ngủ số 01 được đầu tư không gian rộng rãi hơn, bao gồm nhà vệ sinh riêng, khu vực thay đồ và góc làm việc tách biệt. Cách bố trí này giúp tối ưu công năng, đồng thời tạo nên không gian nghỉ ngơi và sinh hoạt cá nhân đầy đủ tiện nghi, đáp ứng nhu cầu của từng thành viên trong gia đình.

Tầng 3 được thiết kế như một không gian thư giãn và rèn luyện sức khỏe cho cả gia đình. Nổi bật nhất là khu vực bể bơi ngoài trời, mang lại cảm giác thoải mái và giúp điều hòa không khí cho toàn bộ ngôi nhà. Bên cạnh đó là phòng tập gym được trang bị đầy đủ thiết bị, đáp ứng nhu cầu luyện tập tại nhà. Khu giặt phơi được bố trí gọn gàng, tách biệt để đảm bảo sự tiện lợi và tính thẩm mỹ. Ngoài ra, tầng này còn có phòng tắm riêng, phục vụ nhu cầu sử dụng sau khi bơi hoặc tập luyện, mang lại sự tiện nghi tối đa cho gia chủ.

Tầng tum được bố trí phòng thờ trang nghiêm, đặt ở vị trí cao nhất của ngôi nhà, thể hiện lòng thành kính của gia chủ đối với tổ tiên. Phía trước là khoảng sân chơi nhỏ được thiết kế thoáng mát, thích hợp làm nơi thư giãn, trồng cây xanh hoặc bố trí bàn ghế để thưởng trà, ngắm cảnh. Không gian này mang lại cảm giác “chill chill” nhẹ nhàng, giúp các thành viên trong gia đình có thể tận hưởng những giây phút nghỉ ngơi yên bình sau một ngày làm việc bận rộn.












