Biệt thự tân cổ điển 2 tầng mái Nhật mà Maxhome thiết kế cho gia đình anh Sơn tại Hưng Yên là hình mẫu cho một không gian sống thể hiện rõ đẳng cấp của gia chủ. Kiến trúc kiêu sa cùng đường nét tinh gọn tạo nên vẻ cuốn hút khó rời mắt và mang lại giá trị khác biệt cho toàn bộ công trình. Đây là lựa chọn lý tưởng cho những ai muốn tìm một thiết kế đẹp, sang và có phong thái riêng. Hãy cùng khám phá chi tiết siêu phẩm này trong phần nội dung dưới đây để thấy rõ giá trị mà nó mang lại.
Đẳng cấp biệt thự tân cổ điển 2 tầng mái Nhật đẹp kiêu sa ngút ngàn | MH05789
| Chủ đầu tư: Anh Phan Thanh Sơn | Số tầng: 2 |
| Địa chỉ: Hoàng Hoa Thám, Hưng Yên | Diện tích xây dựng: 12,2 x 12,2m |
| Loại hình: Biệt thự mái Nhật tân cổ điển | Tổng diện tích: 200m2 |
Công năng:
|
|
Mẫu biệt thự 2 tầng mái Nhật tân cổ điển được xem như biểu tượng của sự sang trọng và chuẩn mực thẩm mỹ. Các mảng khối được xử lý mạnh mẽ nhưng vẫn giữ nét hài hòa, kết hợp với chi tiết trang trí tinh gọn tạo nên vẻ đẹp cuốn hút cho toàn bộ công trình. Nhờ cách phối hợp nhịp nhàng giữa kiến trúc và phong cách, biệt thự toát lên sự tinh tế và tạo dấu ấn riêng biệt ngay từ cái nhìn đầu tiên.


Gam màu trắng tinh khôi bao phủ lấy toàn bộ công trình, gợi lên sự bình yên, nhẹ nhàng tạo cho gia chủ cảm giác thư thái giữa những ồn ào nơi phố thị. Sắc trắng tinh tế luôn là lựa chọn lý tưởng cho kiến trúc tân cổ điển vì giúp làm rõ từng đường nét và tôn lên giá trị thẩm mỹ của biệt thự mái Nhật 2 tầng.
Khi kết hợp cùng lan can nhôm đúc mạ vàng, mái Nhật đỏ trầm và cửa gỗ nâu, tổng thể công trình trở nên sang trọng và giàu chiều sâu hơn. Sự hòa hợp của các gam màu này khiến thiết kế trở nên vô cùng sang trọng và nổi bật.

Toàn bộ chân tường được ốp đá ghi xám tạo cảm giác chắc chắn và nâng cao độ bền cho phần ngoại thất biệt thự 2 tầng tân cổ điển mái Nhật. Màu ghi trung tính giúp công trình thêm sang và làm nền cho các chi tiết tân cổ điển nổi bật rõ hơn. Lớp đá ốp này cũng mang lại sự sạch sẽ, hạn chế bám bẩn, giữ cho ngôi biệt thự luôn mới và thu hút ở mọi góc nhìn.


Sau khi tiếp nhận thông tin và lắng nghe mong muốn của gia đình anh Sơn, đội ngũ KTS Maxhome đã nhanh chóng khảo sát hiện trạng khu đất để đưa ra phương án thiết kế phù hợp nhất cho mẫu biệt thự 2 tầng mái Nhật tân cổ điển.
Công trình được bố trí cửa chính quay về hướng Tây Nam, đảm bảo yếu tố phong thủy cũng như sự thuận tiện trong sinh hoạt. Với kích thước xây dựng 12,2 x 12,2m và tổng diện tích sử dụng khoảng 200m², ngôi nhà sở hữu mặt bằng vuông vắn, tạo điều kiện để KTS tối ưu không gian và đảm bảo công năng đầy đủ, thoáng đãng cho gia đình.

Phòng khách được đặt ở vị trí trung tâm vì đây là nơi đón nhận và lan tỏa nguồn năng lượng tích cực cho toàn bộ ngôi nhà, đồng thời phản ánh gu thẩm mỹ cũng như sự hiếu khách của chủ nhân. Phía bên trái phòng khách là không gian phòng thờ trang nghiêm, được bố trí hợp lý để đảm bảo sự yên tĩnh và tính linh thiêng. Tiếp nối phía cuối dãy là một phòng ngủ mang lại sự riêng tư và tiện lợi.
Bên phải công trình là phòng ăn ấm cúng, tạo cảm giác quây quần trong mỗi bữa cơm. Đi sâu vào bên trong là khu bếp rộng rãi, thiết kế mở ra sảnh phụ thoáng mát giúp không gian nấu nướng luôn dễ chịu; cạnh đó là nhà vệ sinh chung được đặt khéo léo để thuận tiện cho sinh hoạt hằng ngày.

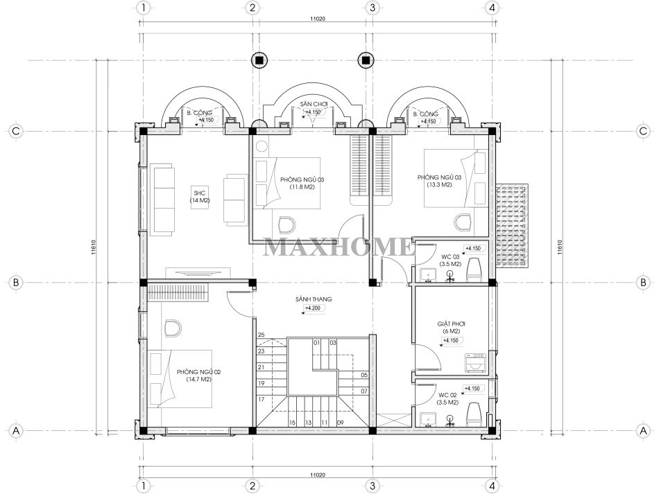
Tầng 2 được sắp xếp hợp lý với một phòng sinh hoạt chung và ba phòng ngủ thoáng sáng, trong đó phòng ngủ 03 được thiết kế khép kín để tăng sự riêng tư. Mỗi phòng đều có cửa sổ lớn hướng ra ngoài, giúp không gian luôn tràn ngập ánh sáng tự nhiên. Ngoài ra, tầng này còn có một nhà vệ sinh chung và phòng giặt riêng, mang đến sự tiện lợi và giữ cho sinh hoạt hằng ngày của gia đình luôn gọn gàng, ngăn nắp.











