Hot rần rần mẫu thiết kế nhà 2 tầng 4 phòng ngủ đẹp ở Hưng Yên | MH05993
| Chủ đầu tư: Anh Đỗ Văn Cần | Số tầng: 2 |
| Địa chỉ: Thôn Đại, Phụng Công, Hưng Yên | Diện tích xây dựng: 8,8 x 10,6m |
| Loại hình: Nhà mái Nhật hiện đại | Tổng diện tích: 150m2 |
Công năng:
|
|
Maxhome giới thiệu tới bạn mẫu nhà 2 tầng 4 phòng ngủ đẹp ở Hưng Yên, sở hữu diện tích hai mặt sàn 150m2 được bố trí công năng đầy đủ và tiện nghi. Nhờ sự khéo léo và sáng tạo của đội ngũ thiết kế mà gia đình anh Cần đã có trong tay bản vẽ nhà đẹp này để chuẩn bị xây tổ ấm mới cho cả gia đình.
Với mặt tiền rộng 8,8m, đội ngũ thiết kế Maxhome đã khéo léo triển khai những hình khối vuông vức, khỏe khoắn giúp ngôi nhà 2 tầng 4 phòng ngủ trông cực kỳ khang trang và bề thế ngay từ cái nhìn đầu tiên. Sự cân đối giữa chiều cao và chiều rộng kết hợp cùng các khoảng lùi hợp lý đã tạo nên một tổng thể hài hòa giúp không gian sống trở nên thoáng đãng và tràn đầy năng lượng.

Đi sâu vào chi tiết kiến trúc, điểm ấn tượng đầu tiên chính là cách xử lý phần đế của công trình. Toàn bộ nền nhà được tôn cao 450mm so với mặt sân và tương ứng với hệ bậc tam cấp dẫn vào sảnh chính. Việc nâng cao cốt nền không chỉ giúp ngôi nhà 2 tầng trông cao ráo, uy nghi hơn mà còn đảm bảo sự thông thoáng, tránh được tình trạng nồm ẩm hay ngập lụt vào mùa mưa. Đặc biệt, phần chân tường được ốp hoàn toàn bằng gạch thẻ màu xám tối màu vì vị trí này thường xuyên phải tiếp xúc với nước mưa bắn từ dưới đất lên, dễ gây ra hiện tượng rêu mốc và bong tróc sơn. Lớp gạch ốp không chỉ đóng vai trò bảo vệ nền móng vững chắc trước tác động của thời tiết mà còn tạo ra một điểm nhấn màu sắc trầm mặc, làm nền cho các khối kiến trúc phía trên tỏa sáng.

Sự tinh tế của mẫu thiết kế nhà 2 tầng 4 phòng ngủ này còn nằm ở cách phối màu sơn ngoại thất. Trên nền sơn trắng chủ đạo tinh khôi, Maxhome đã điểm xuyết những mảng tường sơn màu xám nhạt tại các vị trí phân tầng và dưới mái. Cách phối màu này tạo ra một hiệu ứng thị giác phân lớp rõ rệt, xóa tan đi sự đơn điệu của những bức tường phẳng lì, mang đến nét đẹp hiện đại và trẻ trung.

Hệ thống cột trụ của ngôi nhà cũng được thiết kế đồng nhất với phong cách chung. Những chiếc cột vuông vững chãi được thiết kế tỉ mỉ với phần đế ốp đá đen bóng và thân cột sơn màu xám trang nhã. Ở giữa thân cột, các đường sọc kẻ trắng tinh tế chạy dọc tạo điểm nhấn thanh thoát kết hợp cùng đèn hắt tường trang trí tỏa ra ánh sáng vàng ấm áp vào ban đêm, biến ngôi nhà anh Cần trở nên lung linh và lộng lẫy như một căn villa nghỉ dưỡng cao cấp.

Một yếu tố không thể thiếu góp phần tạo nên vẻ đẹp hiện đại cho công trình tại Hưng Yên chính là hệ thống cửa. Toàn bộ cửa chính, cửa sổ và cửa ra vào ban công đều sử dụng khung nhôm hệ cao cấp kết hợp với kính cường lực bản lớn. Việc sử dụng vật liệu kính không chỉ giúp tối ưu hóa khả năng lấy sáng tự nhiên vào sâu trong các phòng chức năng mà còn mở ra những góc nhìn đẹp mắt ra không gian xanh bên ngoài.

Đi kèm với đó là hệ thống ban công sử dụng lan can kính cường lực trong suốt giúp mở rộng tầm nhìn và tạo cảm giác không gian không bị giới hạn. Mảnh ghép cuối cùng hoàn thiện vẻ đẹp ngoại thất hoàn hảo này chính là hệ mái Nhật màu xanh than lịch lãm. Khác với mái Thái có độ dốc lớn và nhọn, mái Nhật với độ dốc vừa phải, mở ra các hướng khác nhau tạo nên sự cân bằng và thanh thoát. Phía trên mái, các thiết bị kỹ thuật như bồn nước hay thái dương năng cũng được tính toán vị trí lắp đặt gọn gàng để đảm bảo tính thẩm mỹ cao nhất cho công trình.


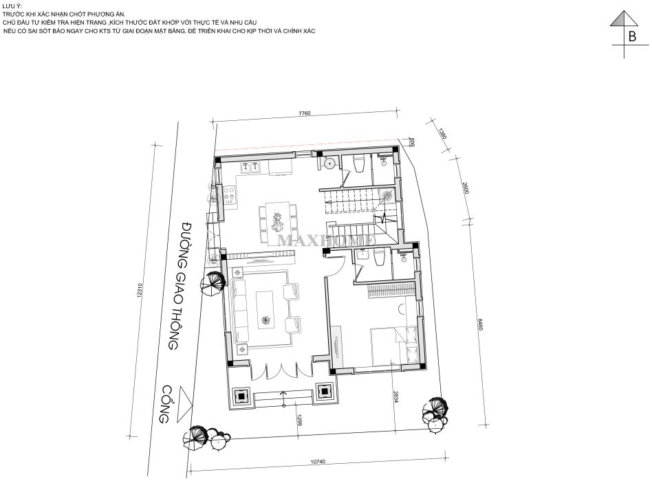
Vị trí khu đất của gia đình anh Chuyên tại Hưng Yên có một hình dáng khá đặc thù với một cạnh tiếp giáp đường giao thông chính. Maxhome đã khéo léo đặt công trình lùi lại một khoảng so với cổng chính giúp tạo ra một khoảng sân trước đủ rộng để đỗ xe và làm vùng đệm ngăn cách tiếng ồn từ đường phố. Cách bố trí này không chỉ tối ưu hóa diện tích đất mà còn tạo ra các khoảng trống chạy dọc bên hông nhà giúp tất cả các phòng đều có cửa sổ mở ra bên ngoài để đón gió và ánh sáng tự nhiên.


Phòng khách rộng 17,5m2 được bài trí sofa hiện đại, tiếp tục đi thẳng vào là khu vực bếp kết hợp phòng ăn rộng 16m2. Hai không gian này được thiết kế liên thông, ngăn cách nhẹ nhàng bởi kệ tivi tạo cảm giác không gian mở cực kỳ rộng rãi. Tầng 1 còn bố trí một phòng ngủ 01 có diện tích 12,8m2 có vệ sinh riêng biệt 3,4m2 rất phù hợp cho người lớn tuổi trong gia đình để thuận tiện di chuyển. Ngoài ra, một nhà vệ sinh chung 4,2m2 được đặt cạnh khu vực cầu thang giúp đảm bảo sự kín đáo và tiện lợi cho khách ghé thăm nhà.

Bước lên tầng 2, chúng ta sẽ bắt gặp một không gian sống yên tĩnh và riêng tư hơn với 3 phòng ngủ và 1 phòng thờ. Phòng thờ rộng 7,5m2 được đặt ở vị trí trang trọng nhất và hướng ra ban công lớn phía trước để đón vượng khí. Các phòng ngủ đều được tính toán kỹ lưỡng về vị trí đặt giường và tủ quần áo để tối ưu hóa không gian sử dụng.
Với diện tích sàn sử dụng rộng rãi của mẫu nhà 2 tầng giúp bố trí được 4 phòng ngủ đảm bảo tính riêng tư, mẫu nhà đẹp này thực sự là một không gian sống đáng mơ ước, kết hợp hoàn hảo giữa công năng sử dụng thực tế và vẻ đẹp kiến trúc thời đại, hứa hẹn sẽ tiếp tục dẫn đầu xu hướng thiết kế nhà ở trong thời gian tới.











