Khám phá mẫu nhà mái bằng tối giản 8x15m hiện đại và tiện nghi | MH05820
| Chủ đầu tư: Anh Đỗ Thanh Hải | Số tầng: 2 |
| Địa chỉ: Củ Chi, Thành Phố Hồ Chí Minh | Diện tích xây dựng: 8 x 14,8m |
| Loại hình: Nhà mái bằng hiện đại | Tổng diện tích: 200m2 |
Công năng:
|
|
Sở hữu diện tích 8x15m, mẫu nhà mái bằng phong cách tối giản nhanh chóng ghi điểm nhờ thiết kế hiện đại, bố cục thông minh và không gian sống thoáng sáng. Việc tinh giản đường nét kết hợp tối ưu ánh sáng tự nhiên giúp căn nhà vừa mang vẻ đẹp trẻ trung, vừa đảm bảo sự tiện nghi cho gia đình hiện đại. Đây là lựa chọn lý tưởng cho những ai yêu thích sự gọn gàng, sang trọng và muốn tối ưu chi phí xây dựng.
Giữa nhịp sống vội vã của đô thị, một căn nhà 8x15m mái bằng tối giản trở thành “khoảng thở” bình yên dành cho gia chủ. Không chạy theo sự cầu kỳ, công trình chọn cách tỏa sáng bằng những đường nét gọn gàng, mảng sáng tự nhiên và bố cục mở đầy tinh tế. Nhờ đó, ngôi nhà không chỉ đẹp hiện đại mà còn mang đến cảm giác thư thái, tiện nghi trong từng bước chân – đúng tinh thần của kiến trúc tối giản đương đại.

Ngoài ra, mẫu nhà mái bằng 4 phòng ngủ này được nhấn mạnh bởi hệ kẻ chỉ âm tường chạy xuyên suốt các mặt đứng. Những đường kẻ chỉ không chỉ tạo nên hiệu ứng thẩm mỹ hiện đại, giúp công trình thêm sắc nét và sinh động mà còn hỗ trợ hạn chế nước mưa hắt ngược vào khu vực cửa sổ. Đây là chi tiết nhỏ nhưng mang lại giá trị lớn, góp phần tăng độ bền và bảo vệ tốt hơn cho phần tường ngoại thất.

Ngôi nhà lựa chọn tông màu trắng kem làm chủ đạo, mang đến vẻ đẹp nhẹ nhàng và sáng thoáng cho toàn bộ không gian ngoại thất. Trong quá trình KTS Maxhome triển khai phương án thiết kế, gia chủ hoàn toàn có thể tùy chọn bảng màu theo sở thích để phù hợp phong thủy và gu thẩm mỹ riêng. Bên cạnh đó, khu vực mặt tiền còn được điểm xuyết bằng hiệu ứng sơn giả đá, giúp công trình thêm nổi bật, tạo chiều sâu và tăng tính sang trọng cho diện mạo tổng thể.

Toàn bộ hệ cửa của ngôi nhà mái bằng 2 tầng đều sử dụng nhôm hệ Xingfa kết hợp kính cường lực cao cấp, mang lại độ bền vượt trội, khả năng cách âm – cách nhiệt tốt và đảm bảo tính thẩm mỹ hiện đại. Ở góc nhìn này, chúng ta cũng dễ dàng nhận thấy khu vực cuối nhà được bố trí một mái che làm từ khung sắt sơn tĩnh điện, phía trên lợp kính, giúp không gian phía sau luôn sáng thoáng mà vẫn được bảo vệ khỏi mưa nắng.
Hình ảnh nhìn từ trên cao cho thấy hệ mái bằng của ngôi nhà được thi công bằng bê tông cốt thép kiên cố, đảm bảo độ bền và khả năng chịu lực cao. Sau khi hoàn thiện, phần mái sẽ được lắp đặt hệ thống thoát nước tiêu chuẩn với các đường ống được bố trí khoa học, giúp nước mưa thoát nhanh và hạn chế hoàn toàn tình trạng đọng nước. Nhờ đó, gia chủ có thể hoàn toàn yên tâm về độ an toàn và tuổi thọ của mái bằng theo thời gian.

Bên cạnh đó, ngôi nhà mái bằng này còn sở hữu một khoảng sân rộng rãi được bố trí cây xanh tươi mát, tạo nên không gian gần gũi với thiên nhiên. Việc trồng thêm mảng xanh không chỉ giúp giảm cảm giác đô thị hóa mà còn mang lại sự thoáng đãng, cải thiện vi khí hậu và tạo nơi thư giãn lý tưởng cho gia đình.

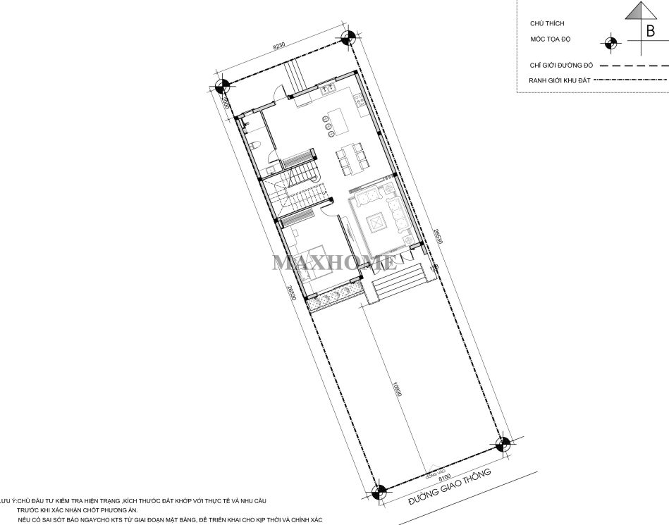
Công trình nhà mái bằng được thiết kế với kích thước xây dựng 8 x 14,8m, mang lại bố cục kiến trúc cân đối và phù hợp cho nhiều loại hình đất. Tổng diện tích sử dụng của ngôi nhà vào khoảng 200m², đáp ứng tốt nhu cầu sinh hoạt của gia đình và tạo không gian thoải mái cho việc bố trí công năng.

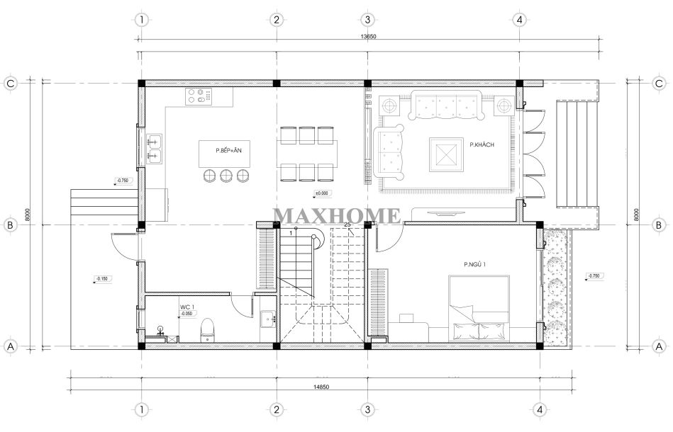
Từ cửa chính bước vào là không gian phòng khách rộng rãi, được bố trí thông thoáng và liền mạch. Kế tiếp, qua hệ lam trang trí là khu vực bếp – ăn tiện nghi, đảm bảo sự riêng tư mà vẫn kết nối hài hòa với phòng khách. Tầng 1 còn có một phòng ngủ phù hợp cho người lớn tuổi hoặc khách lưu trú, và ở cuối nhà là một nhà vệ sinh chung được bố trí gọn gàng, thuận tiện cho mọi thành viên sử dụng.

Tầng 2 được bố trí phòng thờ trang nghiêm, có cửa bốn cánh mở ra ban công giúp không gian luôn thoáng sáng và hợp phong thủy. Xung quanh khu vực trung tâm là ba phòng ngủ với diện tích vừa vặn, đáp ứng nhu cầu sinh hoạt riêng tư của các thành viên trong gia đình. Ở cuối nhà là khu giặt phơi tiện lợi cùng một nhà vệ sinh chung, bảo đảm sự thuận tiện trong quá trình sử dụng hằng ngày.












