Mẫu biệt thự mái Nhật có sân vườn xanh mát, thiết kế sang trọng 2026 | MH05848
| Chủ đầu tư: Chị Sa Thị Huế | Số tầng: 2 |
| Địa chỉ: Thượng Bằng La, Lào Cai | Diện tích xây dựng: 12 × 18,8m |
| Loại hình: Biệt thự mái Nhật | Tổng diện tích: 389m2 |
Công năng:
|
|
Biệt thự mái Nhật có sân vườn đang trở thành xu hướng được nhiều gia đình Việt ưa chuộng nhờ sự kết hợp hài hòa giữa kiến trúc tinh tế và không gian sống gần gũi với thiên nhiên. Với thiết kế mái Nhật thanh thoát, đường nét nhẹ nhàng cùng khuôn viên sân vườn xanh mát bao quanh, mẫu biệt thự này không chỉ mang đến vẻ đẹp sang trọng, hiện đại mà còn tạo nên môi trường sống thư thái, tiện nghi và bền vững theo thời gian.
Ngôi nhà không chỉ đơn thuần là nơi trở về sau mỗi ngày làm việc mà còn là không gian tận hưởng cuộc sống trọn vẹn. Trong công trình này, Maxhome đã khéo léo thiết kế mẫu biệt thự mái Nhật theo phong cách tân cổ điển sang trọng, kết hợp hài hòa giữa nét đẹp tinh tế, đẳng cấp và công năng sử dụng tiện nghi, mang đến một tổ ấm bền vững theo thời gian.

Mẫu biệt thự mái Nhật được thiết kế theo phong cách tân cổ điển, thể hiện rõ nét qua các hệ vòm mềm mại, đường phào chỉ tinh tế cùng những chi tiết đường cong bán nguyệt tại khu vực ban công tầng 2. Sự kết hợp hài hòa giữa các yếu tố kiến trúc này không chỉ tạo nên vẻ đẹp sang trọng, thanh lịch mà còn giúp tổng thể công trình trở nên cân đối, cuốn hút và giàu tính thẩm mỹ.

Công trình lựa chọn gam màu trắng làm tông màu chủ đạo, đặc trưng cho phong cách tân cổ điển, giúp làm nổi bật sự tinh tế của các đường phào chỉ cùng những chi tiết trang trí mềm mại, cân đối. Sắc trắng mang đến cảm giác sang trọng, thanh lịch và nhẹ nhàng, đồng thời tôn vinh rõ nét hình khối kiến trúc, tạo chiều sâu cho mặt tiền. Bên cạnh giá trị thẩm mỹ, gam màu này còn giúp công trình luôn giữ được vẻ đẹp trang nhã, dễ phối hợp vật liệu và bền vững với thời gian.

Bên cạnh đó, công trình được thiết kế với khoảng sân rộng thoáng, toàn bộ bề mặt được ốp gạch chỉn chu, sạch sẽ và bằng phẳng, đảm bảo sự thuận tiện trong quá trình di chuyển cũng như các hoạt động sinh hoạt ngoài trời. Khu vực sân còn được kết hợp hài hòa với mảng xanh thiên nhiên, mang đến không gian thoáng mát, trong lành và dễ chịu. Đặc biệt, chòi nghỉ mát được bố trí hợp lý, tạo điểm nhấn cảnh quan, là nơi lý tưởng để gia đình thư giãn, uống trà hay quây quần trò chuyện, góp phần nâng tầm chất lượng sống và giá trị thẩm mỹ cho tổng thể công trình.




Hệ thống cổng được thiết kế theo phong cách tân cổ điển sang trọng, sử dụng chất liệu sắt mỹ thuật cao cấp với các hoa văn, họa tiết uốn lượn tinh xảo và sống động. Không chỉ tạo điểm nhấn thẩm mỹ ấn tượng cho mặt tiền, phần cổng còn thể hiện sự bề thế, đẳng cấp của công trình, đồng thời đảm bảo độ chắc chắn, an toàn và độ bền cao theo thời gian.

Công trình biệt thự mái Nhật được xây dựng trên khuôn viên đất rộng rãi với kích thước 12 × 18,8m, mang đến không gian sân vườn thoáng đãng và tách biệt. Nhờ lợi thế quỹ đất lớn, các khu vực chức năng được bố trí khoa học, đảm bảo sự thông thoáng và tiện nghi trong quá trình sử dụng. Tổng diện tích sử dụng của toàn bộ công trình ước tính khoảng 389m², đáp ứng tốt nhu cầu sinh hoạt, nghỉ ngơi và nâng cao chất lượng sống cho gia đình.

Tầng 1 được bố trí không gian phòng khách rộng rãi với diện tích lên đến 48 m², tạo cảm giác thông thoáng và thuận tiện cho việc tiếp đón khách cũng như sinh hoạt chung của gia đình. Tiếp nối phía trong là khu vực bếp và phòng ăn có diện tích lớn, được sắp xếp khoa học và kết nối linh hoạt với lối đi qua sảnh phụ, giúp việc di chuyển và thông gió trở nên thuận tiện hơn. Ngoài ra, tầng 1 còn bố trí một phòng ngủ yên tĩnh, nằm liền kề nhà vệ sinh chung, phù hợp cho người lớn tuổi hoặc khách lưu trú, đảm bảo sự tiện nghi trong quá trình sử dụng.

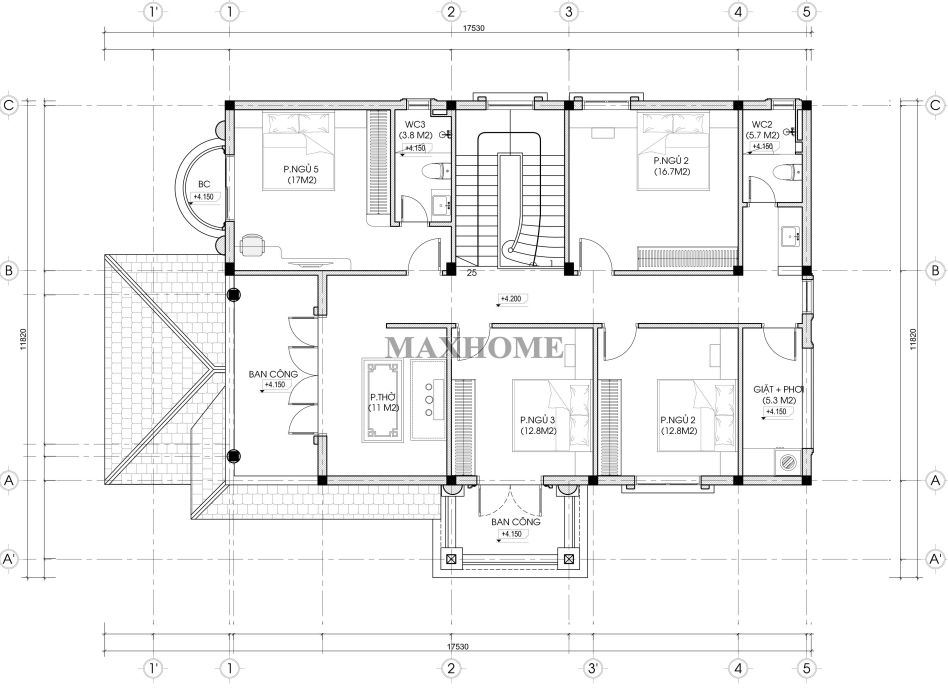
Tầng 2 được bố trí phòng thờ trang nghiêm, đặt ở vị trí cao ráo và hướng ra ban công thoáng mát, tạo sự yên tĩnh và tôn nghiêm trong sinh hoạt tâm linh. Bao quanh khu vực này là 4 phòng ngủ được sắp xếp khoa học, đảm bảo sự riêng tư và thông thoáng cho từng không gian. Trong đó, phòng ngủ số 05 được thiết kế nhà vệ sinh khép kín bên trong, mang lại sự tiện nghi tối đa, còn các phòng ngủ còn lại sử dụng chung một nhà vệ sinh và khu vực giặt phơi, đáp ứng đầy đủ nhu cầu sinh hoạt của cả gia đình.












