Mẫu nhà 2 tầng 1 tum mái bằng đẹp hiện đại tinh tế đáng xây nhất | MH06021

Chủ đầu tư: Anh Mai Hoàng Quý Số tầng: 2 tầng 1 tum
Địa chỉ: Yên Tử, Ninh Bình Diện tích xây dựng: 10 x 15,3m
Loại hình: Nhà mái bằng hiện đại Tổng diện tích: 250m2
Công năng:
  • Tầng 1: Phòng khách, phòng bếp, 2 phòng ngủ, 2 wc
  • Tầng 2: Phòng thờ, phòng sinh hoạt chung, 2 phòng ngủ, 1 wc, sân phơi
  • Tầng tum: Sân thượng

Nếu bạn đang tìm kiếm một tổ ấm sang trọng, tiện nghi và đạt chuẩn trong từng đường nét thì mẫu nhà 2 tầng 1 tum mái bằng do Maxhome thiết kế cho gia đình anh Quý tại Ninh Bình chính là lựa chọn lý tưởng. Ngôi nhà chinh phục mọi ánh nhìn với phong cách kiến trúc hiện đại, đường nét tinh tế và bố cục cân xứng. Không gian sống bên trong được tổ chức khoa học, rộng rãi và tràn ngập ánh sáng, mở ra sự kết nối tự nhiên với cảnh quan xanh mát, mang đến cảm giác thư thái, dễ chịu mỗi ngày cho các thành viên.

Mẫu nhà 2 tầng 1 tum mái bằng sở hữu vẻ đẹp cân đối, khỏe khoắn nhưng không kém phần tinh tế, tạo cảm giác sang trọng và cuốn hút ngay từ cái nhìn đầu tiên. Dù quan sát ở bất kỳ góc độ nào, ngôi nhà vẫn giữ được sự nhất quán về thẩm mỹ, đồng thời tối ưu công năng sử dụng, đáp ứng trọn vẹn nhu cầu sinh hoạt của gia đình hiện đại. Đây cũng là minh chứng rõ nét cho tư duy thiết kế sáng tạo, sự tận tâm và tính chuyên nghiệp của đội ngũ kiến trúc sư Maxhome trong hành trình kiến tạo những không gian sống tiện nghi, đẳng cấp và bền vững theo thời gian.

Mặt tiền ngôi nhà gây ấn tượng nổi bật nhờ sự kết hợp hài hòa giữa các mảng khối vuông vức và bố cục kiến trúc được tổ chức chặt chẽ, mang đến vẻ đẹp bề thế, mạnh mẽ nhưng vẫn toát lên tinh thần phóng khoáng của phong cách hiện đại. Để nâng cao tính thẩm mỹ và khả năng bảo vệ công trình, bậc tam cấp được thiết kế cao hơn mặt đường 450 mm, giúp hạn chế tối đa tình trạng nước mưa bắn vào bên trong. Toàn bộ khu vực bậc thềm được ốp đá granite cao cấp, không chỉ gia tăng độ bền trước tác động của thời tiết mà còn góp phần tôn lên diện mạo khỏe khoắn, sang trọng cho ngôi nhà.

Song song với đó, hệ cửa kính lớn được bố trí xuyên suốt các tầng đóng vai trò cân bằng tổng thể kiến trúc, giúp công trình trở nên thanh thoát hơn, đồng thời tối ưu khả năng đón sáng tự nhiên, mở rộng tầm nhìn và tạo sự kết nối tinh tế giữa không gian nội thất và cảnh quan bên ngoài.

Cách phối màu sắc của ngôi nhà 2 tầng 1 tum mái bằng được lựa chọn theo tinh thần tối giản hiện đại, lấy các gam trung tính như trắng, xám và ghi làm chủ đạo, qua đó tôn lên vẻ sang trọng và thanh lịch cho tổng thể kiến trúc. Sự đan xen giữa các mảng tường sáng màu với vật liệu ốp vân đá và khung cửa tối màu tạo nên chiều sâu thị giác, giúp ngôi nhà vừa nổi bật vừa giữ được sự hài hòa, không phô trương.

Gam màu này còn có tác dụng làm mềm các khối kiến trúc vuông vức, mang lại cảm giác nhẹ nhàng, tinh tế và phù hợp với xu hướng thiết kế đương đại. Bên cạnh giá trị thẩm mỹ, việc sử dụng màu sắc sáng kết hợp hệ cửa kính lớn giúp tăng khả năng phản xạ ánh sáng, giảm hấp thụ nhiệt, góp phần nâng cao hiệu quả sử dụng năng lượng và mang đến không gian sống thoáng đãng, tiện nghi.

Công trình được kiến tạo từ những khối hình học vuông vắn, kết hợp linh hoạt giữa các mảng kiến trúc có kích thước đa dạng, tạo nên vẻ đẹp độc đáo và thu hút. Sự sắp đặt sáng tạo này không chỉ mang lại diện mạo ấn tượng mà còn mở ra những khoảng không gian rộng rãi, giúp tối ưu ánh sáng và thông gió tự nhiên. Nhờ đó, ngôi nhà không chỉ thể hiện sự sang trọng, hiện đại mà còn mang đến cho gia chủ cảm giác thư thái như được hoà mình với thiên nhiên xanh mát.

Hệ mái bằng được bố trí gọn và chắc, tạo cảm giác vững chãi cho toàn bộ công trình. Trên tầng tum, téc nước mưa và hệ thống thái dương năng được sắp đặt khoa học để không phá vỡ đường nét tổng thể. Giải pháp này vừa tối ưu tiện ích sinh hoạt vừa giảm tiêu thụ điện, thân thiện hơn với môi trường.

Xung quanh ngôi nhà là hệ cây xanh tươi mát, tạo cảm giác gần gũi, trong lành và thư thái. Các chậu cây cảnh được bố trí tinh tế tại ban công từng tầng, không chỉ mang thiên nhiên đến gần hơn mà còn giúp điều hòa không khí, giảm bức xạ nhiệt. Khoảng sân rộng rãi được lát gạch chống trơn, thích hợp cho các hoạt động giải trí ngoài trời.

Ngôi nhà 2 tầng 1 tum mái bằng không chỉ sở hữu vẻ đẹp sang trọng, tinh tế mà còn được thiết kế tối ưu công năng, hài hòa các yếu tố phong thủy để thu hút sinh khí và tài lộc cho gia chủ. Tọa lạc tại hướng Tây Bắc, công trình có diện tích xây dựng 10 x 15,3m và tổng diện tích sử dụng khoảng 250m². KTS đã bố trí không gian sinh hoạt một cách khoa học, đảm bảo sự tiện nghi, riêng tư mà vẫn gắn kết, tạo nên tổ ấm ấm cúng và thoải mái.

Mặt bằng định vị công trình

Từ sảnh chính bước vào, không gian phòng khách hiện ra đầy ấn tượng với vẻ đẹp sang trọng và chỉn chu, vừa là nơi đón tiếp khách quý, vừa thể hiện rõ gu thẩm mỹ tinh tế của gia chủ. Liền kề phía sau là phòng ngủ khép kín dành cho ông bà, được bố trí thuận tiện cho việc sinh hoạt hằng ngày. Gần khu vực cầu thang là phòng ngủ dành cho khách ở lại, đảm bảo sự riêng tư nhưng vẫn gắn kết với tổng thể không gian chung.

Cuối nhà là khu bếp và phòng ăn rộng rãi, được trang bị đầy đủ tiện nghi hiện đại, mang đến sự thuận tiện trong quá trình nấu nướng và tạo cảm giác ấm cúng cho những bữa cơm sum họp gia đình. Bên cạnh đó, một phòng vệ sinh chung được bố trí hợp lý, đáp ứng trọn vẹn nhu cầu sinh hoạt của cả gia đình.

Mặt bằng bố trí công năng tầng 1

Tầng 2 được thiết kế với bố cục khoa học, gồm hai phòng ngủ rộng rãi, thông thoáng, mang đến không gian nghỉ ngơi riêng tư và tiện nghi cho các thành viên trong gia đình. Khu vực phòng thờ được đặt ở vị trí trang trọng, hướng ra ban công, vừa đón nhận ánh sáng tự nhiên, vừa đảm bảo các yếu tố phong thủy hài hòa.

Không gian sinh hoạt chung được bố trí tại trung tâm tầng, kết nối trực tiếp với góc sân chơi, thưởng trà và ngắm cảnh, tạo nơi quây quần, thư giãn lý tưởng cho cả gia đình. Nhà vệ sinh chung đặt đồng trục tầng 1 giúp tối ưu hệ thống kỹ thuật.

Mặt bằng bố trí công năng tầng 2

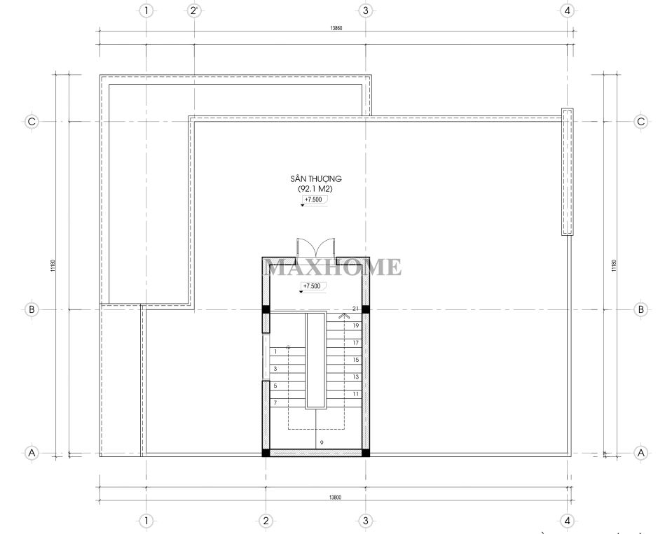
Không gian sân thượng trên tầng tum được xem là khoảng mở linh hoạt, có thể tùy biến theo sở thích và nhu cầu sử dụng của gia chủ. Khu vực này có thể bố trí làm sân phơi, vườn cây xanh, góc thư giãn, thưởng trà hoặc nơi tổ chức những buổi sum họp ngoài trời ấm cúng. Đây không chỉ là điểm nhấn về công năng mà còn góp phần nâng cao chất lượng sống, tạo sự cân bằng giữa không gian sinh hoạt trong nhà và thiên nhiên bên ngoài.

Mặt bằng bố trí công năng tầng tum

Yêu cầu tư vấn

    *Vui lòng để lại thông tin, nhân viên tư vấn sẽ liên hệ lại quý khách trong thời gian sớm nhất