Mẫu nhà 2 tầng mái Nhật tân cổ điển đẹp sang, công năng khoa học | MH05791

Chủ đầu tư: Chị Nguyễn Thị Lan Hương Số tầng: 2
Địa chỉ: An Trường, Hải Phòng Diện tích xây dựng: 7,9 x 13,2m
Loại hình: Nhà mái Nhật tân cổ điển Tổng diện tích: 175m2
Công năng:
  • Tầng 1: Phòng khách, phòng bếp, 1 phòng ngủ, 1 wc
  • Tầng 2: Phòng thờ, phòng sinh hoạt chung, 2 phòng ngủ, 1 wc, sân phơi

Toạ lạc tại thành phố Hải Phòng, ngôi nhà 2 tầng mái Nhật tân cổ điển của gia đình chị Hương nổi bật như một biểu tượng của sự đẳng cấp và gu thẩm mỹ tinh tế. Công trình do các KTS Maxhome thiết kế với tâm huyết và chuẩn mực kiến trúc khắt khe, đây không chỉ là nơi an cư mà còn là minh chứng cho vị thế và phong cách sống sang trọng của gia chủ. Từng chi tiết đều được chăm chút tỉ mỉ, tạo nên một siêu phẩm nhà đẹp khiến bất kỳ ai chiêm ngưỡng cũng không thể rời mắt.

Mẫu nhà 2 tầng mái Nhật tân cổ điển không chỉ gây ấn tượng bởi dáng vẻ bề thế, uy nghi mà còn chinh phục gia đình chị Hương nhờ sự hòa quyện giữa nét đẹp tinh tế và công năng tối ưu. Điểm nhấn của công trình nằm ở bố cục hình khối vững chắc, đường nét trang trí sắc sảo, tạo nên phong thái sang trọng và cuốn hút. Bao quanh nhà là sân vườn xanh mát mang đến không gian sống lý tưởng – nơi các thành viên có thể tận hưởng trọn vẹn sự an yên và hơi thở của thiên nhiên.

Mặt tiền ngôi nhà rộng thoáng mang phong thái quý phái đã tạo nên ấn tượng mạnh mẽ và sức hút khó cưỡng. Hệ cột vuông bề thế ở tầng 1 kết hợp hài hòa với hệ cột tròn thanh thoát ở tầng 2, cùng mái vòm sảnh cong nhẹ mềm mại, tạo nên khoảng không gian cao ráo, sang trọng và đầy cuốn hút.

Từng đường phào chỉ tinh xảo được chạm khắc tỉ mỉ trên mảng tường, đầu cột, khung cửa sổ và các điểm giao tầng, khiến tổng thể kiến trúc nhà mái Nhật 2 tầng tân cổ điển vừa mang vẻ duyên dáng, tinh mỹ, vừa toát lên sức sống và giá trị thẩm mỹ vượt thời gian.

Cửa chính sử dụng gỗ tự nhiên cao cấp, bề mặt chạm khắc tinh xảo, trở thành điểm nhấn nổi bật cho mặt tiền, góp phần tôn lên vẻ đẳng cấp của công trình. Toàn bộ hệ cửa sổ nhôm kính Xingfa  được bố trí hợp lý, mở rộng tối đa tầm nhìn ra không gian sân vườn và cảnh quan xung quanh, đồng thời giúp đón trọn ánh sáng tự nhiên và luồng gió mát, mang lại cảm giác thoáng đãng, dễ chịu cho không gian sống.

Khu vực tầng 2 gây ấn tượng với ban công đua rộng, tạo chiều sâu cho mặt đứng. Lan can sắt mỹ thuật mạ vàng được chế tác tinh xảo, lấp lánh dưới ánh sáng, vừa đảm bảo an toàn, vừa đóng vai trò như một chi tiết trang trí đắt giá, góp phần hoàn thiện vẻ đẹp sang trọng, tinh tế cho tổng thể ngôi nhà.

Hệ tam cấp gồm 5 bậc, tôn cao 750mm, được ốp đá granite vân mây sang trọng, góp phần nâng cao dáng thế công trình, tạo cảm giác bề thế và uy nghi ngay từ sảnh tiếp đón.

Phần chân đế bao quanh ngôi nhà được kiến trúc sư lựa chọn đá rối màu xám với vẻ đẹp mộc mạc, tự nhiên, vừa tạo điểm nhấn khỏe khoắn cho mặt đứng, vừa bảo vệ kết cấu công trình trước tác động của thời tiết, giúp ngôi nhà đẹp bền vững theo thời gian.

Không gian sân vườn được quy hoạch gọn gàng và khoa học, chú trọng sự hài hòa giữa kiến trúc và cảnh quan. Hệ thống cây xanh, tiểu cảnh được bố trí khéo léo, đan xen hợp lý, mang đến cảm giác thư thái, trong lành, đồng thời tạo nên một không gian sống sinh động, tràn đầy sức sống cho gia chủ.

Hệ cổng và tường bao được thiết kế đồng bộ với kiến trúc tổng thể, sử dụng mảng khối vững chắc kết hợp vật liệu cao cấp, vừa đảm bảo an ninh vừa tạo cảm giác bề thế.

Cổng chính với cánh kim loại sơn tĩnh điện hoa văn tinh tế giúp kiểm soát không gian hiệu quả, đồng thời giữ được sự thông thoáng và riêng tư cần thiết cho ngôi nhà. Toàn bộ tường bao được xử lý chỉn chu về tỷ lệ và màu sắc, góp phần hoàn thiện vẻ đẹp sang trọng, trang nhã cho công trình nhà 2 tầng mái Nhật tân cổ điển.

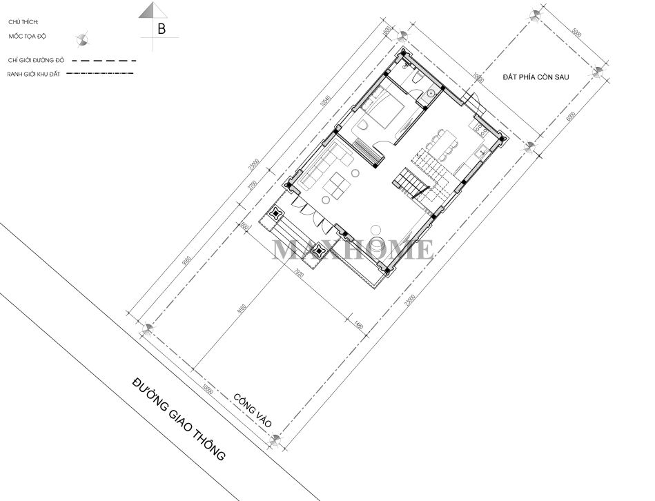
Mặt bằng định vị công trình

Dựa vào mặt bằng định vị, công trình được xây dựng theo hướng Tây Nam, có kích thước xây dựng 7,9 x 13,2m. Với tổng diện tích sử dụng 175m², công năng các phòng được bố trí hợp lý, khoa học, cùng với các ô cửa sổ lớn giúp cho ngôi nhà luôn tràn ngập ánh sáng tự nhiên khiến không gian sống trở nên thoáng đãng và dễ chịu.

Mặt bằng bố trí công năng tầng 1

Bước qua sảnh chính, bạn sẽ được chào đón bởi không gian phòng khách rộng thoáng, nổi bật với nội thất hiện đại, tạo cảm giác ấm cúng nhưng vẫn toát lên vẻ sang trọng. Đi qua sảnh thang đến khu vực bếp ăn được thiết kế thông minh, gọn gàng và đầy đủ tiện nghi, đồng thời bố trí cửa mở ra sau nhà giúp không gian luôn thông thoáng. Cuối cùng là 1 phòng ngủ và 1 nhà vệ sinh chung thuận tiện, phục vụ nhu cầu sinh hoạt cho cả gia đình một cách thoải mái và linh hoạt.

Mặt bằng bố trí công năng tầng 2

Tầng 2 gồm 2 phòng ngủ rộng rãi, trong đó phòng ngủ 03 dành cho vợ chồng gia chủ được thiết kế WC khép kín mang lại sự tiện nghi. Ngoài ra, tầng này có có 1 phòng sinh hoạt chung ấm cùng, phòng thờ trang nghiêm, ban công đón gió và khu sân chơi mở hướng về thiên nhiên chính là những điểm nhấn tinh tế, nâng tầm giá trị sống và khẳng định đẳng cấp kiến trúc vượt trội của ngôi nhà.

Yêu cầu tư vấn

    *Vui lòng để lại thông tin, nhân viên tư vấn sẽ liên hệ lại quý khách trong thời gian sớm nhất