Mẫu nhà cấp 4 mái bằng hiện đại giá rẻ, ai cũng có thể xây | MH05045
| Chủ đầu tư: Anh Hoàng Văn Đức | Số tầng: 1 |
| Địa chỉ: Hưng Hà, Thái Bình | Diện tích xây dựng: 11,3 × 12,3m |
| Loại hình: Nhà mái bằng hiện đại | Tổng diện tích: 138m2 |
| Công năng:
Phòng khách, phòng thờ, phòng bếp ăn, 3 phòng ngủ, 2 wc |
|
Trong bối cảnh chi phí xây dựng ngày càng tăng, nhà cấp 4 mái bằng phong cách hiện đại đang trở thành lựa chọn được nhiều gia đình quan tâm nhờ mức đầu tư hợp lý nhưng vẫn đảm bảo tính thẩm mỹ và công năng sử dụng. Mẫu thiết kế không chỉ sở hữu hình khối đơn giản, gọn gàng, dễ thi công mà còn được tính toán kỹ lưỡng nhằm tối ưu chi phí xây dựng, phù hợp với điều kiện tài chính của nhiều gia đình hiện nay.
Nhà cấp 4 mái bằng được xem là giải pháp kinh tế và khoa học, đặc biệt phù hợp với những chủ đầu tư yêu thích phong cách hiện đại nhưng vẫn mong muốn kiểm soát tốt chi phí xây dựng. So với các loại mái Nhật hay mái Thái, thiết kế mái bằng giúp giảm đáng kể chi phí thi công, rút ngắn thời gian xây dựng và thuận tiện cho việc bảo trì trong quá trình sử dụng. Bên cạnh đó, nhiều gia chủ còn lựa chọn mẫu nhà này bởi không gian sống được thiết kế đơn giản, gọn gàng, hạn chế các chi tiết cầu kỳ, từ đó tối ưu ngân sách đầu tư mà vẫn đảm bảo sự tiện nghi.

Nhờ hình khối vuông vức, rõ ràng cùng bố cục tổng thể hài hòa, công trình mang đến cảm giác gọn gàng, hiện đại và dễ ứng dụng trong thực tế. Bên cạnh đó, cách phối màu sắc đóng vai trò rất quan trọng, khi kiến trúc sư lựa chọn tông trắng làm màu chủ đạo, kết hợp với màu ghi tại các mảng tường bên nhằm tạo chiều sâu và điểm nhấn cho mặt đứng. Sự kết hợp hài hòa giữa màu sắc trung tính và các vật liệu trang trí hiện đại không chỉ nâng cao giá trị thẩm mỹ mà còn giúp ngôi nhà luôn bền đẹp, phù hợp với xu hướng thiết kế hiện nay.

Nhà cấp 4 mái bằng được thiết kế với các mặt thoáng mở rộng ra toàn bộ khu vườn xung quanh, giúp không gian bên trong luôn ngập tràn ánh sáng tự nhiên và gió trời. Hệ cửa kính lớn kết hợp khung nhôm Xingfa cao cấp không chỉ tăng tính thẩm mỹ hiện đại mà còn đảm bảo độ bền, khả năng cách âm – cách nhiệt hiệu quả, mang đến không gian sống thoáng đãng, tiện nghi và gần gũi với thiên nhiên.

Từ góc nhìn này có thể dễ dàng quan sát toàn bộ khuôn viên nhà cấp 4 mái bằng với khoảng sân vườn rộng rãi, được bố trí nhiều cây xanh tạo cảm giác mát mẻ và trong lành. Không gian ngoại thất được quy hoạch hài hòa, góp phần mang đến môi trường sống gần gũi với thiên nhiên, đồng thời nâng cao giá trị thẩm mỹ tổng thể cho công trình.

Nhà cấp 4 được thiết kế theo hệ mái bằng phẳng, mang phong cách hiện đại, tối giản và phù hợp với xu hướng kiến trúc ngày nay. Kiểu mái này không chỉ giúp tổng thể công trình trở nên gọn gàng, khỏe khoắn mà còn thuận tiện cho việc thi công, bảo trì, đồng thời có thể tận dụng làm sân thượng hoặc lắp đặt hệ thống năng lượng mặt trời trong tương lai.

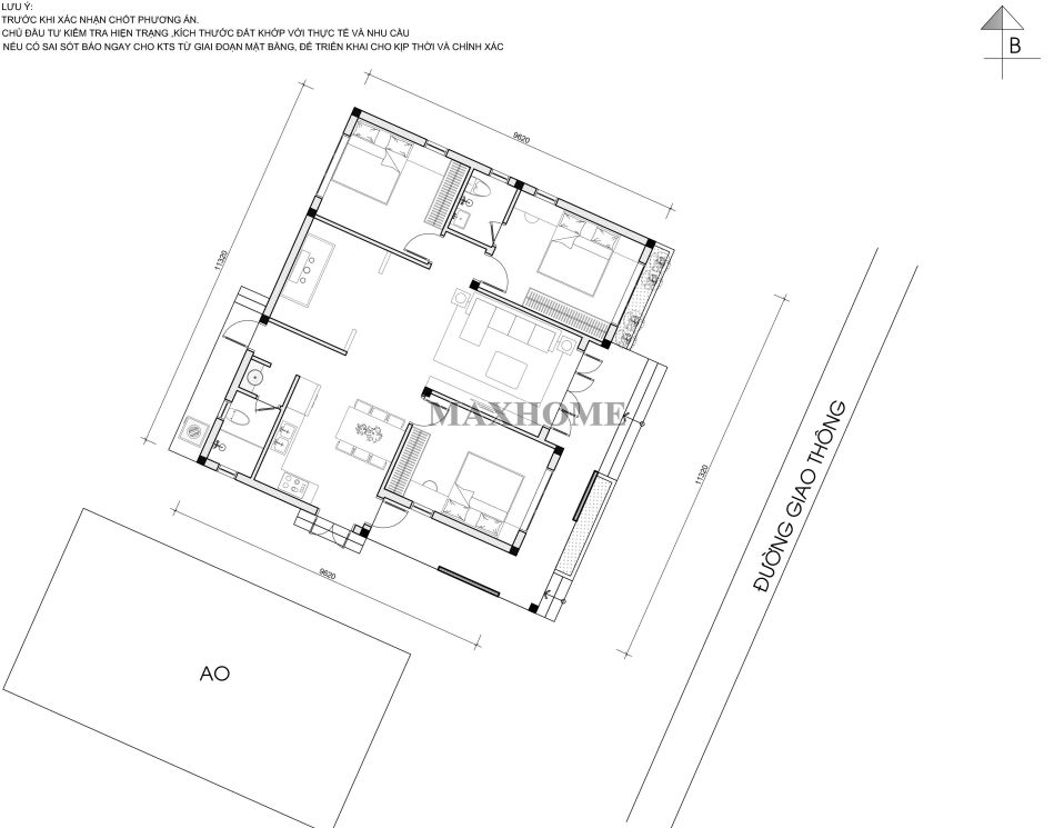
Hình ảnh mặt bằng định vị công trình thể hiện rõ toàn bộ khuôn viên khu đất khi quan sát từ trên cao, giúp dễ dàng hình dung vị trí xây dựng cũng như cách tổ chức không gian tổng thể. Ngôi nhà cấp 4 mái bằng được triển khai với kích thước 11,3 × 12,3m, tổng diện tích sử dụng khoảng 138m², đáp ứng đầy đủ nhu cầu sinh hoạt tiện nghi cho gia đình, đồng thời đảm bảo sự hài hòa giữa kiến trúc và cảnh quan xung quanh.

Từ sảnh chính bước vào là không gian phòng khách rộng rãi, được bố trí thông thoáng, tạo cảm giác chào đón ngay từ những bước chân đầu tiên. Tiến sâu vào bên trong là khu vực phòng thờ trang nghiêm, được sắp xếp hợp lý để đảm bảo sự yên tĩnh và tôn nghiêm. Khu vực bếp – ăn được đặt về phía sảnh phụ, giúp thuận tiện cho việc di chuyển và lưu thông không khí, hạn chế mùi trong quá trình sử dụng. Bên cạnh đó, ngôi nhà cấp 4 mái bằng còn được bố trí 3 phòng ngủ tiện nghi, trong đó phòng ngủ 01 sở hữu nhà vệ sinh khép kín, mang lại sự riêng tư và thoải mái cho gia chủ.













