Mẫu thiết kế nhà phố 3 tầng mái Thái 5m đón gió, lấy sáng tối ưu | MH0574
| Chủ đầu tư: Chú Đinh Vũ Chức | Số tầng: 3 |
| Địa chỉ: Quỳnh Phú, Gia Bình, Bắc Ninh | Diện tích xây dựng: 5 x 19,5m |
| Loại hình: Nhà mái Thái tân cổ điển | Tổng diện tích: 225m2 |
Công năng:
|
|
Trong bối cảnh quỹ đất đô thị ngày càng thu hẹp, những mẫu nhà phố mặt tiền nhỏ nhưng vẫn đảm bảo thẩm mỹ và công năng đang trở thành xu hướng được nhiều gia đình lựa chọn. Nằm trong số đó, mẫu nhà phố mái Thái 3 tầng mặt tiền 5m do Maxhome thiết kế nổi bật với phong cách hiện đại, đường nét tinh gọn và cách bố trí không gian thông minh.
Mẫu nhà phố 3 tầng mái Thái được thiết kế theo phong cách tân cổ điển nổi bật với hệ vòm mềm mại kết hợp cùng các khối cột vuông – tròn chạy dọc mặt tiền. Sự hòa quyện giữa những đường nét cổ điển tinh tế và bố cục kiến trúc hiện đại tạo nên vẻ đẹp sang trọng, bề thế nhưng vẫn giữ được sự thanh thoát đặc trưng của phong cách tân cổ điển. Những chi tiết phào chỉ được tiết chế hợp lý giúp công trình vừa tinh gọn lại vừa toát lên nét đẳng cấp riêng, phù hợp với không gian nhà phố hiện nay.

Mặc dù mặt tiền chỉ rộng 5m, nhưng các KTS Maxhome đã khéo léo tính toán tỷ lệ hình khối, giúp tổng thể nhà phố mái Thái trở nên cân đối và hài hòa. Gam màu trắng được chọn làm chủ đạo, tạo cảm giác thanh lịch và làm nổi bật các đường nét kiến trúc. Riêng tầng 1 được ốp gạch giả đá cao cấp, không chỉ tăng tính thẩm mỹ mà còn giúp bảo vệ phần chân tường khỏi bụi bẩn, ẩm mốc và dễ dàng vệ sinh trong quá trình sử dụng.

Toàn bộ hệ cửa của nhà phố 3 tầng mái Thái đều sử dụng nhôm hệ Xingfa kết hợp với kính cường lực, mang đến độ bền cao, khả năng cách âm – cách nhiệt tốt và góp phần tạo nên vẻ đẹp hiện đại cho công trình. Hệ lan can ban công được làm từ sắt sơn tĩnh điện, giúp đảm bảo an toàn, chống gỉ sét hiệu quả và giữ màu sắc bền đẹp theo thời gian.

Từ góc nhìn này có thể thấy mẫu nhà phố 3 tầng không sử dụng toàn bộ hệ mái Thái, mà chỉ áp dụng ở phần mặt tiền để tạo điểm nhấn thẩm mỹ. Khu vực phía sau được thiết kế làm sân phơi nên gia chủ lựa chọn lợp mái tôn để tối ưu chi phí, đồng thời đảm bảo công năng che chắn nắng mưa hiệu quả. Cách bố trí này vừa hợp lý về kinh tế, vừa giúp ngôi nhà thông thoáng và tiện dụng hơn trong quá trình sinh hoạt.

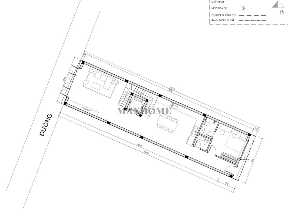
Nhà phố 3 tầng mái Thái được xây dựng liền kề với trục đường chính, sở hữu kích thước 5 x 19,5m. Với quy mô này, tổng diện tích sử dụng của công trình đạt khoảng 225m², đáp ứng đầy đủ nhu cầu sinh hoạt cho gia đình. Bố cục mặt bằng được KTS Maxhome tính toán khoa học, đảm bảo tối ưu hóa không gian trên lô đất hẹp nhưng dài, đồng thời vẫn giữ được sự thông thoáng và tính thẩm mỹ đặc trưng của phong cách mái Thái.

Từ cửa chính bước vào là không gian phòng khách rộng rãi, được bố trí khoa học để tạo cảm giác thoáng đãng và thuận tiện cho việc tiếp đón khách. Tiếp nối là khu vực bếp – ăn với hệ tủ bếp chữ L, giúp tối ưu diện tích và mang đến sự thuận tiện trong quá trình nấu nướng. Ngay cạnh đó là nhà vệ sinh chung phục vụ sinh hoạt cho cả tầng. Cuối nhà là một phòng ngủ nhỏ khoảng 10,8m², được thiết kế khép kín với nhà vệ sinh bên trong, đảm bảo sự riêng tư và tiện nghi cho người sử dụng.

Tầng 2 được bố trí hợp lý với không gian phòng thờ trang nghiêm, yên tĩnh, phù hợp để gia đình thực hiện các nghi lễ và giữ gìn phong thủy. Kế tiếp là hai phòng ngủ tiện nghi. Phòng ngủ thứ nhất (phòng ngủ 02) sử dụng nhà vệ sinh chung đặt ngay bên cạnh, thuận tiện cho sinh hoạt. Trong khi đó, phòng ngủ thứ hai (phòng ngủ 03) được thiết kế hiện đại với nhà vệ sinh khép kín bên trong, đảm bảo sự riêng tư và thoải mái tối đa cho người sử dụng.

Tầng 3 được bố trí linh hoạt với không gian phòng kho rộng rãi, thuận tiện để lưu trữ đồ dùng sinh hoạt và vật dụng cần thiết của gia đình. Phía sau là khu vực giặt giũ, bao gồm nơi đặt máy giặt và sân phơi thoáng đãng, đảm bảo ánh sáng và gió tự nhiên, giúp quần áo nhanh khô và giữ không gian gọn gàng, ngăn nắp.












