Mẫu nhà cấp 4 mái Nhật chữ L đẹp tại nông thôn sang trọng và hiện đại | MH05661
| Chủ đầu tư: Anh Lê Tuấn Anh | Số tầng: 1 |
| Địa chỉ: Thọ Phú, Thanh Hoá | Diện tích xây dựng: 12,2 x 26,8m |
| Loại hình: Nhà mái Nhật hiện đại | Tổng diện tích: 152m2 |
| Công năng:
Phòng khách + thờ, phòng bếp ăn, 4 phòng ngủ, 2 wc, 2 phòng tắm |
|
Mẫu nhà cấp 4 chữ L mái Nhật hiện đại là lựa chọn hoàn hảo cho các gia đình tại nông thôn muốn sở hữu không gian sống tiện nghi, thông thoáng và mang phong cách thời thượng. Thiết kế chữ L giúp tối ưu diện tích đất, tạo khoảng sân rộng rãi cho xe cộ, tiểu cảnh hay sân chơi ngoài trời. Hệ mái Nhật với đường nét thanh thoát, tinh tế không chỉ mang lại vẻ đẹp sang trọng mà còn giúp công trình bền vững theo thời gian.
Những mẫu nhà cấp 4 mái Nhật thiết kế theo hình dạng chữ L ngày càng được yêu thích nhờ kiến trúc hiện đại, hình khối cân đối và công năng sử dụng tiện nghi. Kiểu nhà chữ L không chỉ tạo điểm nhấn thẩm mỹ mà còn giúp tối ưu không gian, dễ dàng bố trí sân vườn, lối đi và các khu vực sinh hoạt ngoài trời, đặc biệt phù hợp với gia đình ở nông thôn.

Nhà cấp 4 mái Nhật chữ L sử dụng gam màu trắng làm chủ đạo, mang đến vẻ đẹp tinh tế và hiện đại. Khu vực mặt tiền được điểm nhấn bằng gạch ốp cao cấp, kết hợp cùng phần chân tường và bên hông nhà được ốp đá giúp tăng sự bền vững và tạo cảm giác sang trọng. Sự kết hợp giữa màu sắc nhẹ nhàng và vật liệu hoàn thiện cao cấp giúp tổng thể công trình trở nên nổi bật, hài hòa và cuốn hút hơn.

Đây là hình ảnh phối cảnh nhà cấp 4 mái Nhật chữ L vào thời điểm chiều tà. Bên cạnh việc sử dụng nhiều cửa kính để tăng cường ánh sáng tự nhiên, các kiến trúc sư còn bố trí hệ đèn downlight chạy dọc theo trần ngoại thất. Nhờ đó, ngôi nhà trở nên nổi bật hơn vào buổi tối, đồng thời tạo hiệu ứng ánh sáng ấm áp và tôn lên từng đường nét kiến trúc.

Khoảng trống tại vị trí chữ L được thiết kế rộng rãi, tạo nên không gian sân chơi thoáng đãng và thuận tiện cho các hoạt động ngoài trời của gia đình. Khu vực này còn có thể tận dụng để bố trí tiểu cảnh, trồng cây xanh hoặc đặt bộ bàn ghế nghỉ ngơi, mang đến sự thư giãn và tăng tính kết nối với thiên nhiên. Nhờ đó, tổng thể ngôi nhà trở nên hài hòa, sinh động và đầy sức sống hơn.

Ngoài ra, hệ thống cổng cũng đóng vai trò quan trọng trong tổng thể thiết kế của ngôi nhà. Cổng chính được làm từ thép hộp sơn tĩnh điện màu nâu gỗ, vừa bền bỉ vừa mang lại vẻ đẹp sang trọng. Phần tường bao được xây bằng bê tông kết hợp các nan sắt sơn tĩnh điện, tạo nên những khoảng thoáng giúp không gian thông gió tốt hơn và tăng tính thẩm mỹ cho khuôn viên.

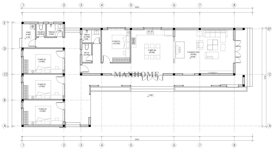
Công trình được xây theo hướng Đông Nam, sở hữu kích thước 12,2 x 26,8m với tổng diện tích sử dụng khoảng 152m². Nhờ lợi thế về hướng nhà và diện tích rộng rãi, không gian bên trong dễ dàng bố trí công năng hợp lý, đảm bảo sự thông thoáng và thuận tiện trong sinh hoạt hằng ngày của gia đình.

Từ sảnh chính bước vào là không gian phòng khách kết hợp phòng thờ trang nghiêm và rộng rãi. Tiến vào phía trong là khu vực bếp ăn được bố trí khoa học, thuận tiện cho sinh hoạt hằng ngày. Kế tiếp là một phòng ngủ và cuối dãy là phòng tắm cùng nhà vệ sinh chung phục vụ toàn bộ khu vực. Ở nhánh còn lại của chữ L là hành lang dẫn vào 3 phòng ngủ được sắp xếp liền kề nhau, đảm bảo sự riêng tư nhưng vẫn thuận tiện di chuyển. Cuối nhà là khu vực phòng tắm, một phòng vệ sinh và sân phơi rộng khoảng 4m², phục vụ tốt cho nhu cầu giặt giũ và phơi đồ của gia đình.












