Mẫu nhà phố 2 tầng 1 tum 5x17m hiện đại, phù hợp gia đình trẻ | MH05996

Chủ đầu tư: Chị Liễu Số tầng: 2 tầng 1 tum
Địa chỉ: Phú Thọ Diện tích xây dựng: 5 x 17m
Loại hình: Nhà lô phố hiện đại Tổng diện tích: 185m2
Công năng:
  • Tầng 1: Phòng khách, phòng bếp ăn, 1 phòng ngủ, 1 wc, sân ướt
  • Tầng 2: Phòng thờ, 3 phòng ngủ, 1 wc
  • Tầng tum: Sân chơi, sân phơi

Trong bối cảnh quỹ đất đô thị ngày càng hạn hẹp, nhà phố 2 tầng 1 tum 5x17m đang trở thành lựa chọn lý tưởng của nhiều gia đình trẻ nhờ khả năng tối ưu diện tích và công năng sử dụng. Với phong cách thiết kế hiện đại, bố cục khoa học cùng giải pháp lấy sáng – thông gió hợp lý, mẫu nhà này không chỉ đáp ứng nhu cầu sinh hoạt tiện nghi mà còn mang đến không gian sống thoáng đãng, thẩm mỹ và tiết kiệm chi phí xây dựng.

Những mẫu nhà phố 2 tầng 1 tum đang là lựa chọn được đông đảo khách hàng quan tâm và đánh giá cao trong những năm gần đây, và dự kiến năm 2026 xu hướng này sẽ tiếp tục bùng nổ mạnh mẽ. Với ưu thế về khả năng tối ưu diện tích, phù hợp quỹ đất đô thị và đáp ứng đầy đủ công năng cho gia đình hiện đại, mẫu nhà này luôn nằm trong nhóm thiết kế được lựa chọn nhiều nhất.

Công trình gây ấn tượng mạnh ngay từ ánh nhìn đầu tiên nhờ ngôn ngữ kiến trúc hiện đại, tối giản nhưng vẫn thể hiện chiều sâu thẩm mỹ. Gam màu trắng được lựa chọn làm tông màu chủ đạo cho mặt tiền, giúp tổng thể trở nên thanh thoát, sáng sủa và dễ dàng thích nghi với cảnh quan đô thị. Điểm xuyết trên nền trắng là màu ghi tinh tế, tạo sự tương phản nhẹ nhàng nhưng đủ nổi bật.

Về vật liệu hoàn thiện, tầng 1 được ốp gạch granite vừa tăng tính sang trọng vừa đảm bảo độ bền và dễ vệ sinh trong quá trình sử dụng. Khu vực tầng 2 và tum được trang trí bằng gỗ nhựa kết hợp bồn hoa xanh mát, không chỉ làm điểm nhấn kiến trúc mà còn góp phần cân bằng không gian, mang lại cảm giác gần gũi với thiên nhiên và nâng cao giá trị thẩm mỹ cho toàn bộ ngôi nhà.

Nhà phố 2 tầng 1 tum mặt tiền 5m được khai thác tối đa không gian bên hông công trình thông qua việc bố trí lối đi và hệ cửa sổ liên hoàn, giúp tăng khả năng tiếp cận ánh sáng và không khí tự nhiên. Toàn bộ các ô cửa sử dụng kính cường lực kết hợp khung nhôm hệ Xingfa cao cấp, không chỉ đảm bảo độ bền, khả năng cách âm – cách nhiệt tốt mà còn tạo cảm giác thông thoáng, mở rộng tầm nhìn cho không gian nội thất.

Giải pháp thiết kế này giúp khắc phục nhược điểm thiếu sáng thường gặp ở nhà phố, đồng thời mang lại môi trường sống thoải mái, tiết kiệm năng lượng và nâng cao chất lượng sinh hoạt cho gia đình trong quá trình sử dụng lâu dài.

Ban công được thiết kế đua ra phía trước, sử dụng lan can sắt sơn tĩnh điện chắc chắn, bền đẹp theo thời gian, đồng thời đảm bảo an toàn trong quá trình sử dụng. Thiết kế này không chỉ giúp mở rộng không gian sinh hoạt mà còn tạo điểm nhấn kiến trúc cho mặt tiền ngôi nhà.

Tại tầng tum, khu vực phía trước được ốp tấm nhựa polycarbonate giúp lấy sáng tự nhiên hiệu quả, giảm hấp thụ nhiệt và bảo vệ không gian bên trong khỏi tác động của thời tiết. Trong khi đó, khu vực sân phơi phía sau sử dụng mái tôn gọn nhẹ, tiết kiệm chi phí, đáp ứng tốt nhu cầu sinh hoạt hằng ngày và đảm bảo tính tiện nghi, thực tế cho công trình nhà phố.

Ngoài ra, phía sau nhà phố 2 tầng 1 tum được bố trí khoảng sân nhỏ theo đúng quy chuẩn xây dựng nhằm đảm bảo khoảng lùi kỹ thuật và lưu thông không khí. Không gian này đóng vai trò quan trọng trong việc tăng khả năng thông gió, lấy sáng tự nhiên, đồng thời hỗ trợ thoát nước, bảo trì công trình và nâng cao chất lượng môi trường sống. Nhờ đó, ngôi nhà luôn thông thoáng, hạn chế ẩm mốc và đáp ứng tốt các tiêu chí về an toàn, tiện nghi trong quá trình sử dụng lâu dài.

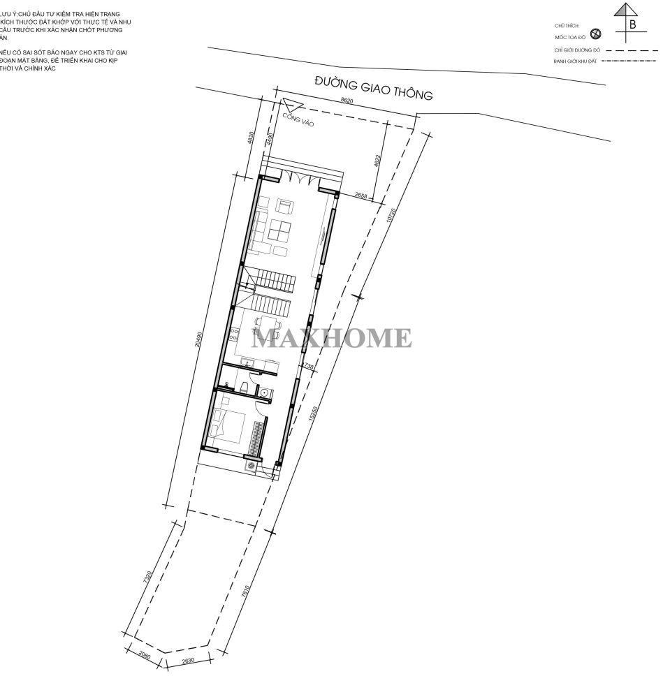
Nhà phố 2 tầng 1 tum được bố trí sát trục đường giao thông chính, thuận tiện cho việc di chuyển và kết nối sinh hoạt hằng ngày. Công trình sở hữu kích thước 5 × 17m, được khai thác tối đa quỹ đất, mang lại tổng diện tích sử dụng khoảng 185m². Với mặt bằng gọn gàng, bố cục hợp lý, ngôi nhà đáp ứng tốt nhu cầu ở kết hợp công năng linh hoạt, phù hợp với điều kiện xây dựng nhà phố tại khu vực đô thị hiện nay.

Mặt bằng định vị công trình

Từ cửa chính bước vào là không gian phòng khách rộng rãi, được bố trí thông thoáng, tạo cảm giác thoải mái ngay từ những bước chân đầu tiên. Tiến sâu vào trong, khu vực cầu thang được sắp xếp gọn gàng, vừa đóng vai trò kết nối các tầng vừa giúp phân chia không gian hợp lý. Phía sau là phòng bếp – ăn có diện tích khoảng 16m², được thiết kế khoa học, thuận tiện cho sinh hoạt và quây quần gia đình. Nhà vệ sinh chung được đặt cạnh bếp, đảm bảo tiện lợi trong quá trình sử dụng. Cuối nhà bố trí 1 phòng ngủ yên tĩnh, phù hợp cho người lớn tuổi, đồng thời có lối cửa mở ra sân ướt phía sau, giúp tăng khả năng thông gió, lấy sáng tự nhiên và giữ cho không gian bên trong luôn khô thoáng, sạch sẽ.

Mặt bằng bố trí công năng tầng 1

Tầng 2 được bố trí phòng thờ trang nghiêm, đặt ở vị trí ưu tiên và hướng ra ban công phía trước, vừa đảm bảo yếu tố phong thủy vừa tạo sự thông thoáng, yên tĩnh. Không gian nghỉ ngơi gồm 3 phòng ngủ có diện tích tương đối đồng đều, được sắp xếp khoa học, phù hợp cho các thành viên trong gia đình. Các phòng ngủ đều sử dụng 1 nhà vệ sinh chung, đặt ở vị trí thuận tiện, đảm bảo sinh hoạt khép kín, gọn gàng và tối ưu diện tích sử dụng cho toàn bộ mặt bằng tầng.

Mặt bằng bố trí công năng tầng 2

Tầng tum được bố trí linh hoạt với khu vực sân chơi và sân phơi, đáp ứng đa dạng nhu cầu sinh hoạt của gia đình. Không gian sân chơi có thể tận dụng làm nơi thư giãn, trồng cây xanh hoặc tổ chức các hoạt động ngoài trời, trong khi khu vực sân phơi được sắp xếp gọn gàng, đón nắng và gió tự nhiên, giúp quần áo nhanh khô và đảm bảo sự thông thoáng cho toàn bộ ngôi nhà.

Mặt bằng bố trí công năng tầng tum

Yêu cầu tư vấn

    *Vui lòng để lại thông tin, nhân viên tư vấn sẽ liên hệ lại quý khách trong thời gian sớm nhất