Mẫu nhà phố 2 tầng 1 tum sang trọng, thiết kế bo cong thời thượng | MH06044

Chủ đầu tư: Chú Nhãn Số tầng: 2 tầng 1 tum
Địa chỉ: Kim Bảng, Ninh Bình Diện tích xây dựng: 6,7 x 13,5m
Loại hình: Nhà phố mái bằng hiện đại Tổng diện tích: 180m2
Công năng:
  • Tầng 1: Phòng khách, phòng bếp, 1 phòng ngủ, 1 wc
  • Tầng 2: Phòng thờ, phòng sinh hoạt chung, 2 phòng ngủ, 1 wc
  • Tầng tum: Sân thượng

Mẫu nhà phố 2 tầng 1 tum do Maxhome thiết kế cho gia đình chú Nhãn tại Ninh Bình là một tuyên ngôn rõ nét về tư duy kiến trúc hiện đại cao cấp, nơi hình khối, đường nét và không gian sống được tổ chức một cách tinh tế, có chiều sâu và giàu cảm xúc. Không chạy theo sự phô trương, mẫu nhà chinh phục người nhìn bằng vẻ đẹp mềm mại, khác biệt, đặc biệt phù hợp với những gia chủ đang tìm kiếm một tổ ấm vừa thời thượng, vừa bền vững theo thời gian. Mời quý bạn đọc cùng khám phá trọn vẹn vẻ đẹp kiến trúc và giải pháp công năng của công trình này qua bài viết dưới đây.

Ấn tượng đầu tiên đến từ tổng thể hình khối kiến trúc được xử lý khéo léo với các mảng đặc – rỗng đan xen hài hòa. Ngôi nhà mang dáng vẻ gọn gàng, thanh thoát nhưng vẫn giữ được sự vững chãi cần có của một công trình nhà phố. Các khối nhà được xếp lớp theo chiều cao 2 tầng 1 tum, tạo nhịp điệu kiến trúc rõ ràng, tránh cảm giác đơn điệu thường thấy ở nhiều mẫu nhà phố truyền thống. Đặc biệt, việc sử dụng các đường bo cong mềm mại tại ban công, mái đua và các chi tiết mặt tiền đã tạo nên điểm nhấn độc đáo, giúp công trình trở nên uyển chuyển, cuốn hút ngay từ ánh nhìn đầu tiên.

Mặt tiền ngôi nhà phố 2 tầng 1 tum là sự hòa quyện tinh tế giữa màu sắc, vật liệu và ánh sáng. Gam màu trắng chủ đạo mang lại cảm giác thanh lịch, sạch sẽ và sang trọng, đóng vai trò như một phông nền hoàn hảo để tôn lên các chi tiết nhấn màu ghi xám và nâu gỗ.

Những mảng ốp gỗ trần tại ban công và mái đua không chỉ tăng tính thẩm mỹ mà còn mang đến sự ấm áp, gần gũi, giúp cân bằng lại vẻ hiện đại của tổng thể kiến trúc. Cách phối màu này được nhiều gia chủ yêu thích, bởi nó vừa thời thượng, vừa bền đẹp theo năm tháng.

Hệ cửa kính lớn được sử dụng xuyên suốt các tầng, tạo nên sự kết nối mạnh mẽ giữa không gian nội thất và bên ngoài. Kính cường lực kết hợp khung nhôm xingfa giúp công trình trở nên hiện đại, tinh tế, đồng thời tối ưu khả năng đón sáng và thông gió tự nhiên.

Khi ánh sáng tràn vào từng không gian, ngôi nhà trở nên thoáng đãng, rộng rãi hơn so với diện tích thực, mang lại cảm giác dễ chịu trong sinh hoạt hàng ngày. Đây là yếu tố đặc biệt quan trọng với nhà phố, nơi quỹ đất thường hạn chế và nhu cầu mở rộng không gian sống luôn được đặt lên hàng đầu.

Một trong những điểm “đắt giá” của mẫu nhà phố 2 tầng 1 tum này chính là cách bố trí ban công và mảng xanh. Thay vì chỉ xem ban công là chi tiết phụ, kiến trúc sư đã biến khu vực này thành một phần không thể thiếu của mặt tiền. Lan can kính trong suốt kết hợp bồn cây xanh gọn gàng giúp công trình trở nên sinh động, mềm mại hơn. Những chậu cây, tiểu cảnh được sắp xếp tinh tế không chỉ làm đẹp cho ngôi nhà mà còn mang lại cảm giác thư thái, giúp gia chủ tận hưởng thiên nhiên ngay trong chính không gian sống của mình.

Nhìn từ nhiều góc độ khác nhau, công trình vẫn giữ được sự cuốn hút riêng. Từ chính diện, ngôi nhà toát lên vẻ sang trọng, chỉn chu. Từ góc nghiêng và trên cao, các đường bo cong, mảng khối giật cấp phát huy tối đa hiệu quả thẩm mỹ, tạo chiều sâu và sự chuyển động cho kiến trúc. Đây chính là giá trị mà những gia chủ có gu thẩm mỹ cao luôn tìm kiếm: một ngôi nhà đẹp ở mọi góc nhìn, không chỉ khi đứng từ xa mà cả khi quan sát ở cự ly gần.

Hệ mái bằng được thiết kế gọn gàng, hiện đại, góp phần tôn lên tinh thần kiến trúc đương đại của công trình. Không còn cảm giác nặng nề hay cứng nhắc, mái bằng kết hợp cùng các mảng cong tạo nên sự tương phản thú vị giữa đường thẳng và đường cong, giữa mạnh mẽ và mềm mại. Phần tum được bố trí lùi nhẹ về phía sau và sang một bên, vừa giúp tổng thể ngôi nhà thanh thoát hơn, vừa mở ra những khoảng không gian ngoài trời giá trị cho sinh hoạt và thư giãn.

Không gian sân trước và khu vực xung quanh được tổ chức gọn gàng, kết hợp cây xanh và lối đi hợp lý, tạo nên khoảng đệm cần thiết giữa công trình và môi trường bên ngoài. Điều này không chỉ giúp tăng tính riêng tư mà còn góp phần cải thiện vi khí hậu, mang đến cảm giác mát mẻ, dễ chịu. Với nhịp sống đô thị ngày càng bận rộn, những khoảng xanh như vậy trở thành “liều thuốc tinh thần” quý giá cho cả gia đình sau một ngày dài.

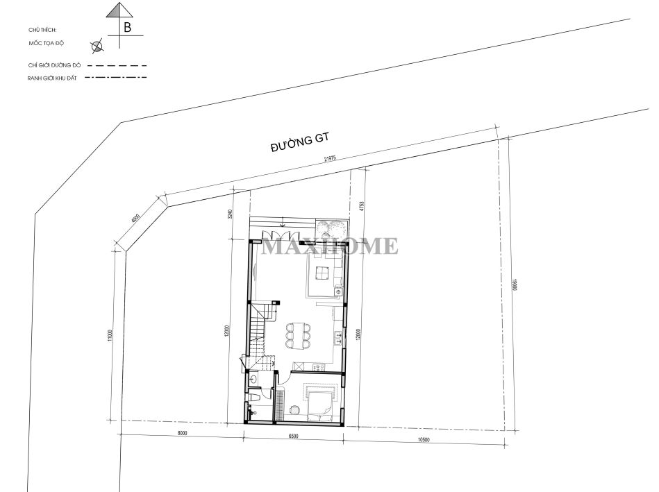
Mặt bằng định vị công trình

Ngôi nhà phố 2 tầng 1 tum được xây dựng trên khu đất hướng Nam, sở hữu kích thước 6,7 x 13,5m với tổng diện tích sử dụng khoảng 180m². Trên nền diện tích đó, đội ngũ kiến trúc sư đã nghiên cứu kỹ lưỡng phương án mặt bằng, bố trí công năng một cách khoa học và linh hoạt. Nhờ vậy, không gian sống được tối ưu tối đa, mang lại cảm giác rộng rãi, thông thoáng và đáp ứng trọn vẹn nhu cầu sinh hoạt tiện nghi, lý tưởng cho gia đình hiện đại.

Mặt bằng bố trí công năng tầng 1

Tầng 1 được tổ chức công năng mạch lạc và hài hòa, nổi bật với phòng khách rộng 24m², đóng vai trò là không gian tiếp đón sang trọng, thông thoáng và đầy tinh tế. Liền kề là khu vực bếp – phòng ăn diện tích 21m², được kết nối liền mạch, tạo cảm giác ấm cúng và thuận tiện cho những bữa cơm sum họp gia đình. Bên cạnh đó, một phòng ngủ riêng tư cùng khu vệ sinh chung được bố trí hợp lý, góp phần hoàn thiện mặt bằng công năng tầng 1 theo hướng tiện nghi, khoa học và phù hợp với nhịp sống hiện đại.

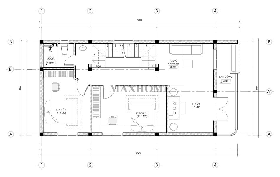
Mặt bằng bố trí công năng tầng 2

Tầng 2 được thiết kế với sự chỉn chu và tinh tế, bố trí không gian thờ tự trang nghiêm cùng phòng sinh hoạt chung ấm cúng, cả hai đều mở ra ban công thoáng mát, giúp đón gió và ánh sáng tự nhiên.

Hai phòng ngủ có diện tích hợp lý được sắp xếp khoa học, mang đến không gian nghỉ ngơi riêng tư, thoải mái cho từng thành viên trong gia đình. Khu vệ sinh chung được thiết kế đồng trục với tầng 1, đảm bảo sự thuận tiện trong sử dụng và tối ưu giải pháp kỹ thuật cho toàn bộ công trình.

Mặt bằng bố trí công năng tầng tum

Không gian sân thượng trên tum được thiết kế như một khoảng thư giãn lý tưởng, nơi các thành viên trong gia đình có thể quây quần bên nhau trong những khoảnh khắc an yên. Tại đây, gia chủ có thể thưởng trà chiều, đón làn gió mát lành và thả mình theo nhịp thở của thiên nhiên rộng mở xung quanh, tạo nên một trải nghiệm sống nhẹ nhàng, cân bằng và đầy cảm xúc.

Yêu cầu tư vấn

    *Vui lòng để lại thông tin, nhân viên tư vấn sẽ liên hệ lại quý khách trong thời gian sớm nhất