Về vị trí, công trình được xây dựng theo hướng Đông Bắc, trên khu đất có kích thước 5,5 x 15,4m, phù hợp với đặc trưng nhà phố đô thị hiện nay. Với quy mô 4 tầng, 1 tầng lửng và 1 tum, tổng diện tích sàn sử dụng đạt khoảng 390m², cho phép bố trí không gian sinh hoạt rộng rãi, tiện nghi và linh hoạt, đáp ứng trọn vẹn nhu cầu sử dụng lâu dài của gia đình.
Mẫu nhà phố 4 tầng 1 lửng 1 tum đẹp hiện đại tối ưu từng mét vuông | MH06038
| Chủ đầu tư: Anh Nguyễn Hoàng Lương | Số tầng: 4 tầng 1 lửng 1 tum |
| Địa chỉ: Long Biên, Hà Nội | Diện tích xây dựng: 5,5 x 15,4m |
| Loại hình: Nhà phố mái bằng hiện đại | Tổng diện tích: 390m2 |
Công năng:
(Công trình có sử dụng thang máy) |
|
Trong bối cảnh quỹ đất tại các khu vực trung tâm như Long Biên, Hà Nội ngày càng đắt đỏ và hạn hẹp, bài toán đặt ra cho nhiều gia chủ không chỉ là xây một ngôi nhà để ở, mà là kiến tạo một không gian sống xứng tầm trên diện tích mặt tiền khiêm tốn. Nhìn vào thiết kế nhà phố 4 tầng 1 lửng 1 tum thuộc sở hữu của gia đình anh Lương, người xem khó có thể tìm thấy cảm giác bí bách thường thấy ở nhà lô phố đô thị. Thay vào đó, công trình mở ra một diện mạo thanh thoát, hiện đại và đầy thuyết phục, phản ánh rõ gu thẩm mỹ tinh tế cùng mong muốn nâng tầm chất lượng sống của gia chủ giữa lòng thành phố.
Mẫu nhà phố 4 tầng 1 lửng 1 tum mái bằng mang đậm tinh thần kiến trúc hiện đại cao cấp, được các KTS nghiên cứu kỹ lưỡng nhằm giải quyết bài toán quen thuộc của đô thị: mặt tiền chỉ 5,5m nhưng vẫn phải đảm bảo sự thông thoáng, tính thẩm mỹ cao và công năng tối ưu cho nhu cầu sinh hoạt lâu dài. Ngay từ tổng thể, công trình đã cho thấy sự chỉn chu trong tư duy thiết kế, không chạy theo xu hướng phô trương mà tập trung vào giá trị bền vững, phù hợp với nhịp sống đô thị hiện đại.

Vẻ đẹp của mẫu nhà này được thể hiện rõ nét thông qua cách tổ chức hình khối kiến trúc mạch lạc và tinh giản. Công trình sử dụng các khối vuông vức, gọn gàng, sắp xếp theo trục đứng rõ ràng, tạo cảm giác cao ráo và thanh thoát cho mặt tiền hẹp.
Các tầng được phân chia hợp lý, có sự lùi – tiến nhẹ nhàng ở khu vực ban công, giúp mặt đứng trở nên sinh động hơn và tránh cảm giác đơn điệu thường thấy ở nhà phố cao tầng. Chính sự tiết chế trong tạo hình đã mang lại cho ngôi nhà một diện mạo hiện đại, sang trọng và không bị lỗi thời theo thời gian.

Một yếu tố quan trọng góp phần làm nên giá trị của mẫu nhà ống 4 tầng 1 lửng 1 tum này chính là việc sử dụng hệ cửa nhôm kính Xingfa cao cấp xuyên suốt mặt tiền. Các mảng kính lớn được bố trí hợp lý tại khu vực cửa sổ và ban công, giúp tối đa hóa khả năng lấy sáng và thông gió tự nhiên.
Đối với nhà phố có mặt tiền hẹp, đây là giải pháp mang tính quyết định, giúp không gian bên trong luôn sáng sủa, thoáng đãng và dễ chịu. Khung nhôm Xingfa màu tối kết hợp cùng kính cường lực không chỉ đảm bảo độ bền, khả năng cách âm, cách nhiệt tốt mà còn mang lại vẻ đẹp hiện đại, đồng bộ cho toàn bộ công trình.

Bên cạnh hình khối và vật liệu, màu sắc phối hợp cũng là yếu tố tạo nên sức hút cho mẫu nhà này. Gam màu trắng kem được lựa chọn làm chủ đạo, mang lại cảm giác nhẹ nhàng, tinh tế và sang trọng. Sự kết hợp với khung cửa nhôm màu đen tạo nên độ tương phản vừa đủ, giúp mặt tiền nổi bật nhưng không quá phô trương.
Phần tầng 1 được nhấn bằng vật liệu ốp vân đá sáng, tạo cảm giác chắc chắn cho khối đế và nâng tầm thẩm mỹ tổng thể. Cổng sắt hoa văn màu đen được thiết kế tinh giản, hài hòa với phong cách chung, vừa đảm bảo an ninh, vừa đóng vai trò như điểm nhấn hoàn thiện cho mặt tiền ngôi nhà.

Thiết kế mái bằng kết hợp tum và giàn kính phía trên là một trong những điểm nhấn đáng chú ý của công trình. Không chỉ góp phần hoàn thiện hình khối kiến trúc, giải pháp này còn mang lại giá trị sử dụng thực tế, giúp mở rộng không gian sinh hoạt theo chiều cao.
Khu vực tum được xử lý như một không gian bán ngoài trời, vừa có mái kính che chắn, vừa đón được ánh sáng tự nhiên, tạo cảm giác thoáng đãng và nhẹ nhàng. Khi nhìn từ xa, phần tum và giàn kính giúp tổng thể ngôi nhà trở nên thanh thoát hơn, đồng thời tạo dấu ấn riêng cho mặt tiền giữa dãy nhà phố san sát.

Dù diện tích mặt tiền chỉ 5,5m, công trình vẫn được chú trọng đưa không gian xanh vào từng tầng, tạo nên sự cân bằng giữa kiến trúc và thiên nhiên. Các ban công nhỏ được bố trí cây xanh hợp lý, giúp làm mềm các khối kiến trúc cứng cáp và mang lại cảm giác thư giãn cho không gian sống.
Đặc biệt, khu vực tum với giàn kính và bồn cây được xem như một khu vườn trên cao, nơi gia chủ có thể tận hưởng những khoảnh khắc nghỉ ngơi yên tĩnh, tách biệt khỏi nhịp sống ồn ào bên dưới. Đây chính là yếu tố “đắt giá” khiến mẫu thiết kế này thu hút được nhiều gia chủ khi tìm kiếm một ngôi nhà phố không chỉ đẹp về hình thức mà còn mang lại chất lượng sống cao.


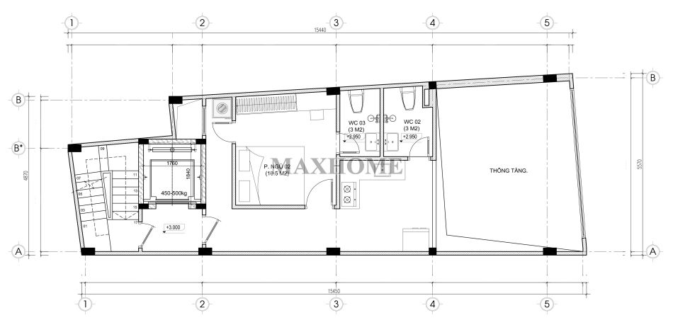
Nhờ lợi thế phát triển theo chiều cao kết hợp cùng sự hỗ trợ của hệ thống thang máy hiện đại, công năng bên trong ngôi nhà được tổ chức khoa học và tối ưu đến từng centimet, mang lại sự thuận tiện tối đa trong quá trình sử dụng hằng ngày. Ngay tại tầng 1, kiến trúc sư dành khoảng 25m² cho khu vực để xe rộng rãi, đảm bảo sự gọn gàng và an toàn, đồng thời bố trí thêm một phòng ngủ 10,5m² và khu vực vệ sinh chung được sắp xếp hợp lý, góp phần hoàn thiện công năng tầng 1 theo hướng tiện nghi và linh hoạt.

Tầng lửng được bố trí một phòng ngủ khép kín cùng một khu vệ sinh chung, đáp ứng linh hoạt nhu cầu sinh hoạt độc lập của từng người sử dụng, đặc biệt phù hợp với mô hình cho thuê theo dạng căn hộ mini. Khoảng thông tầng được giữ lại có chủ ý không chỉ giúp lấy sáng, tăng đối lưu không khí mà còn tạo cảm giác thoáng đãng, tách biệt rõ ràng giữa các không gian.
Cuối nhà là khu vực cầu thang bộ kết hợp thang máy, được tổ chức gọn gàng và thuận tiện, đảm bảo khả năng di chuyển riêng tư, mạch lạc cho toàn bộ công trình vận hành như một chung cư thu nhỏ cao cấp.


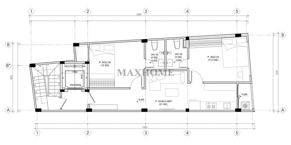
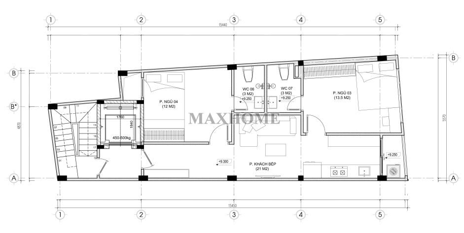
Tầng 2 và tầng 3 được thiết kế giống nhau về mặt công năng, nhằm đảm bảo tính đồng bộ và thuận tiện cho mô hình khai thác cho thuê theo dạng chung cư mini. Mỗi tầng được bố trí hai phòng ngủ riêng biệt với diện tích hợp lý, trong đó các phòng đều có cửa sổ mở ra mặt tiền hoặc mặt sau, đảm bảo khả năng lấy sáng và thông gió tự nhiên, mang lại cảm giác thoải mái cho người sử dụng.
Ở khu vực trung tâm tầng là không gian sinh hoạt chung kết hợp bếp nhỏ, đóng vai trò như một khoảng đệm giao thông và sinh hoạt, giúp kết nối các phòng chức năng một cách mạch lạc. Khu vệ sinh được bố trí gọn gàng, thuận tiện sử dụng, đáp ứng nhu cầu sinh hoạt độc lập của từng phòng mà vẫn đảm bảo sự riêng tư cần thiết.


Tầng tum được bố trí không gian phòng thờ trang nghiêm với diện tích vừa đủ, đặt ở vị trí yên tĩnh, đảm bảo sự tách biệt cần thiết với các khu vực sinh hoạt bên dưới. Phía trước là khoảng sân rộng kết hợp mảng xanh, đóng vai trò như không gian thư giãn, phơi đồ hoặc tổ chức sinh hoạt ngoài trời, đồng thời giúp công trình thông thoáng và cân bằng vi khí hậu. Cách tổ chức tầng tum này không chỉ đáp ứng đầy đủ yếu tố tâm linh mà còn gia tăng giá trị sử dụng, hoàn thiện trọn vẹn mô hình nhà phố 4 tầng 1 lửng 1 tum theo hướng hiện đại và bền vững.











