Mẫu nhà phố 4 tầng tân cổ điển đẹp sang trọng, tiện nghi vượt trội | MH05860

Chủ đầu tư: Anh Bùi Đức Lâm Số tầng: 4
Địa chỉ: Vĩnh Lại, Hải Phòng Diện tích xây dựng: 5,8 x 20,7m
Loại hình: Nhà phố tân cổ điển Tổng diện tích: 440m2
Công năng:
  • Tầng 1: Kinh doanh, 1 wc
  • Tầng 2: Phòng khách, phòng bếp, 1 phòng ngủ, 1 wc
  • Tầng 3: 3 phòng ngủ, 3 wc
  • Tầng 4: Phòng thờ, phòng gym, giặt phơi

Chiêm ngưỡng mẫu nhà phố 4 tầng tân cổ điển do Maxhome thiết kế cho gia đình anh Lâm tại Hải Phòng, bạn sẽ không khỏi choáng ngợp trước vẻ sang trọng, bề thế mang đậm dấu ấn kiến trúc tân cổ điển đầy xa hoa và tinh tế. Công trình không chỉ đáp ứng đầy đủ yêu cầu về thẩm mỹ, công năng mà còn vượt xa kỳ vọng, trở thành không gian sống lý tưởng và tiện nghi bậc nhất.

Ngôi nhà phố 4 tầng tân cổ điển gây ấn tượng mạnh mẽ với diện mạo thanh thoát, kiêu sa, toát lên sự bề thế giữa không gian đô thị. Các chi tiết phào chỉ và đường nét kiến trúc được xử lý tinh xảo, tạo nên hiệu ứng thẩm mỹ sang trọng, đồng thời khẳng định sự chỉn chu trong thiết kế. Không chỉ dừng lại ở giá trị kiến trúc vượt thời gian, công trình còn phản ánh gu sống tinh tế và phong cách đẳng cấp riêng của gia chủ.

Mặt tiền ngôi nhà gây ấn tượng với hệ cột trụ vuông và tròn âm tường, được bố trí kéo dài xuyên suốt các tầng, tạo nên cảm giác uy nghi và bề thế. Bề mặt tường được xử lý bằng hệ phào chỉ tinh xảo, không chỉ giúp mặt đứng trở nên cao ráo, thoáng đạt mà còn cân đối tỷ lệ kiến trúc, mang lại vẻ đẹp thanh thoát, hài hòa cho tổng thể.

Khu vực mái sảnh tầng 4 được nhấn mạnh bằng các chương họa tiết đắp nổi cầu kỳ, tinh mỹ, góp phần tôn vinh khí chất quyền uy và vẻ đẹp sang trọng đặc trưng của phong cách kiến trúc tân cổ điển.

Màu sắc cũng là một trong những yếu tố quan trọng giúp thu hút mọi ánh mắt người nhìn, đồng thời cũng góp phần nâng cao được sự sang trọng cho ngoại thất ngôi nhà. Tổng thể nổi bật với tông màu trắng kem chủ đạo, mang đến vẻ đẹp thanh nhã và sang trọng.

Màu trắng không chỉ giúp không gian sáng sủa, sạch sẽ mà còn làm nổi bật các chi tiết kiến trúc tinh xảo, tạo cảm giác rộng rãi và tươi mới. Sự kết hợp hài hòa với tông vàng – đen của lan can sắt mỹ thuật càng tôn lên sự nổi bật, góp phần tăng giá trị thẩm mỹ và đẳng cấp cho toàn bộ công trình.

Điểm nhấn độc đáo của công trình nằm ở hệ ban công bán nguyệt kết hợp cửa vòm mềm mại, mang đậm tinh thần kiến trúc tân cổ điển. Ban công các tầng được tô điểm bằng lan can sắt nghệ thuật với những đường nan uốn lượn tinh xảo, chế tác tỉ mỉ, vừa tạo điểm nhấn thẩm mỹ nổi bật, vừa thể hiện gu thẩm mỹ tinh tế của gia chủ. Sự kết hợp hài hòa giữa đường cong duyên dáng và chi tiết trang trí sang trọng đã góp phần hoàn thiện diện mạo mặt tiền, mang đến vẻ đẹp quý phái, thanh lịch và khác biệt.

Với đặc trưng nhà phố có hai mặt bên tiếp giáp công trình lân cận, kiến trúc sư đã tính toán kỹ lưỡng giải pháp lấy sáng và thông gió cho mặt tiền. Toàn bộ hệ cửa được sử dụng nhôm Xingfa kết hợp kính cường lực cao cấp, không chỉ giúp mở rộng tầm nhìn, tăng khả năng kết nối với không gian bên ngoài mà còn tối ưu việc đón ánh sáng tự nhiên và luồng gió trời.

Nhờ đó, không gian bên trong luôn duy trì được sự thông thoáng, sáng sủa, góp phần nâng cao chất lượng sống và tạo cảm giác dễ chịu cho gia chủ trong quá trình sinh hoạt hằng ngày.

Không chỉ sở hữu vẻ đẹp ngoại thất nguy nga, ngôi nhà phố 4 tầng tân cổ điển còn thu hút bởi công năng khoa học, tối ưu, đáp ứng nhu cầu sử dụng thoải mái và tiện nghi.

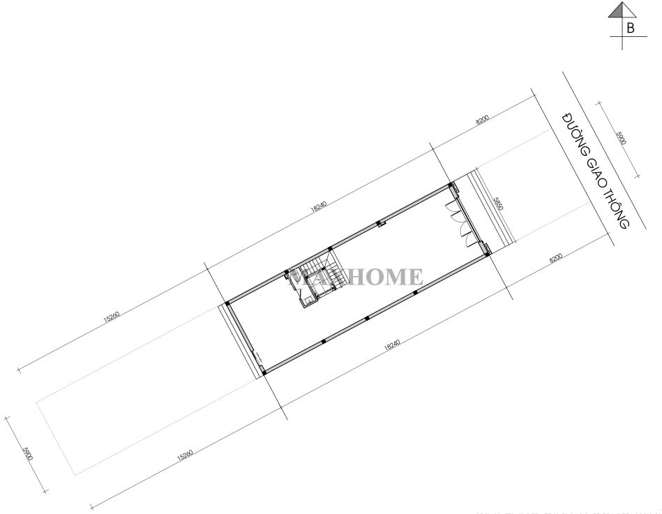
Về vị trí, công trình được xây dựng theo hướng Đông Bắc, có kích thước 5,8 x 20,7m, tổng diện tích sử dụng sẽ rơi vào khoảng 440m². Công năng được bố trí hài hòa, hợp phong thủy để mang lại cho gia chủ không gian sống sang trọng, tiện nghi, tràn ngập ánh sáng và gió tự nhiên.

Mặt bằng định vị công trình

Với lợi thế nằm ngay mặt đường lớn, gia chủ đã khéo léo tận dụng không gian tầng 1 làm khu vực kinh doanh, giúp việc buôn bán, giao dịch diễn ra thuận tiện, đồng thời tối ưu hiệu quả sử dụng đất trong đô thị.

Mặt bằng được bố trí thông thoáng, linh hoạt, dễ dàng thích ứng với nhiều loại hình kinh doanh khác nhau. Bên cạnh đó, tầng 1 còn được bố trí một nhà vệ sinh chung, đáp ứng nhu cầu sinh hoạt và sử dụng hằng ngày, góp phần hoàn thiện công năng và nâng cao sự tiện nghi cho toàn bộ không gian.

Mặt bằng bố trí công năng tầng 1

Phòng khách được bố trí tại tầng 2 với diện tích rộng rãi, là không gian sinh hoạt chung chính của gia đình, nổi bật với phong cách nội thất sang trọng, hiện đại và bố cục thông thoáng. Liền kề là phòng ngủ 01 thiết kế khép kín, đảm bảo sự riêng tư, yên tĩnh và tiện nghi, phù hợp cho gia chủ nghỉ ngơi sau một ngày dài.

Đi sâu về cuối nhà là khu bếp và phòng ăn được sắp xếp gọn gàng, ấm cúng, vừa đáp ứng nhu cầu sinh hoạt hằng ngày vừa tạo cảm giác gần gũi, sum vầy cho các thành viên trong gia đình.

Mặt bằng bố trí công năng tầng 2

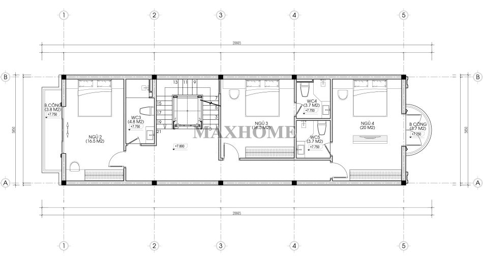
Tầng 3 được thiết kế gồm 3 phòng ngủ với diện tích rộng rãi, đảm bảo sự riêng tư và thoải mái cho từng thành viên trong gia đình. Mỗi phòng đều được trang bị nội thất tiện nghi, nhà vệ sinh khép kín giúp quá trình sinh hoạt hàng ngày của các thành viên trở nên thuận tiện, hợp lý.

Mặt bằng bố trí công năng tầng 3

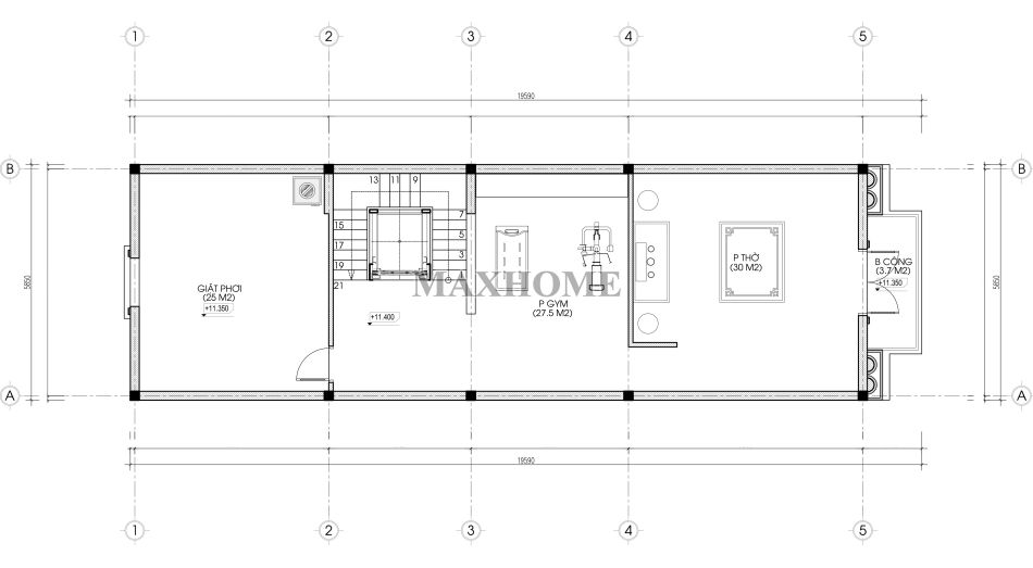
Phòng thờ được bố trí tại tầng 4, ở vị trí trang trọng và hài hòa về phong thủy, tạo sự tĩnh tại và linh thiêng cần có. Hướng bàn thờ quay ra ban công, nơi đón gió trời và nguồn sinh khí tự nhiên, giúp không gian luôn thông thoáng, nhẹ nhàng và ấm cúng.

Phía sau phòng thờ là khu vực phòng gym, được thiết kế gọn gàng và tiện nghi, đáp ứng nhu cầu rèn luyện thể chất, nâng cao sức khỏe cho gia đình. Cuối nhà là khu giặt phơi, bố trí tách biệt, đảm bảo sự thuận tiện trong sinh hoạt mà vẫn giữ được sự ngăn nắp, hài hòa cho toàn bộ không gian.

Mặt bằng bố trí công năng tầng 4

Yêu cầu tư vấn

    *Vui lòng để lại thông tin, nhân viên tư vấn sẽ liên hệ lại quý khách trong thời gian sớm nhất