Mẫu nhà phố 5x17m 3 phòng ngủ đẹp xuất sắc, tối ưu công năng | MH05977

Chủ đầu tư: Anh Trần Văn Dũng Số tầng: 1 tầng 1 lửng
Địa chỉ: Trường Tân, Hải Phòng Diện tích xây dựng: 5 x 16,7m
Loại hình: Nhà phố mái bằng hiện đại Tổng diện tích: 160m2
Công năng:
  • Tầng 1: Phòng khách, phòng bếp, 1 phòng ngủ, 1 wc
  • Tầng lửng: Phòng thờ, 2 phòng ngủ, 2 wc

Mẫu nhà phố 5x17m 3 phòng ngủ do Maxhome thiết kế cho gia đình anh Dũng tại Hải Phòng gây ấn tượng nhờ vẻ đẹp hiện đại, tinh gọn nhưng vẫn sang trọng và rất thực tế khi sử dụng. Trong bối cảnh quỹ đất đô thị ngày càng hạn chế, xu hướng thiết kế nhà phố ưu tiên công năng tối ưu, không gian thoáng sáng và chi phí hợp lý đang trở thành lựa chọn hàng đầu của nhiều gia chủ trẻ. Ngôi nhà này không chỉ đáp ứng trọn vẹn nhu cầu sinh hoạt cho gia đình 4–5 người mà còn mang lại không gian sống tiện nghi và bền vững lâu dài.

Ngay từ cái nhìn đầu tiên, mẫu nhà phố 5x17m 3 phòng ngủ chinh phục gia chủ bởi bố cục hình khối mạch lạc, hiện đại nhưng mềm mại nhờ những đường bo cong tinh tế ở ban công và mảng mặt tiền tầng 2. Hệ tam cấp được thiết kế vừa vặn, cao ráo, tạo cảm giác ngôi nhà bề thế hơn, đồng thời giúp tách biệt không gian sinh hoạt với mặt đường, mang lại sự riêng tư và sang trọng cần có cho nhà phố đô thị.

Gam màu trắng chủ đạo kết hợp sắc be ấm và điểm nhấn đá ốp đứng bên hông tạo chiều sâu cho mặt tiền, vừa trẻ trung vừa bền dáng theo thời gian, rất hợp gu của những gia chủ yêu thích vẻ đẹp tinh giản nhưng không đơn điệu.

Các chi tiết trang trí được tiết chế tối đa, thay vào đó là sự trau chuốt trong từng đường nét, lan can thanh mảnh, mảng kính lớn đón sáng và cách phối màu hài hòa, tất cả hòa quyện để tạo nên một tổng thể kiến trúc thanh lịch, cuốn hút và dễ khiến người xem dừng lại thật lâu.

Phần mặt đứng của ngôi nhà được các kiến trúc sư tính toán kỹ lưỡng để đạt sự cân bằng hài hòa giữa công năng sử dụng và giá trị thẩm mỹ, mang đến cảm giác hiện đại, tinh tế. Dù khu đất xây dựng có hình dáng xéo, không vuông vắn, khoảng sân phía trước vẫn được khéo léo tận dụng làm nơi để xe, đồng thời tạo khoảng lùi hợp lý giúp mặt tiền thông thoáng, giảm cảm giác chật chội thường thấy ở nhà phố.

Cách xử lý hình khối linh hoạt, bố trí không gian thông minh và giải pháp tổ chức mặt đứng mạch lạc đã biến những hạn chế về hình thế đất thành lợi thế, góp phần nâng tầm trải nghiệm sống và khẳng định rõ nét năng lực thiết kế chuyên nghiệp, giàu kinh nghiệm của đội ngũ kiến trúc sư.

Hệ cửa của ngôi nhà phố 5x17m 3 phòng ngủ được lựa chọn sử dụng nhôm kính Xingfa cao cấp, không chỉ đảm bảo độ bền chắc, an toàn mà còn tối ưu khả năng lấy sáng và thông gió tự nhiên cho không gian sống.

Những mảng kính lớn được bố trí hợp lý giúp ánh sáng lan tỏa đều khắp các khu vực bên trong, tạo cảm giác rộng rãi, thoáng đãng và dễ chịu ngay cả với nhà phố có mặt tiền hạn chế.

Hệ thống ban công được thiết kế gọn gàng, vừa đủ để tạo điểm nhấn cho mặt tiền, đồng thời kết hợp hài hòa với các mảng xanh được bố trí tinh tế. Những chậu cây xanh đặt khéo léo tại tầng lửng không chỉ làm mềm kiến trúc, tăng sức sống cho ngôi nhà mà còn mang đến cảm giác thư thái, dễ chịu cho không gian sinh hoạt.

Trong bối cảnh đô thị ngày càng chật chội và bí bách, giải pháp đưa thiên nhiên len lỏi vào từng góc nhà như thế này được xem là lựa chọn thông minh, góp phần cân bằng môi trường sống và nâng cao chất lượng cuộc sống lâu dài cho gia chủ.

Bộ cửa cổng và hệ tường bao được thiết kế đồng bộ, chắc chắn nhưng vẫn giữ được nét sang trọng cần có cho nhà ống đô thị hiện đại. Cổng sử dụng chất liệu khung thép hộp có các nan kim loại thanh mảnh kết hợp mảng ốp đá màu ghi xám, vừa đảm bảo an ninh, che chắn tầm nhìn từ bên ngoài, vừa tạo cảm giác thông thoáng, không nặng nề hay bít kín.

Hệ tường bao cao vừa phải, xử lý phẳng gọn, kết hợp vật liệu hoàn thiện cao cấp giúp tổng thể công trình thêm chỉn chu, riêng tư và an toàn, đồng thời nâng tầm thẩm mỹ cho mặt tiền, khẳng định gu sống tinh tế và sự đầu tư nghiêm túc của gia chủ.

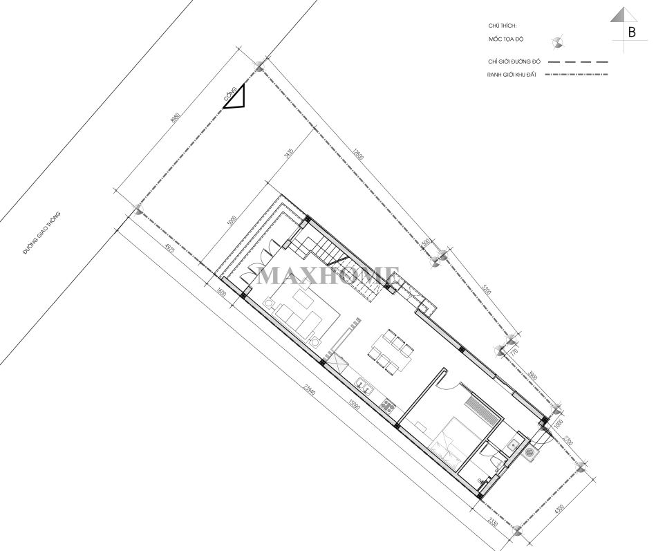
Mặt bằng định vị công trình

Công trình được xây dựng trên mảnh đất hướng Tây Bắc với kích thước 5 x 17m, tổng diện tích sử dụng 160m², vừa đảm bảo sự thông thoáng tự nhiên vừa thuận phong thủy cho gia chủ. Với quy mô lý tưởng này, ngôi nhà không chỉ tối ưu công năng sinh hoạt mà còn mang đến một không gian sống tiện nghi, cân bằng hài hòa giữa thẩm mỹ và giá trị bền vững.

Mặt bằng bố trí công năng tầng 1

Tầng 1 được bố trí khoa học với phòng khách rộng 18m² ngay phía trước, mang đến không gian tiếp đón sang trọng và thoáng đãng. Khu vực bếp – ăn nối liền có diện tích 20,5m², vừa tiện nghi vừa ấm cúng, là nơi gắn kết các thành viên. Cuối nhà là phòng ngủ 12m² và 1 nhà WC chung đảm bảo sự tiện nghi và thoải mái.

Mặt bằng bố trí công năng tầng lửng

Tầng lửng được thiết kế tối ưu, cân bằng giữa công năng và sự riêng tư. Không gian gồm hai phòng ngủ diện tích 12,5m² và 14m², đáp ứng nhu cầu nghỉ ngơi cho các thành viên. Bên cạnh là nhà vệ sinh chung tiện lợi, phục vụ sinh hoạt hằng ngày. Bên cạnh đó, phòng thờ rộng 7m² được bố trí trang trọng ở phía trước, kết hợp cùng ban công nhỏ tạo sự thoáng đãng và giữ trọn sự tôn nghiêm trong đời sống tâm linh của gia đình.

Yêu cầu tư vấn

    *Vui lòng để lại thông tin, nhân viên tư vấn sẽ liên hệ lại quý khách trong thời gian sớm nhất