Mẫu thiết kế nhà ba gian đương đại với 3 phòng ngủ tiện nghi ở Hà Nội | MH05659
| Chủ đầu tư: Anh Nguyễn Thành Khôi | Số tầng: 1 |
| Địa chỉ: Hương Sơn, Mỹ Đức, Hà Nội | Diện tích xây dựng: 13,8 x 12,8m |
| Loại hình: Nhà vườn mái truyền thống hiện đại | Tổng diện tích: 145m2 |
| Công năng:
Phòng khách + thờ, phòng bếp, 3 phòng ngủ, 4 wc |
|
Maxhome kiến tạo một mẫu nhà ba gian đương đại mang đậm dấu ấn sang trọng và gần gũi. Công trình kết hợp hài hòa giữa kiến trúc truyền thống Việt và phong cách đương đại để mang đến không gian sống tiện nghi, tinh tế và đầy ấm cúng cho gia đình anh Khôi ở Hà Nội. Hãy cùng chúng tôi khám phá thêm bản vẽ mẫu nhà đẹp này nhé!
Đúng như tên gọi, nhà ba gian đương đại được chia thành ba khối chính cân xứng: gian giữa là khu vực trung tâm làm không gian tiếp khách và sinh hoạt chung; hai gian bên là các khối chức năng phụ trợ. Chính cách bố trí này giúp ngôi nhà vừa giữ được phong cách truyền thống “ba gian hai chái” của người Việt vừa đảm bảo công năng sinh hoạt hiện đại. Cũng nhờ đường nét thiết kế mạch lạc, không cầu kỳ mà đã tạo nên được cảm giác mẫu nhà đẹp bề thế mà vẫn thân thiện với người nhìn.

Mặt tiền ngôi nhà ba gian đương đại được thiết kế với hệ bậc tam cấp ốp đá dẫn lên khu vực sảnh chính rộng rãi. Cửa chính sử dụng kính cường lực kết hợp khung nhôm màu đen giúp lấy sáng tối đa và mở rộng tầm nhìn ra không gian sân vườn. Hai bên sảnh là khu tiểu cảnh cây xanh được sắp đặt khéo léo giúp mang đến cảm giác mềm mại và tự nhiên cho toàn bộ kiến trúc. Đây chính là điểm nhấn khiến nhà ba gian đương đại này trở nên hài hòa, gần gũi mà không kém phần sang trọng.

Đặc biệt, nhà ba gian đương đại của anh Khôi gây ấn tượng mạnh với bố cục cân đối và mái ngói đen xếp lớp tinh tế. Kiểu dáng mái dốc truyền thống kết hợp họa tiết hoa văn tinh xảo ở đầu hồi giúp công trình toát lên sự thanh lịch và đậm chất Á Đông. Tuy vẫn giữ dáng vẻ đặc trưng của kiến trúc truyền thống, thiết kế này được Maxhome khéo léo hiện đại hóa qua từng chi tiết từ hệ cửa kính khung nhôm, mảng tường phẳng màu trắng đến hệ đèn chiếu sáng âm trần tinh gọn giúp tạo nên diện mạo thời thượng mà vẫn giữ hồn Việt.

Thêm vào đó, ngôi nhà anh Khôi nổi bật với hai tông chủ đạo trắng và ghi đậm được Maxhome phối hợp hài hòa. Phần chân tường được ốp đá chẻ tối màu giúp công trình thêm vững chãi và bền đẹp theo thời gian. Sự tương phản giữa hai gam màu không chỉ tăng tính thẩm mỹ mà còn thể hiện rõ tinh thần của nhà ba gian đương đại, giản lược, tinh tế nhưng vẫn đậm phong cách.

Mái nhà được xem là linh hồn của mẫu nhà ba gian đương đại này vì Maxhome đã lựa chọn kiểu mái truyền thống và lợp ngói mà ghi cá tính giúp mang lại hiệu quả thẩm mỹ cao và đảm bảo được công năng chống nóng, thoát nước tốt trong điều kiện khí hậu miền Bắc. Các đường viền mái sắc nét được trang trí họa tiết kim loại tối màu ở đầu hồi để tạo nên cảm giác sang trọng mà không phô trương. Khi nhìn từ trên cao, từng khối mái giao nhau nhịp nhàng tạo thành hình chữ U, thể hiện rõ tay nghề thiết kế chuyên nghiệp của đội ngũ Maxhome.


Từ ngõ nhỏ đi vào nhà anh Khôi là một mảnh đất vuông vắn, hoàn chỉnh để vừa vặn công trình nhà ba gian đương đại với kích thước xây dựng là 13,8×12,8m. Nhờ việc thụt lùi lại sảnh chính mà không gian sân trước nhà được mở rộng thêm, thoải mái trồng thêm cây xanh và để xe cộ đi lại của mọi người. Giờ hãy cùng Maxhome tiếp tục khám phá thêm công năng bên trong căn nhà này nhé!

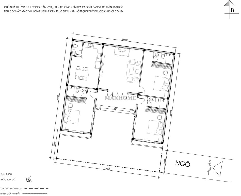
Kích thước ba gian được chia đều nhau và đối xứng, ở giữa trung tâm là phòng khách kết hợp gian thờ nhỏ xinh nhưng rất trang nghiêm. Sảnh chính của ngôi nhà là lối đi dẫn vào khu vực trung tâm đó và đồng thời là lối đi vào 2 phòng ngủ phía trước. Phía sau có thêm phòng bếp và 1 phòng ngủ khác nữa, tất cả đều có diện tích tương đương và song song với nhau. Đặc biệt, có tới 4 nhà vệ sinh ở 4 góc nhà để mọi người thuận tiện sử dụng khi ở bất cứ đâu. Nhờ cách thiết kế này mà căn nhà ba gian đương đại của anh Khôi không chỉ đẹp về hình thức mà còn đem đến cảm giác thư thái, gần gũi mỗi khi trở về.











