Mẫu thiết kế nhà thờ cổ kính được nhiều gia đình yêu thích | MH05354
| Chủ đầu tư: Anh Lê Ngọc Hiệp | Số tầng: 1 |
| Địa chỉ: Mỹ Xuyên, Mỹ Đức, Hà Nội | Diện tích xây dựng: 10,2 x 17,8m |
| Loại hình: Nhà thờ ba gian truyền thống | Tổng diện tích: 96m2 |
| Công năng:
Nhà thờ, phòng sinh hoạt chung, 1 phòng ngủ, 1 wc |
|
Những giá trị tâm linh và truyền thống vẫn luôn giữ một vị trí trang trọng trong trái tim mỗi người dân Việt Nam. Thấu hiểu những giá trị nhân văn sâu sắc đó, anh Hiệp tại Mỹ Đức, Hà Nội đã tin tưởng liên hệ với đội ngũ thiết kế Maxhome để kiến tạo nên một công trình nhà thờ họ vừa mang nét cổ kính của kiến trúc xưa vừa đảm bảo sự bền vững, kiên cố theo thời gian.
Việc xây dựng một không gian thờ tự khang trang không chỉ là cách thể hiện lòng hiếu thảo với tổ tiên mà còn là nơi lưu giữ tinh hoa văn hóa dòng họ cho các thế hệ mai sau. Đến với nhà thờ họ của gia đình anh Hiệp,công trình hiện lên với vẻ đẹp trang nghiêm, bề thế và trở thành một trong những mẫu thiết kế nhà thờ được nhiều gia đình yêu thích.

Mặt tiền của căn nhà thờ họ được thiết kế vô cùng khang trang thể hiện rõ nét đặc trưng của kiến trúc truyền thống vùng Đồng bằng Bắc Bộ. Điểm nhấn ấn tượng nhất chính là hệ cột đồng trụ to lớn đặt hai bên được xử lý tinh tế bằng kỹ thuật sơn giả đá xám vân mây tạo cảm giác như được tạc từ đá khối nguyên khối, tượng trưng cho sự vững chãi và uy nghi của dòng tộc. Sự kết hợp giữa màu xám trầm mặc của cột đá và sắc trắng thanh thoát của các diện tường xung quanh đã tạo nên một tổng thể hài hòa vừa hiện đại lại vừa cổ xưa.

Tiến sâu vào sảnh chính, hệ cột hiên và các chi tiết kiến trúc bên trong lại được sơn giả gỗ với gam màu nâu đỏ ấm áp đồng điệu hoàn hảo với hệ cửa chính. Bộ cửa được làm từ chất liệu pano gỗ tự nhiên có độ dày lên tới 30mm, trên bề mặt chạm khắc những họa tiết cầu kỳ, tinh xảo, đảm bảo độ bền trước thời tiết khắc nghiệt và minh chứng cho sự đầu tư tỉ mỉ của gia chủ.

Về mặt kỹ thuật, cốt nền của mẫu nhà thờ họ được tính toán kỹ lưỡng để nâng cao vị thế của nhà thờ so với không gian xung quanh. Hệ bậc tam cấp dẫn lối vào nhà với mặt bậc và cổ bậc được ốp đá Granite đen kim sa cao cấp vừa chống trơn trượt vừa mang lại sự sang trọng và bền bỉ. Đồng bộ với đó, phần chân tường công trình được ốp đá chẻ xám có chiều cao lên tới 750mm tương đương với chiều cao của bậc thềm. Việc sử dụng đá chẻ giúp mang tới thẩm mỹ cao, tạo điểm nhấn khỏe khoắn mà còn bảo vệ bức tường khỏi ẩm mốc và tác động của thời tiết từ mặt đất giúp công trình luôn giữ được vẻ đẹp như mới qua hàng thập kỷ. Các ô cửa sổ cũng được trang bị mái che nhỏ lợp ngói đỏ có tác dụng chắn nắng, che mưa và tạo nên sự thống nhất trong ngôn ngữ thiết kế của toàn bộ công trình.

Điểm linh hồn của mẫu nhà thờ này chính là hệ mái lợp ngói đỏ truyền thống. Những viên ngói vảy rồng đều tăm tắp được lợp với độ dốc khoảng 35 đến 40 độ giúp thoát nước mưa nhanh chóng và tạo độ thông thoáng, tản nhiệt tốt cho không gian bên trong. Đỉnh mái được trang trí bằng các chi tiết con kìm, bờ nóc đắp nổi tinh tế với những đường nét uốn lượn mang đậm phong cách kiến trúc cung đình xưa.

Đặc biệt, ở mặt bên của nhà thờ, Maxhome còn khéo léo lồng ghép ô cửa sổ tròn mang biểu tượng chữ Thọ cách điệu không chỉ giúp lấy sáng và lưu thông khí cho gian thờ mà còn mang ý nghĩa phong thủy tốt lành, cầu chúc sự trường thọ và bình an cho cả dòng họ.
Bên cạnh khối nhà chính dành cho việc thờ tự, công trình còn được thiết kế một khối nhà ngang đơn giản hơn nhưng vẫn giữ được sự đồng bộ về màu sắc và vật liệu. Sự kết hợp này tạo nên một khuôn viên đa năng có nơi trang nghiêm để cúng bái và có không gian nghỉ ngơi, chuẩn bị lễ vật cho con cháu mỗi dịp giỗ chạp, lễ Tết.

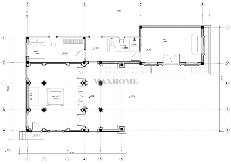
Công trình nhà thờ họ của gia đình anh Hiệp được quy hoạch đồng bộ trên một khuôn đất rộng rãi tại Mỹ Đức, Hà Nội với kích thước khá rộng lớn. Vị trí công trình được tính toán kỹ lưỡng, đặt lùi về phía sau tâm đất để dành trọn khoảng sân trước rộng rãi cho các hoạt động hành lễ và hội họp dòng tộc. Về mặt phong thủy và công năng, ngôi nhà được thiết kế theo hình chữ L tối ưu với tổng diện tích xây dựng tính cả sảnh 96m2 với kích thước xây dựng 10,2×17,8m.

Không gian bên trong được phân chia khoa học thành 4 khu vực chính, tâm điểm là phòng thờ rộng 30m2 chiếm vị trí trang trọng nhất với hệ cột gỗ và sập thờ uy nghiêm. Phía sau và bên cạnh là các tiện ích phục vụ sinh hoạt gồm 1 phòng ngủ yên tĩnh 12,8m2, 1 phòng sinh hoạt chung 20m2 hiện đại với đầy đủ sofa và kệ tivi cùng một nhà vệ sinh chung rộng 3,8m2 được bố trí khéo léo nhằm đảm bảo sự tiện nghi nhưng vẫn giữ được tính tôn nghiêm cho khu vực thờ tự chính.

Tổng thể mẫu thiết kế nhà thờ họ của gia đình anh Hiệp tại Mỹ Đức là sự giao thoa tuyệt vời giữa kỹ thuật xây dựng hiện đại và nét đẹp nghệ thuật truyền thống, một công trình không chỉ đẹp về thẩm mỹ mà còn chứa đựng những giá trị tinh thần vô giá, xứng đáng là niềm tự hào của cả dòng tộc.











