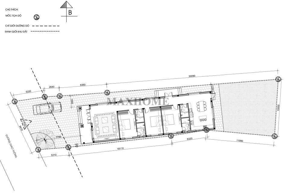
Về vị trí, công trình tọa lạc ở hướng Tây Nam – cung phong thuỷ hành Thổ, biểu trưng cho sự bền vững, gắn kết và ổn định trong đời sống gia đình. Với kích thước 6,6 x 23,1m, tổng diện tích sử dụng 150m², công năng được bố trí hợp lý, tối ưu hoá diện tích, đảm bảo sự thông thoáng và tiện nghi trong từng không gian sống.
Mê mẩn mẫu nhà cấp 4 mái nhật tân cổ điển sang xịn tiện nghi | MH05572
| Chủ đầu tư: Anh Nguyễn Việt Anh | Số tầng: 1 |
| Địa chỉ: Châu Thành, Tiền Giang | Diện tích xây dựng: 6,6 x 23,1m |
| Loại hình: Nhà mái Nhật tân cổ điển | Tổng diện tích: 150m2 |
| Công năng:
Phòng khách, phòng bếp, 3 phòng ngủ, 4 wc |
|
Giữa vùng đất Tiền Giang thanh bình, gia đình anh Việt Anh đã lựa chọn Maxhome để kiến tạo nên một mẫu nhà cấp 4 mái Nhật tân cổ điển vừa sang trọng vừa tiện nghi. Công trình là sự hòa quyện tinh tế giữa kiến trúc đẳng cấp và không gian sống gần gũi thiên nhiên, mang lại cảm giác ấm áp nhưng vẫn toát lên nét hiện đại thời thượng. Đây không chỉ là nơi an cư lý tưởng mà còn là minh chứng cho gu thẩm mỹ và phong cách sống tinh tế của gia chủ.
Ngay từ cái nhìn đầu tiên, mặt tiền mẫu nhà cấp 4 đã gây ấn tượng mạnh với hình khối cân đối, vuông vắn và chắc chắn. Điểm nổi bật nằm ở phần mái Nhật với độ dốc vừa phải, trải rộng ra bốn phía, vừa mang lại vẻ bề thế, vừa tối ưu khả năng thoát nước và chống nóng. Hệ mái ngói màu xanh than đậm sang trọng, khi ánh nắng chiếu xuống càng thêm nổi bật, tạo nên hiệu ứng thị giác ấn tượng, đồng thời mang đến cảm giác mát mẻ, bền vững theo thời gian.

Tường được sơn trắng kem trang nhã, điểm xuyết cùng các chi tiết phào chỉ nhẹ nhàng nhưng đầy tinh tế. Màu trắng chủ đạo giúp tôn lên vẻ thanh thoát, sáng sủa cho ngôi nhà, đồng thời làm nền hoàn hảo để những chi tiết khác như khung cửa nhôm Xingfa màu đen, đá ốp hay đèn ngoại thất trở nên nổi bật hơn. Sự tương phản giữa các gam màu sáng – tối được xử lý khéo léo, tạo chiều sâu cho không gian và khẳng định phong cách tân cổ điển sang trọng.

Một trong những chi tiết nổi bật của mẫu thiết kế nhà đẹp này chính là hệ trụ cột vuông vắn ở sảnh chính. Các cột được ốp phào nổi chạy dọc thân, chân tường ốp đá tự nhiên gam tối, tạo nên điểm nhấn bề thế và vững chãi.
Phần mái hiên cong nhẹ phía trên được viền phào uốn lượn, kết hợp cùng chiếc đèn treo ngoại thất, vừa mang tính thẩm mỹ cao vừa gợi cảm giác ấm áp, thân thiện ngay từ lối vào.

Sự xuất hiện của các khoảng hiên nhỏ và không gian chờ bên hông cũng góp phần tăng tính tiện nghi và thẩm mỹ cho tổng thể. Đây có thể là nơi để gia chủ bố trí bộ bàn ghế nhỏ, thưởng trà, đọc sách hay đơn giản là ngắm nhìn khu vườn xanh mát xung quanh.
Chính sự giao hòa giữa không gian kiến trúc và thiên nhiên đã tạo nên giá trị sống khác biệt – một nơi ở không chỉ đẹp mắt mà còn nuôi dưỡng tinh thần.

Không chỉ chú trọng đến kiến trúc ngoại thất, ngôi nhà cấp 4 mái Nhật tân cổ điển này còn thể hiện sự tinh tế qua cách lựa chọn vật liệu.
Hệ cửa kính cường lực khung nhôm Xingfa cao cấp giúp không gian bên trong luôn tràn ngập ánh sáng tự nhiên, đồng thời tạo sự kết nối liền mạch giữa nội thất và cảnh quan sân vườn. Đá granite đen được sử dụng ốp bậc tam cấp, cổ bậc trắng nhẹ nhàng càng tôn thêm vẻ sang trọng, đồng thời mang ý nghĩa phong thủy tốt lành.

Đội ngũ kiến trúc sư Maxhome đã tính toán kỹ lưỡng từ tỉ lệ hình khối, bố cục màu sắc đến vật liệu, tất cả nhằm mang lại một công trình hoàn hảo, trường tồn cùng thời gian. Không chỉ dừng lại ở thẩm mỹ, mọi yếu tố phong thủy cũng được cân nhắc, từ hướng nhà, độ cao nền đến sự phối hợp màu sắc, để đảm bảo gia chủ luôn gặp nhiều may mắn, tài lộc và bình an.


Ngay khi bước vào từ sảnh chính, bạn sẽ ấn tượng bởi không gian phòng khách rộng thoáng, nơi được gia chủ chăm chút kỹ lưỡng với nội thất hiện đại, chất liệu cao cấp, toát lên vẻ sang trọng và đẳng cấp trong từng chi tiết.











