Mua bản vẽ nhà cấp 4 90m2 3 phòng ngủ, 2 wc nhỏ xinh mà ấm áp | MH05355
| Chủ đầu tư: Anh Võ Bằng | Số tầng: 1 | 
| Địa chỉ: Đông Hiệp, Bình Dương | Diện tích xây dựng: 10,3 x 8,8m | 
| Loại hình: Nhà mái Nhật hiện đại | Tổng diện tích: 90m2 | 
| Công năng: Phòng khách, phòng thờ, phòng bếp, 3 phòng ngủ, 2 wc | |
Với diện tích vừa phải, hình khối vuông vức và phong cách thiết kế hiện đại pha chút cổ điển, mẫu nhà cấp 4 90m2 3 phòng ngủ của anh Bằng ở Bình Dương đã mang đến cảm giác ấm áp, bền vững và đẳng cấp. Đặc biệt, chi phí xây dựng một căn nhà vườn nhỏ xinh này không quá cao nên sẽ phù hợp được với rất nhiều nhu cầu của các gia đình mà vẫn đáp ứng tốt thẩm mỹ và công năng.
Nhìn từ mặt tiền, ngôi nhà cấp 4 90m2 3 phòng ngủ gây ấn tượng với hệ mái Nhật cao 2,47m kết hợp hai cửa sổ mái giúp không gian thông thoáng và sang trọng hơn. Tầng 1 cao 3,9m tạo nên tỷ lệ cân đối, tôn dáng công trình và giúp ngôi nhà anh Bằng trông bề thế hơn hẳn so với diện tích thực tế.

Bậc thềm cao 450mm gồm 3 bậc đảm bảo yếu tố phong thủy đồng thời nâng nền lên cao để tránh ẩm thấp mà lại làm nổi bật phần sảnh chính. Hệ cột vuông khỏe khoắn được sơn trắng tinh khôi và điểm thêm các đường phào chỉ nhẹ nhàng, mang tới cảm giác thanh thoát mà vẫn sang trọng. Hai góc tường nhà được đắp phào chỉ giả cột đồng điệu với cột chính giúp tổng thể mặt tiền mẫu nhà đẹp thêm phần chắc chắn, cân đối và nhấn nhá nhẹ kiến trúc tân cổ nhẹ nhàng.

Phần chân tường của nhà cấp 4 90m2 3 phòng ngủ được ốp đá chẻ tự nhiên giúp bảo vệ công trình khỏi bám bẩn và thấm nước và tạo điểm nhấn thẩm mỹ sang trọng. Dưới bệ cửa sổ, kiến trúc sư Maxhome khéo léo lựa chọn gạch Việt Nhật bền màu, chắc chắn, có khả năng chịu nhiệt và giữ cho công trình luôn tươi mới theo thời gian.

Toàn bộ hệ cửa của ngôi nhà được sử dụng hoàn toàn bằng chất liệu nhôm kính cao cấp. Thiết kế này không chỉ giúp lấy sáng tối ưu cho không gian bên trong mà còn mang lại nét hiện đại, tinh tế. Đặc biệt, cửa chính nổi bật với chi tiết nan hoa đồng ở giữa tạo điểm nhấn nghệ thuật và thể hiện khéo léo của vẻ đẹp truyền thống pha lẫn hiện đại.

Tổng thể ngoại thất căn nhà cấp 4 mái Nhật được phối hai gam màu chủ đạo là trắng và kem từ dòng sơn Maxhome Luxury. Sắc trắng tinh khôi giúp công trình trở nên tươi sáng trong khi gam kem nhạt làm mềm không gian giúp tạo cảm giác gần gũi và ấm cúng. Đây chính là bí quyết để nhà cấp 4 90m2 3 phòng ngủ của anh Bằng trở nên hài hòa và thu hút mọi ánh nhìn.

Hệ mái Nhật của ngôi nhà cấp 4 90m2 3 phòng ngủ được thi công bằng vật liệu ngói Maxhome cao cấp, màu ghi xám M09 thời thượng phù hợp với khí hậu Việt Nam. Kết cấu mái có độ dốc hợp lý giúp thoát nước nhanh, chống nóng hiệu quả và giữ được vẻ đẹp bền vững qua năm tháng.
Việc lựa chọn ngói và vì kèo siêu nhẹ Maxhome không chỉ giảm tải trọng cho công trình mà còn mang đến sự an tâm tuyệt đối nhờ chế độ bảo hành trên 20 năm. Khi nhìn từ trên cao, phần mái đăng đối cùng các chi tiết chóp đỉnh nhấn nhá khiến ngôi nhà như được đội vương miện, toát lên vẻ kiêu sa nhưng không khoa trương.

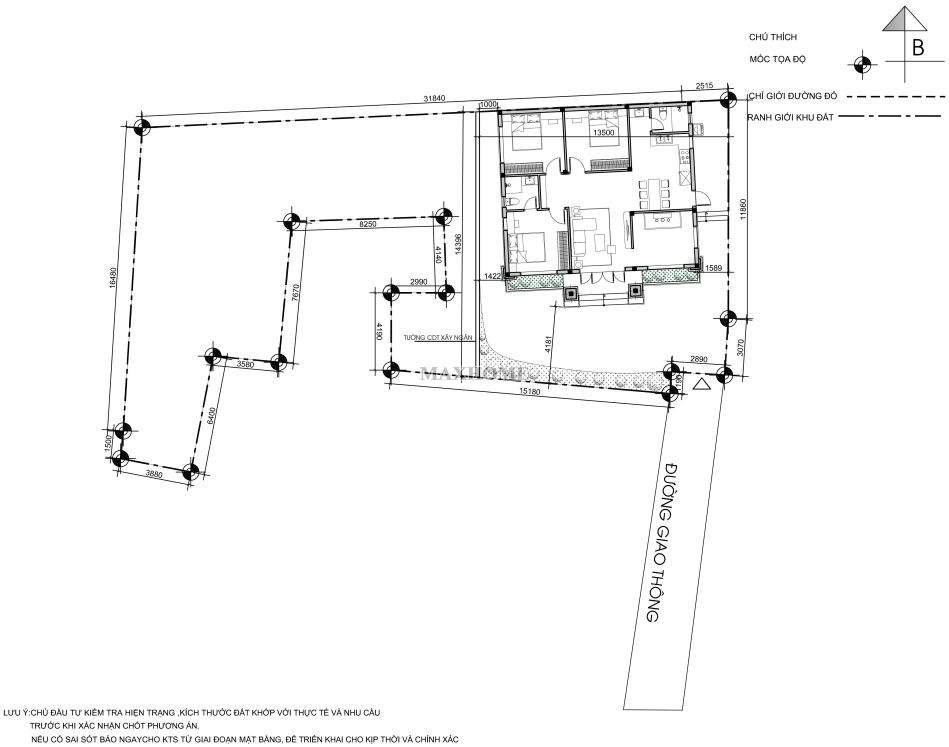
Bản vẽ mặt bằng định vị cho thấy ngôi nhà cấp 4 90m2 3 phòng ngủ của anh Bằng ở Bình Dương nằm gọn ở một bên khu đất, tiếp giáp gần với trục đường giao thông chính. Từ cổng chính đi vào là lối dẫn thẳng đến sân trước lát gạch chống trơn sạch sẽ và thoáng mát. Cùng Maxhome tiếp tục tiến vào bên trong căn nhà cấp 4 nhỏ xinh này được bố trí công năng như nào nhé!

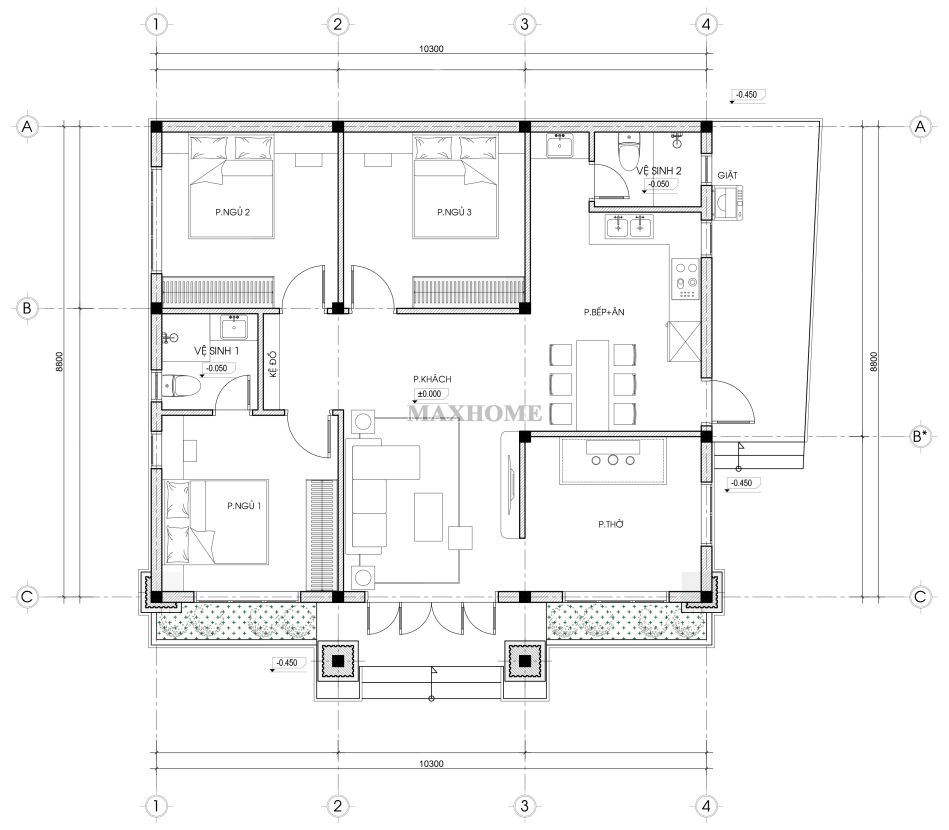
Từ sảnh chính bước vào là phòng khách rộng rãi, cách phòng thờ bằng vách tường nhỏ giúp tạo cảm giác trang trọng mà vẫn ấm cúng. Phía sau là không gian bếp ăn tiện nghi có lối đi phụ ra ngoài giúp thông gió và đảm bảo vệ sinh khi nấu nướng. Ba phòng ngủ được bố trí gần nhau và phân chia hợp lý để các thành viên có không gian riêng tư mà vẫn thuận tiện kết nối. Hai nhà vệ sinh chung được sắp xếp ở cạnh vị trí bếp để mọi người thuận tiện sử dụng.
Nếu bạn cũng đang tìm kiếm một ngôi nhà cấp 4 90m2 3 phòng ngủ vừa xinh xắn vừa tối ưu công năng, hãy liên hệ với Maxhome để được tư vấn chi tiết và sở hữu bản vẽ thiết kế chuẩn chỉnh, độc quyền cho riêng mình nhé!

 
										  		
										  	 
										  		
										  	 
										  		
										  	 
										  		
										  	 
										  		
										  	 
										  		
										  	 
										  		
										  	









