Cửa chính được chế tác từ gỗ tự nhiên cao cấp, không chỉ tạo điểm nhấn sang trọng cho mặt tiền mà còn thể hiện gu thẩm mỹ và vị thế của gia chủ. Trong khi đó, toàn bộ hệ cửa sổ và cửa phụ sử dụng nhôm kính Xingfa chất lượng cao, mang đến sự chắc chắn, bền bỉ và khả năng cách âm, cách nhiệt hiệu quả. Sự kết hợp hài hòa giữa vật liệu truyền thống và hiện đại giúp công trình vừa giữ được nét ấm áp, đẳng cấp vừa đảm bảo tính tiện nghi và phù hợp với xu hướng kiến trúc hiện nay.
Mua thiết kế nhà 2 tầng 4 phòng ngủ mái Nhật tân cổ điển đẹp hút mắt | MH05842
| Chủ đầu tư: Chú Dương Văn Hoa | Số tầng: 2 |
| Địa chỉ: Cẩm Giàng, Hải Phòng | Diện tích xây dựng: 11,7 x 10,9m |
| Loại hình: Nhà mái Nhật tân cổ điển | Tổng diện tích: 165m2 |
Công năng:
|
|
Mẫu nhà 2 tầng 4 phòng ngủ mái Nhật tân cổ điển do Maxhome thực hiện cho gia đình chú Hoa tại Hải Phòng gây ấn tượng mạnh bởi vẻ đẹp sang trọng và bề thế ngay từ cái nhìn đầu tiên. Các chi tiết được xử lý tinh tế, tạo nên diện mạo ngoại thất giàu tính nghệ thuật nhưng vẫn giữ được sự thanh lịch, hài hòa. Công trình không chỉ tôn vinh gu thẩm mỹ tinh tế và đẳng cấp của gia chủ mà còn thể hiện rõ dấu ấn thiết kế chuyên nghiệp, hướng đến không gian sống tiện nghi và bền vững theo thời gian.
Nhà 2 tầng 4 phòng ngủ mái Nhật nổi bật với thiết kế tân cổ điển, mang đến vẻ đẹp trang nhã và đẳng cấp. Bố cục kiến trúc được sắp xếp hài hòa với các khối hình vuông vắn, vững chãi, kết hợp cùng hệ mái Nhật bề thế, sang trọng. Sự phối hợp độc đáo giữa màu sắc tinh tế và những chi tiết trang trí được chăm chút tỉ mỉ, giúp mẫu nhà đẹp toát lên vẻ thanh lịch và cuốn hút.

Điểm nhấn nổi bật của công trình nằm ở mặt tiền được xử lý khéo léo, tạo ấn tượng mạnh ngay từ ánh nhìn đầu tiên. Tầng 1 sử dụng hệ cột vuông khỏe khoắn, vững chãi, mang đến cảm giác an toàn và bề thế, trong khi tầng 2 chuyển sang hệ cột tròn với các đường phào chỉ tinh tế, giúp tổng thể trở nên mềm mại và thanh lịch hơn.
Đặc biệt, phần mái sảnh được thiết kế uốn cong nhẹ nhàng không chỉ tăng giá trị thẩm mỹ mà còn tạo sự liền mạch trong ngôn ngữ kiến trúc tân cổ điển, góp phần làm nổi bật vẻ đẹp hài hòa giữa sự mạnh mẽ và tinh tế của ngôi nhà.


Bậc tam cấp ốp đá granite màu đen kết hợp với cổ bậc màu trắng tạo nên sự tương phản tinh tế, làm nổi bật vẻ đẹp sang trọng và thanh lịch cho ngôi nhà mái Nhật tân cổ điển 2 tầng. Không chỉ tăng tính thẩm mỹ, bậc tam cấp còn giúp nâng cao sự bề thế và cân đối cho kiến trúc, đồng thời đảm bảo sự bền bỉ và dễ dàng trong việc bảo dưỡng.

Phần chân đế công trình được bao bọc bởi đá rối màu xám ghi mang vẻ đẹp mộc mạc, tự nhiên, tạo cảm giác chắc chắn và khỏe khoắn cho tổng thể kiến trúc. Việc sử dụng vật liệu này không chỉ giúp tăng tính thẩm mỹ mà còn bảo vệ hiệu quả khu vực nền móng, hạn chế tác động của thời tiết và nâng cao độ bền cho ngôi nhà 2 tầng mái Nhật tân cổ điển.
Với Maxhome, mỗi thiết kế luôn được cân bằng hài hòa giữa hình thức và chất lượng, trong đó yếu tố bền vững được đặt song hành cùng giá trị thẩm mỹ để tạo nên những công trình có chiều sâu, đáp ứng tốt nhu cầu sử dụng lâu dài và giữ trọn giá trị theo thời gian.

Ban công bán nguyệt của ngôi nhà gây ấn tượng mạnh bởi đường cong mềm mại, tạo điểm nhấn duyên dáng và giúp mặt tiền trở nên thanh thoát, cuốn hút hơn. Hệ lan can sắt mỹ thuật được gia công tinh xảo với họa tiết uốn lượn nhẹ nhàng, vừa đảm bảo an toàn vừa tôn lên vẻ sang trọng, đậm chất nghệ thuật cho không gian ngoại thất.
Từ ban công, gia chủ có thể ngắm nhìn ra cảnh quan xung quanh, tận hưởng những khoảnh khắc thư giãn ngoài trời thoáng đãng và yên bình. Phía trên, hệ lam kính che nắng không chỉ góp phần hoàn thiện diện mạo kiến trúc hiện đại mà còn giúp điều tiết ánh sáng, giảm bức xạ nhiệt, mang lại sự dễ chịu khi sử dụng ban công vào nhiều thời điểm trong ngày.

Công trình được xây dựng theo hướng Đông, đón trọn ánh sáng tự nhiên vào buổi sáng, giúp không gian bên trong luôn thông thoáng, mát mẻ và tốt cho sinh hoạt hằng ngày.
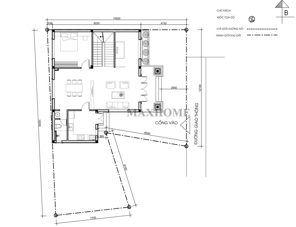
Với kích thước xây dựng 11,7 x 10,9m, ngôi nhà sở hữu mặt bằng vuông vức, thuận lợi cho việc bố trí công năng khoa học và tối ưu diện tích sử dụng. Tổng diện tích sử dụng của hai tầng khoảng 165m², đáp ứng đầy đủ nhu cầu sinh hoạt tiện nghi cho gia đình, đồng thời vẫn đảm bảo sự rộng rãi, thoải mái và tính thẩm mỹ lâu dài.

Từ sảnh chính bước vào, phòng khách mở ra với không gian rộng rãi, thoáng sáng, được bố trí nội thất sang trọng và hài hòa, thể hiện rõ gu thẩm mỹ cùng sự hiếu khách của gia chủ. Liên thông về phía bên trái là khu vực phòng thờ, được sắp xếp trang nghiêm, kín đáo nhưng vẫn đảm bảo sự kết nối thuận tiện trong tổng thể mặt bằng.
Lối đi từ sảnh phụ dẫn thẳng vào khu bếp và phòng ăn, thiết kế theo không gian mở giúp không khí lưu thông tốt, mang lại cảm giác mát mẻ, dễ chịu và thuận tiện trong sinh hoạt hằng ngày. Ngoài ra, tầng 1 còn được bố trí thêm một phòng ngủ cùng một nhà vệ sinh chung, đáp ứng đầy đủ nhu cầu sử dụng cho gia đình và khách đến thăm.












