Nhà 2 tầng hiện đại sức chứa 5 phòng ngủ cho đại gia đình sinh sống | MH06072
| Chủ đầu tư: Chị Tri | Số tầng: 2 |
| Địa chỉ: Hải Phòng | Diện tích xây dựng: 8 x 12,9m |
| Loại hình: Nhà mái bằng hiện đại | Tổng diện tích: 195m2 |
Công năng:
|
|
Maxhome giới thiệu tới bạn mẫu nhà 2 tầng hiện đại của gia đình chị Tri tại Hải Phòng là một công trình kiến trúc xây dựng nhà ở mang phong cách hiện đại, phóng khoáng kết hợp hoàn mỹ giữa hơi thở nhà phố thời thượng và sự rộng rãi của những căn nhà vườn ven đô. Ngay khi bản vẽ được hoàn thành, gia đình chị Tri cũng sớm chốt ngay bản vẽ vì mọi người đều yêu thích và ưng ý, mời bạn cùng tham khảo nhé!
Trong xu hướng kiến trúc đương đại, việc tìm kiếm một không gian vừa mang nét sắc sảo của phố thị vừa giữ được sự bình yên và thoáng đãng như một căn nhà vườn là điều không hề dễ dàng. Tuy nhiên, đội ngũ thiết kế Maxhome đã thực hiện điều đó một cách xuất sắc và tạo nên một bản vẽ nhà 2 tầng hiện đại tại Hải Phòng dành cho gia đình chị Tri

Công trình hiện đại sở hữu những đường nét hình khối vuông vức, dứt khoát, toát lên vẻ đẹp mạnh mẽ và độc bản. Với sức chứa lên đến 5 phòng ngủ, đây chính là giải pháp an cư hoàn hảo cho những đại gia đình đông thành viên nhưng vẫn mong muốn mỗi cá nhân có một khoảng trời riêng tư, đẳng cấp.

Điểm đắt giá nhất của căn nhà 2 tầng hiện đại này chính là sự đầu tư tỉ mỉ vào vị trí mặt tiền. Chị Tri là một người có gu thẩm mỹ tinh tế nên đã yêu cầu ngôi nhà phải toát lên được cá tính riêng và không lẫn lộn với những công trình xung quanh. Sau khi bàn bạc, bản thiết kế ngoại thất đã được tạo nên hoàn chỉnh, công trình sử dụng các loại gạch ốp trang trí cao cấp với hai tông màu chủ đạo xám hiện đại và nâu giả gỗ.

Một chi tiết khiến bất cứ ai đi ngang qua cũng phải ngoái nhìn chính là mảng đá xám tự nhiên được ốp chạy dọc từ chân công trình lên đến tận mái. Cách xử lý này tạo hình dáng như một ống khói giả giúp ngôi nhà trông cao ráo và bề thế hơn hẳn.
Khác với những mẫu nhà tân cổ điển với hoa văn uốn lượn cầu kỳ, mẫu nhà 2 tầng hiện đại này sử dụng hệ lan can bằng thép sơn tĩnh điện. Các thanh sắt được sắp xếp ngang dọc khỏe khoắn đảm bảo an toàn tuyệt đối và tạo ra sự thông thoáng, giúp luồng gió tự nhiên dễ dàng len lỏi vào từng ngóc ngách bên trong.

Sự sang trọng của mẫu nhà 2 tầng hiện đại còn được khẳng định ngay từ ánh nhìn đầu tiên nhờ hệ thống cổng rào và tường bao thiết kế đồng bộ, tinh xảo. Cổng chính gây ấn tượng mạnh với những nan sắt sơn giả gỗ đan chéo độc đáo kết hợp cùng khung sắt đen huyền bí vừa kín đáo vừa đầy sức lôi cuốn. Đi cùng với đó là hệ tường rào sử dụng gạch bông gió trắng tinh khôi xen kẽ các mảng ốp gỗ ấm áp, tạo nên một bức tranh ngoại thất hoàn mỹ và tôn vinh trọn vẹn vẻ đẹp đẳng cấp của ngôi nhà.


Để hoàn thiện diện mạo cá tính và thời thượng, hệ mái bằng đã được lựa chọn làm mảnh ghép cuối cùng cho tổng thể kiến trúc nhà 2 tầng hiện đại. Đây không chỉ là đặc điểm nhận diện tiêu biểu của phong cách hiện đại giúp tối ưu hóa chi phí xây dựng mà còn mở ra một khoảng không gian giá trị trên cao. Tại đây, gia đình chị Tri có thể linh hoạt biến tấu thành một khu vườn trên không xanh mát hoặc không gian giải trí ngoài trời đầy lý tưởng và mang đến những trải nghiệm sống thư thái giữa lòng phố thị.

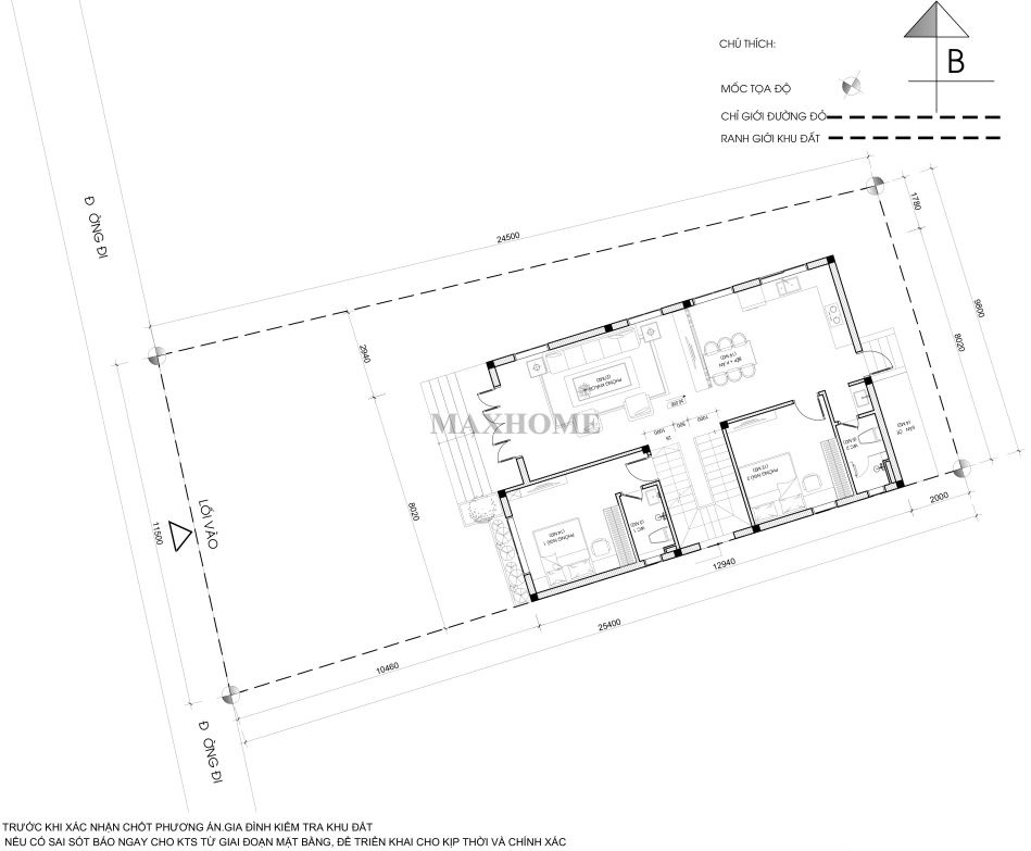
Nhìn vào bản vẽ tổng thể, ta có thể thấy được tư duy quy hoạch không gian cực kỳ sắc sảo của đội ngũ thiết kế trên khu đất có chiều dài hơn 25m. Ngôi nhà 2 tầng sở hữu khoảng sân trước rộng rãi tạo bước đệm ngăn cách tiếng ồn và khói bụi từ đường lớn. Mọi chi tiết từ lối vào, khu vực sân ướt cho đến các khoảng lùi kỹ thuật đều được tính toán tỉ mỉ giúp mẫu nhà 2 tầng hiện đại này có một không gian sống hoàn hảo, đáp ứng trọn vẹn nhu cầu của một đại gia đình đa thế hệ.

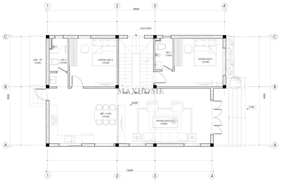
Bước qua sảnh chính, tầng 1 của căn nhà mở ra một không gian sống tập trung và đề cao sự kết nối giữa các thành viên. Phòng khách rộng lớn 27m2 được thiết kế liên thông với khu vực bếp 19m2 tạo nên một trục cảnh quan xuyên suốt giúp không gian trở nên cực kỳ thoáng đạt và ngập tràn ánh sáng tự nhiên. Sự tinh tế còn nằm ở việc bố trí khéo léo 2 phòng ngủ 12m2 và 14m2 tại các góc yên tĩnh, đảm bảo sự riêng tư tối đa cho người lớn tuổi hoặc khách ghé thăm và đi kèm với hệ thống vệ sinh được đặt ở vị trí thuận tiện nhất cho sinh hoạt chung.

Lên đến tầng 2, không gian được phân chia khoa học để phục vụ nhu cầu nghỉ ngơi và tâm linh của đại gia đình chị Tri. Khu vực này sở hữu thêm 3 phòng ngủ riêng biệt, trong đó có phòng ngủ lớn và các phòng ngủ nhỏ hơn được bố trí quanh phòng sinh hoạt chung 11m2. Cuối cùng, phòng thờ 8m2 được đặt ở vị trí trang trọng nhất hướng ra ban công, đảm bảo yếu tố phong thủy và đón nhận sự thông thoáng, trang nghiêm cho khu vực thờ tự của gia đình.











