Nhà phố 2 tầng 1 tum đẳng cấp do Maxhome thiết kế hiện đại và tinh tế | MH05568
| Chủ đầu tư: Chị Nguyễn Thị Thuý | Số tầng: 2 tầng 1 tum |
| Địa chỉ: Quỹ Nhất, Ninh Bình | Diện tích xây dựng: 7 x 14m |
| Loại hình: Nhà mái bằng hiện đại | Tổng diện tích: 217m2 |
Công năng:
|
|
Ninh Bình là một mảnh đất đẹp nên thơ với nhiều danh thắng cảnh nổi tiếng, các khu dân cư gần đó cũng ngày càng phát triển và đổi mới. Bắt kịp theo xu hướng, Maxhome cũng được nhiều gia chủ tại khu vực Nam Định liên hệ để thiết kế và thi công trọn gói. Mẫu nhà đẹp hôm nay thuộc dạng mẫu nhà phố 2 tầng 1 tum hiện đại, đẳng cấp và tinh tế trong từng nét vẽ.
Căn nhà phố 2 tầng 1 tum nổi bật với thiết kế ngoại thất đa sắc màu từ gạch ốp lát, màu sơn và các vật liệu kiến trúc ngoại thất khác. Điểm nhấn rõ nhất là chi tiết tường ốp lam nhựa giả gỗ chạy dọc từ tầng 1 tới lan can tầng tum giúp phân chia bố cục rõ ràng nhưng đồng thời cũng tạo sự kết nối thiết kế được liền mạch.

Mảng tường sơn trắng bên cạnh cũng được tạo đường kẻ chỉ thẳng chạy ở giữa và cắt vuông góc với nhau, tạo ra hình khối kiến trúc hình học độc đáo, sáng tạo trong thiết kế mẫu nhà phố đẹp này. Ở vị trí sảnh chính, tường ốp gạch giả đá giúp giảm trọng tải đá tự nhiên thật mà vẫn giữ được nét sang trọng và hạn chế được việc bụi bám bẩn lên tường.

Ngoại thất của công trình nhà phố 2 tầng 1 tum này mang đậm tinh thần hiện đại, tối giản nhưng vô cùng tinh tế được Maxhome khéo léo kết hợp giữa hình khối mạnh mẽ và những chi tiết mềm mại. Toàn bộ hệ cửa sử dụng khung nhôm kính xingfa cao cấp, đảm bảo độ bền và giúp không gian bên trong luôn tràn ngập ánh sáng tự nhiên. Những ô cửa kính lớn ở cả tầng 1, tầng 2 và tầng tum mở ra tầm nhìn thoáng đãng, gần gũi với thiên nhiên và đồng thời góp phần làm nổi bật vẻ sang trọng của ngôi nhà.


Mặt sau của ngôi nhà phố 2 tầng 1 tum tuy đã giản lược về chi tiết nhưng vẫn chú trọng tính thực tế. Các ô cửa kính được bố trí hợp lý và lắp khung bảo vệ chắc chắn để lấy sáng cho không gian bên trong cũng như đảm bảo an toàn. Hệ mái bằng kết hợp tum nhỏ không chỉ mang lại vẻ đẹp khỏe khoắn, vuông vức mà còn tăng thêm công năng sử dụng giúp gia chủ có thêm diện tích để phơi phóng.

Ở tầng 2, ban công rộng được thiết kế lan can kính trong suốt kết hợp khung kim loại tối giản, thanh thoát. Gia chủ hoàn toàn có thể tận dụng nơi đây để bố trí bàn ghế nhỏ, trồng cây xanh để biến thành góc thư giãn lý tưởng. Lên đến tầng 3, không gian ban công được mở rộng hơn kết hợp cùng hệ mái che khung thép sơn tĩnh điện và kính cường lực vừa chắn nắng mưa vừa giữ được sự thông thoáng. Đây cũng là khoảng sân thượng nhỏ đủ để gia đình bố trí tiểu cảnh và một bàn trà ngoài trời.


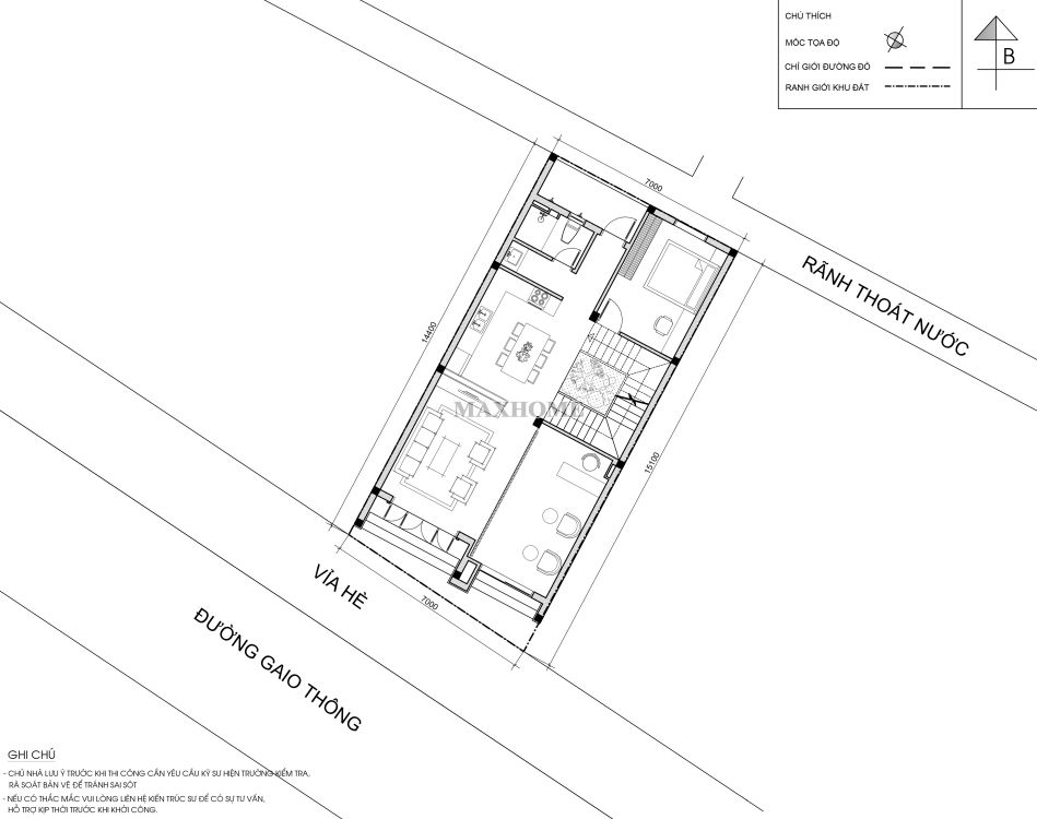
Tầng 1 được xem là không gian sinh hoạt chung quan trọng nhất với nhiều phòng chức năng. Ngay từ cửa chính bước vào là phòng khách 16m2 rộng rãi đóng vai trò trung tâm kết nối. Bên cạnh đó, tầng này còn có một phòng spa nhỏ kinh doanh tại nhà để tăng thêm thu nhập cho gia đình.

Khu bếp và phòng ăn được bố trí phía trong ngay phía sau kệ TV giúp thuận tiện nấu nướng mà vẫn đảm bảo sự riêng tư. Ngoài ra, tầng 1 còn có 1 phòng ngủ 12m2 đặt gần cầu thang và khu vực vệ sinh chung. Cuối nhà là khu vực sân ướt giúp việc giặt giũ, dọn dẹp trở nên thuận tiện hơn mà không ảnh hưởng đến các không gian khác.

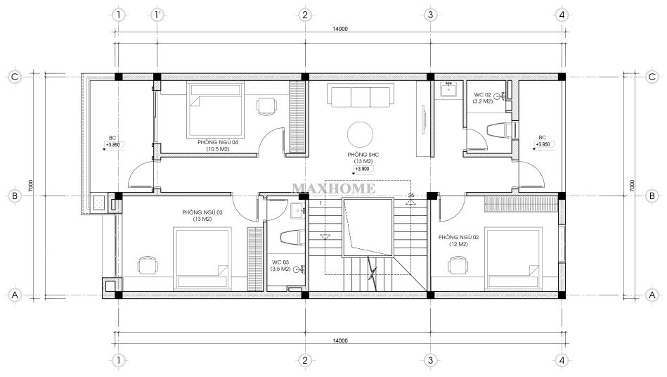
Lên đến tầng 2, không gian sinh hoạt chung tiếp tục được mở rộng và đa dạng hơn. Phòng sinh hoạt chung 13m2 được bố trí ngay trung tâm, nơi cả gia đình quây quần, trò chuyện và giải trí cùng nhau. Tầng này có tổng cộng 3 phòng ngủ được sắp xếp hợp lý để mang đến sự riêng tư và thoải mái cho từng thành viên. Hai nhà vệ sinh được thiết kế xen kẽ để đảm bảo sự tiện nghi và hạn chế tình trạng chờ đợi khi sử dụng. Nhờ cách bố trí hợp lý, tầng 2 trở thành khu vực nghỉ ngơi lý tưởng, cân bằng giữa sự riêng tư và tính gắn kết của gia đình.

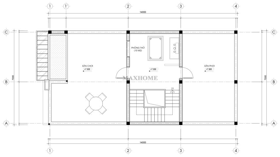
Tầng tum được thiết kế như một khoảng không gian mở giúp đáp ứng nhu cầu tâm linh và phục vụ sinh hoạt hàng ngày. Phòng thờ 10m2 được đặt ở vị trí trang trọng và yên tĩnh thể hiện sự tôn kính của gia đình đối với tổ tiên. Bên cạnh đó, sân chơi được bố trí rộng rãi phù hợp để gia đình tổ chức những hoạt động ngoài trời, tập thể dục hay đơn giản là ngồi thư giãn, tận hưởng không khí trong lành. Cuối cùng là khu vực sân phơi tiện dụng giúp việc giặt giũ và phơi đồ trở nên dễ dàng hơn.











