Siêu phẩm nhà mái Nhật 2 tầng Tân Cổ Điển tại Hải Phòng |MH46364
| Chủ đầu tư: Anh Anh | Số tầng: 2 |
| Địa chỉ: Hải Phòng | Diện tích xây dựng: 11,4x14,3m |
| Loại hình: Nhà 2 tầng mái Nhật tân cổ điển | Tổng diện tích: 240m2 |
| Công năng:
|
|
Bạn đang tìm kiếm một không gian sống vừa mang nét hoài cổ, tinh tế vừa sang trọng hiện đại, đầy đủ tiện nghi? Mẫu nhà 2 tầng mái Nhật tân cổ điển chính là sự lựa chọn hoàn hảo mà bạn đang tìm kiếm. Với sự lược bỏ các chi tiết rườm rà, tập trung vào hình khối và tỷ lệ cân xứng cho ngôi nhà, mời bạn cùng chiêm ngưỡng mẫu nhà đẹp của gia đình anh Anh tại Hải Phòng – một công trình tiêu biểu thể hiện rõ đẳng cấp và dấu ấn cá nhân của gia chủ.
Mẫu nhà 2 tầng mái Nhật tân cổ điển đang trở thành xu hướng thiết kế hàng đầu năm 2026 nhờ sự kết hợp hoàn hảo giữa vẻ đẹp sang trọng, quý phái của kiến trúc châu Âu và sự thanh thoát, tối giản của hệ mái Nhật. Bên cạnh yếu tố thẩm mỹ, mái Nhật còn có khả năng thoát nước tốt, chống nóng hiệu quả và phù hợp với điều kiện khí hậu Việt Nam. Chính vì vậy, dù xu hướng thay đổi theo thời gian, dòng nhà mái Nhật vẫn luôn là lựa chọn đáng cân nhắc cho những gia đình mong muốn một không gian sống bền vững và tinh tế.

Khác với mái Thái có độ dốc lớn, mái Nhật thường có độ dốc hài hòa vừa phải, giúp thoát nước tốt và tạo cảm giác bề thế nhưng vẫn rất gần gũi. Lợi thế mặt tiền ngôi nhà rộng 9m giúp công trình phô diễn trọn vẹn tỷ lệ kiến trúc chuẩn mực, mở ra không gian sống thoáng đãng và bề thế, tựa như phong cách biệt thự nghỉ dưỡng. Hệ phào chỉ được điêu khắc tinh xảo kết hợp các đường cong mềm mại bố trí hài hòa, mang đến chiều sâu cho mặt đứng và tạo nên diện mạo thanh lịch, đẳng cấp theo tinh thần tân cổ điển đương đại.

Mẫu nhà 2 tầng mái Nhật sử dụng gam màu trắng làm chủ đạo, tạo nên tổng thể thanh lịch, tinh tế và đặc biệt phù hợp với phong cách kiến trúc tân cổ điển. Sắc trắng không chỉ giúp tôn lên các đường nét thiết kế mà còn mang lại cảm giác nhẹ nhàng, sang trọng và bền vững theo thời gian. Sự kết hợp hài hòa giữa mái Nhật thanh thoát và các yếu tố tân cổ điển đã tạo nên diện mạo bề thế, đẳng cấp nhưng vẫn giữ được nét gần gũi, phù hợp với điều kiện khí hậu và thẩm mỹ của nhiều gia đình Việt.

Mặt tiền được chăm chút kỹ lưỡng với hệ cột trụ vuông vức, vững chãi, kết hợp cùng các đường phào chỉ tinh xảo mang đậm nét tân cổ điển. Ở khu vực ban công tầng 2 sử dụng lan can sắt mỹ thuật uốn hoa văn rất tinh tế, tạo điểm nhấn mềm mại giữa tổng thể kiến trúc mạnh mẽ. Đặc biệt, phần ban công cong ở phía bên phải giúp tăng thêm sự duyên dáng và khác biệt cho ngôi nhà.
Cửa chính được sử dụng bằng gỗ tự nhiên mang lại cảm giác ấm cúng, sang trọng, kết hợp với hệ cửa sổ kính khung tối màu giúp tận dụng tối đa ánh sáng tự nhiên, đồng thời tạo sự thông thoáng hơn cho không gian bên trong.

Hệ bậc ngũ cấp được thiết kế cao ráo, cân đối, góp phần tôn lên vẻ bề thế và uy nghi cho tổng thể công trình. Xung quanh nhà là không gian sân vườn xanh mát, góp phần tạo nên môi trường sống trong lành và gần gũi với thiên nhiên. Ở khu vực sân được lát gạch rộng rãi, vừa đảm bảo tính thẩm mỹ vừa thuận tiện cho việc di chuyển và sinh hoạt ngoài trời. Hệ thống tường rào trắng bao quanh đồng bộ với kiến trúc chính, mang lại cảm giác riêng tư và an toàn.

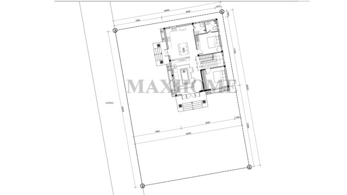
Quan sát trên bản vẽ mặt bằng định vị có thể thấy mẫu nhà 2 tầng mái Nhật phong cách tân cổ điển sở hữu kích thước xây dựng 11,4 x 14,3m, tạo nên hình khối cân đối và bề thế. Với quy mô này, công trình đáp ứng tốt nhu cầu bố trí công năng rộng rãi, thoải mái cho gia đình nhiều thế hệ sinh sống. Bên cạnh diện tích xây dựng chính, diện tích đất còn lại rất rộng rãi để thiết kế thêm sân vườn. Khoảng không gian này có thể tận dụng làm tiểu cảnh, khu vực trồng cây xanh, chòi nghỉ hoặc sân chơi ngoài trời, góp phần nâng cao chất lượng sống và tạo sự kết nối hài hòa giữa kiến trúc và thiên nhiên.

Mẫu 2 tầng mái Nhật tân cổ có hệ thống sảnh rộng rãi giúp lưu thông không khí cực tốt. Sảnh chính dẫn trực tiếp vào phòng khách, sảnh phụ dẫn vào khu vực bếp ăn, giúp việc đi lại thuận tiện mà không ảnh hưởng đến không gian tiếp khách.Tầng này còn có 2 phòng ngủ được sắp xếp hợp lý, đảm bảo sự riêng tư và yên tĩnh. Cuối nhà là khu vệ sinh chung, đặt tại vị trí thuận tiện cho việc sử dụng mà vẫn đảm bảo tính kín đáo và thẩm mỹ cho tổng thể mặt bằng.

Tầng 2 được bố trí không gian phòng thờ trang nghiêm tại vị trí phù hợp phong thủy của chủ nhà, đảm bảo sự yên tĩnh và tách biệt với khu vực sinh hoạt chung. Thiết kế phòng thờ chú trọng yếu tố thông thoáng, ánh sáng tự nhiên vừa phải, tạo cảm giác ấm cúng và thành kính.
Khu vực nghỉ ngơi gồm 3 phòng ngủ được sắp xếp khoa học, tối ưu diện tích sử dụng và đảm bảo sự riêng tư cho từng thành viên trong gia đình. Các phòng đều ưu tiên bố trí cửa sổ để tăng cường lưu thông không khí và đón sáng tự nhiên, giúp không gian luôn thoải mái, dễ chịu. Cuối hành lang là 1 phòng vệ sinh chung, đặt ở vị trí thuận tiện cho việc di chuyển và sử dụng của các thành viên trong gia đình. Phía sau phòng ngủ 5 là khu vực giặt đồ và sân phơi, KTS Maxhome thiết kế đảm bảo tính gọn gàng và hợp lý trong tổng thể mặt bằng tầng 2.











