Sở hữu mẫu nhà 2 tầng tân cổ điển 4 phòng ngủ nổi bật đến từ Maxhome | MH04018
| Chủ đầu tư: Anh Dương Văn Mai | Số tầng: 2 |
| Địa chỉ: Ngũ Hiệp, Cai Lậy, Tiền Giang | Diện tích xây dựng: 10,7 x 16,3m |
| Loại hình: Nhà mái Nhật tân cổ điển | Tổng diện tích: 190m2 |
Công năng:
|
|
Mẫu nhà 2 tầng tân cổ điển 4 phòng ngủ đến từ Maxhome là một kiệt tác của sự sang trọng và niềm tự hào của gia đình anh Mai ở Cai Lậy, Tiền Giang. Với những đường nét mềm mại hòa quyện cùng hình khối vững chãi, ngôi nhà mang trong mình hơi thở của sự cổ điển quý phái nhưng vẫn thấm đẫm tinh thần hiện đại. Cùng Maxhome khám phá chi tiết bản vẽ nhà đẹp này nhé!
Với hình ảnh đầu tiên, mẫu nhà 2 tầng tân cổ điển 4 phòng ngủ đã gây ấn tượng mạnh mẽ nhờ hình khối vững chãi và cân đối. Màu sơn trắng chủ đạo được sử dụng cho toàn bộ tường ngoài giúp mang lại sự sang trọng và tạo nền hoàn hảo để làm nổi bật các chi tiết trang trí như gờ phào, chỉ nổi và hệ mái Nhật. Đây là gam màu được ưa chuộng trong phong cách tân cổ điển bởi nó gợi sự tinh khôi, bền vững và không bao giờ lỗi thời.

Phần chân tường và chân cột được ốp đá ghép theo chỉ định, mỗi lớp ốp đá không chỉ giúp công trình thêm phần chắc chắn, sang trọng mà còn có tác dụng chống bám bẩn, chống ẩm mốc và kéo dài tuổi thọ cho ngôi nhà. Hệ cột trụ lớn đặt tại mặt tiền cũng thể hiện được sự bề thế và tạo điểm nhấn mạnh mẽ của kiến trúc tân cổ điển.

Một trong những chi tiết khiến mẫu nhà 2 tầng tân cổ điển 4 phòng ngủ trở nên nổi bật chính là việc ứng dụng gờ ngắt nước từ mái chảy xuống giúp tạo hiệu ứng thẩm mỹ mà lại đảm bảo độ bền cho công trình. Cùng với đó, hệ cửa sổ được thiết kế chỉ lồi 100x50mm xung quanh tạo khung viền sắc sảo đã mang lại sự khỏe khoắn cho từng chi tiết kiến trúc.

Cửa chính và cửa sảnh phụ sử dụng chất liệu thép vân gỗ mang đến sự sang trọng và cảm giác gần gũi như gỗ tự nhiên nhưng bền bỉ và chống cong vênh tốt hơn. Các ô cửa sổ bằng nhôm hệ kính dày không chỉ giúp lấy sáng tối đa cho không gian bên trong mà còn tạo nên một vẻ đẹp hiện đại và đồng bộ với tổng thể công trình.

Ngoài ra, chi tiết ban công bán nguyệt đua ra 1m là một điểm nhấn vô cùng tinh tế. Sự mềm mại của đường cong bán nguyệt kết hợp cùng ô cửa vòm phía trên mang lại vẻ đẹp khác biệt và gợi cảm giác sang trọng như những công trình kiến trúc châu Âu. Lan can ban công được thiết kế bằng kim loại hoa văn tinh xảo phủ màu vàng ánh kim tạo thêm nét quý phái và nâng tầm giá trị thẩm mỹ cho toàn bộ ngôi nhà 2 tầng tân cổ điển 4 phòng ngủ.

Bên cạnh khối nhà chính, mẫu nhà 2 tầng tân cổ điển 4 phòng ngủ còn có công trình phụ là phòng bếp được thiết kế nối liền. Cách bố trí này không chỉ giúp mở rộng không gian sinh hoạt chung cho gia đình anh Mai mà còn tạo sự tiện nghi và thuận tiện trong quá trình sử dụng. Đồng thời, sự kết nối liền mạch này giúp tổng thể mẫu nhà đẹp trở nên hoàn chỉnh, hài hòa và đồng bộ hơn.

Tổng thể khu đất căn nhà 2 tầng tân cổ điển 4 phòng ngủ của anh Mai được Maxhome phác hoạ lại rất rõ ràng. Từ cổng vào là khoảng sân rộng rãi tiếp nối với khuôn viên xanh trồng cây ở phía sau nhà giúp tạo sự cân bằng giữa kiến trúc và thiên nhiên. Ngôi nhà 2 tầng được bố trí gọn gàng trong khu đất hình chữ nhật nên sẽ rất thuận tiện trong di chuyển và đồng thời đảm bảo yếu tố phong thủy với sự thông thoáng trước nhà.

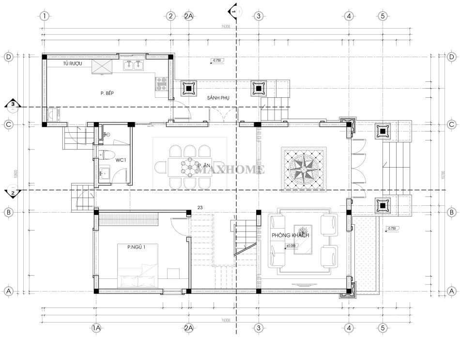
Mặt bằng tầng 1 thể hiện rõ công năng sinh hoạt chính của gia đình. Ngay khi bước vào là khoảng đệm lớn có lát gạch hoa văn, cạnh đó là phòng khách với bộ bàn ghế sang trọng. Đi tiếp vào bên trong là phòng ăn rộng rãi với bộ bàn ghế 8 chỗ ngồi, tại vị trí này kết nối liền với phòng bếp và sảnh phụ giúp không gian trở nên liền mạch và thuận lợi cho sinh hoạt chung. Một phòng ngủ được bố trí ở góc phía sau nhà để đảm bảo sự yên tĩnh cho không gian nghỉ ngơi riêng tư. Phòng bếp được thiết kế tách riêng về phía sau được lắp đặt cửa kính đẩy, bên trong có thêm khu vực tủ rượu tiện nghi và sang trọng.

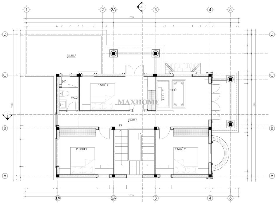
Tầng 2 có tổng cộng 3 phòng ngủ được sắp xếp cân đối hai bên cầu thang trung tâm tạo sự riêng tư và thuận lợi cho các thành viên. Phòng thờ nằm ở phía trước hướng ra ban công bán rộng giúp đón được ánh sáng và gió tự nhiên. Ngoài ra, tầng 2 còn có 1 nhà vệ sinh chung được bố trí cuói hành lang để phục vụ sinh hoạt của cả gia đình anh Mai.











