Sở hữu ngay bản vẽ biệt thự vườn đỉnh nóc kịch trần với giá ưu đãi cực hời | MH06082

Chủ đầu tư: Anh Nguyễn Minh Luân Số tầng: 1
Địa chỉ: Ngọc Tuấn, Cái Nước, Cà Mau Diện tích xây dựng: 10,2 x 18,6m
Loại hình: Biệt thự vườn mái Nhật tân cổ điển Tổng diện tích: 207m2
Công năng:

Phòng khách, phòng thờ, phòng bếp, 4 phòng ngủ, 5 wc

Đáp ứng mong mỏi về một không gian sống vừa giao hòa với thiên nhiên vừa mang cốt cách sang trọng của một dinh thự quyền quý, bản vẽ thiết kế biệt thự vườn của anh Luân tại Cà Mau là một kiệt tác kiến trúc đỉnh nóc kịch trần mà bất cứ chủ đầu tư nào cũng khao khát sở hữu. Với kích thước xây dựng lý tưởng 10,2×18,6m trên tổng diện tích sử dụng lên tới 207m2, công trình hiện lên như một khối ngọc trắng muốt giữa không gian xanh mướt của vùng đất mũi, mang lại một diện mạo đầy kiêu hãnh và uy nghiêm.

Điểm chạm đầu tiên chinh phục mọi ánh nhìn chính là hệ thống bậc thềm được thiết kế vô cùng kỳ công và khác biệt. Thay vì những bậc tam cấp thông thường, đội ngũ thiết kế Maxhome đã khéo léo nâng cos nền nhà của căn biệt thự vườn lên độ cao ấn tượng 1,35m và tạo thành 9 bậc thang dẫn lối vào sảnh chính. Con số 9 mang ý nghĩa phong thủy về sự trường cửu, vĩnh cửu và đồng thời giúp công trình trở nên cao ráo, bề thế hơn hẳn so với các kiến trúc xung quanh.

so-huu-ngay-ban-ve-biet-thu-vuon-dinh-noc-kich-tran-voi-gia-uu-dai-cuc-hoi-1

Toàn bộ phần chân đế và các bậc thềm được ốp đá chẻ tự nhiên với gam màu trầm tối giúp tạo nên sự vững chãi, kiên cố và đóng vai trò như một lớp giáp bảo vệ công trình khỏi các tác động của thời tiết và độ ẩm, giữ cho vẻ đẹp của biệt thự luôn vẹn nguyên theo năm tháng. Sự quyền quý của mẫu biệt thự vườn này còn được thể hiện qua nghệ thuật sắp đặt hình khối và chi tiết phào chỉ đặc trưng của phong cách tân cổ điển.

so-huu-ngay-ban-ve-biet-thu-vuon-dinh-noc-kich-tran-voi-gia-uu-dai-cuc-hoi-8

Gam màu trắng trang nhã được chọn làm chủ đạo làm tôn lên những đường nét chạm trổ tinh xảo và các chi tiết phào vòm cong mềm mại. Đặc biệt, khu vực vòm mái sảnh được nhấn nhá bằng lớp sơn giả đá màu vàng hoàng gia mang tới sự tương phản đầy quý phái dưới ánh nắng. Bên cạnh đó, hệ cột sảnh vuông vắn, khỏe khoắn với những đường rãnh soi dọc tinh tế đã nâng đỡ toàn bộ mái hiên và còn được gắn thêm hệ thống đèn trang trí ngoại thất tỏa ánh sáng vàng ấm áp, khiến căn biệt thự đẹp trở nên lung linh, lộng lẫy như một cung điện khi màn đêm buông xuống.

so-huu-ngay-ban-ve-biet-thu-vuon-dinh-noc-kich-tran-voi-gia-uu-dai-cuc-hoi-10

Tại các góc tường, sự hiện diện của các cột giả được đắp nổi tỉ mỉ giúp xóa bỏ sự đơn điệu của những diện tường phẳng và làm tăng thêm nét kiến trúc điển hình, đầy tính nghệ thuật. Không dừng lại ở đó, hệ sảnh phụ cũng được chăm chút kỹ lưỡng và thiết kế đồng nhất về phong cách lẫn đẳng cấp như sảnh chính để tạo nên một sự kết nối không gian hoàn hảo và thuận tiện trong sinh hoạt.

so-huu-ngay-ban-ve-biet-thu-vuon-dinh-noc-kich-tran-voi-gia-uu-dai-cuc-hoi-12

Các ô cửa sổ cũng là một điểm nhấn không thể bỏ qua với hệ phào bao quanh chỉn chu kết hợp cùng chất liệu kính cường lực cao cấp giúp đón trọn ánh sáng tự nhiên vào bên trong. Ngước mắt lên cao, hệ mái Nhật màu xanh than lịch lãm hiện ra với độ dốc được tính toán chuẩn xác để thoát nước nhanh và điều hòa nhiệt độ tối ưu. Những ô cửa sổ mái nhỏ nhắn được bố trí tinh tế trên mái tạo điểm nhấn kiến trúc mang hơi thở châu Âu và giúp không gian phía dưới luôn thông thoáng, tràn đầy sinh khí.

so-huu-ngay-ban-ve-biet-thu-vuon-dinh-noc-kich-tran-voi-gia-uu-dai-cuc-hoi-11

so-huu-ngay-ban-ve-biet-thu-vuon-dinh-noc-kich-tran-voi-gia-uu-dai-cuc-hoi-9

Vẻ đẹp hoàn mỹ của căn biệt thự vườn anh Luân còn được bao bọc bởi hệ thống cổng và tường rào được thiết kế đo ni đóng giày cho một gia đình khá giả. Cánh cổng nhôm đúc với những họa tiết hoa văn cầu kỳ dát ánh kim sang trọng chính là lời khẳng định về đẳng cấp của gia chủ ngay từ cái nhìn đầu tiên. Tường bao được thiết kế vững chãi nhưng không hề thô cứng nhờ các khoảng thoáng trang trí bằng sắt mỹ nghệ đồng điệu với cổng chính.

so-huu-ngay-ban-ve-biet-thu-vuon-dinh-noc-kich-tran-voi-gia-uu-dai-cuc-hoi-13
Mặt bằng định vị công trình

Bản vẽ quy hoạch tổng thể cho thấy tư duy thiết kế thực dụng và hài hòa khi đặt công trình biệt thự vườn trên một khuôn viên đất rộng lớn có kích thước 30x60m. Căn biệt thự với chiều dài 18,6m được đặt khéo léo ở vị trí trung tâm, cách ranh giới đất phía trước một khoảng lùi lên đến 19,9m giúp tạo nên một khoảng sân vườn mênh mông phía trước để gia chủ có thể thoải mái bố trí tiểu cảnh hoặc bãi đỗ xe. Phía sau nhà vẫn giữ được khoảng cách 17,2m so với ranh giới đất để đảm bảo sự thông thoáng tuyệt đối cho mọi mặt của công trình.

so-huu-ngay-ban-ve-biet-thu-vuon-dinh-noc-kich-tran-voi-gia-uu-dai-cuc-hoi-14
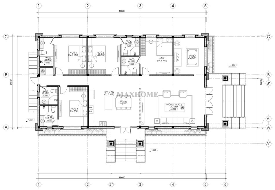
Mặt bằng bố trí công năng biệt thự vườn

Bước vào bên trong, tâm điểm của ngôi nhà là khu vực phòng khách rộng lớn 40m2 kết nối liền mạch với khu vực bếp và phòng ăn ấm cúng có diện tích 31,5m2. Không gian tâm linh được ưu tiên đặt tại vị trí trang trọng với phòng thờ rộng 14m2. Hệ thống nghỉ ngơi bao gồm 4 phòng ngủ được bố trí dọc theo các trục hành lang, trong đó, ba phòng ngủ đầu tiên có diện tích đồng nhất 14,8m2 và phòng ngủ 4 rộng 14m2. Để đảm bảo sự tiện nghi vượt trội, công trình được trang bị tới 5 nhà vệ sinh bố trí khéo léo tại các khu vực riêng tư và chung, trong đó có những phòng vệ sinh khép kín ngay trong phòng ngủ giúp tối ưu hóa trải nghiệm sống thượng lưu cho từng thành viên.

Yêu cầu tư vấn

    *Vui lòng để lại thông tin, nhân viên tư vấn sẽ liên hệ lại quý khách trong thời gian sớm nhất