Thiết kế 2 nhà phố 2 tầng 1 tum xây liền kề hiện đại, đồng bộ kiến trúc | MH05678
| Chủ đầu tư: Chú Trần Minh Hoàng | Số tầng: 3 |
| Địa chỉ: Hoà Khánh, Tây Ninh | Diện tích xây dựng: 4,9 x 13,3m |
| Loại hình: Nhà lô phố hiện đại | Tổng diện tích: 130m2 |
| Công năng:
Căn 1:
Căn 2:
|
|
Thiết kế 2 nhà phố 2 tầng 1 tum xây liền kề đang trở thành xu hướng phổ biến tại các khu đô thị hiện nay, đặc biệt phù hợp với những lô đất có diện tích vừa và hẹp ngang. Việc xây dựng hai căn nhà liền kề không chỉ giúp tối ưu quỹ đất, tiết kiệm chi phí thi công mà còn tạo nên tổng thể kiến trúc đồng bộ, hài hòa và hiện đại. Với quy mô 2 tầng 1 tum, các không gian chức năng được bố trí khoa học, đảm bảo sự tiện nghi, thông thoáng và đáp ứng tốt nhu cầu sinh hoạt của gia đình nhiều thế hệ trong môi trường đô thị đông đúc.
Mẫu nhà phố 2 tầng 1 tum dưới đây do Maxhome thiết kế theo mô hình 2 căn xây liền kề, mang đến tổng thể kiến trúc đồng bộ và hài hòa. Mỗi căn sở hữu mặt tiền rộng 4,9m, được tạo hình với các khối kiến trúc vuông vắn, khỏe khoắn, thể hiện rõ nét phong cách hiện đại và năng động. Việc sử dụng ngôn ngữ thiết kế tương đồng giữa hai căn không chỉ giúp công trình trở nên gọn gàng, thẩm mỹ hơn mà còn tối ưu quá trình thi công, tiết kiệm chi phí và phù hợp với đặc thù nhà phố tại khu vực đô thị.

Gam màu trắng được lựa chọn làm tông màu chủ đạo cho mẫu nhà phố 2 tầng 1 tum, mang lại cảm giác thanh lịch, hiện đại và giúp công trình trông rộng rãi, sáng thoáng hơn. Kết hợp cùng đó là các vật liệu trang trí cao cấp như gạch granite vân mây ốp mặt tiền, có khả năng hạn chế bám bẩn, dễ vệ sinh và nâng cao độ bền theo thời gian. Tại khu vực tầng 2, kiến trúc sư khéo léo sử dụng lam gỗ nhựa trang trí mặt tiền kết hợp bồn hoa xanh, không chỉ tạo điểm nhấn thẩm mỹ mà còn giúp cân bằng yếu tố xanh, mang lại sự mềm mại và gần gũi cho tổng thể kiến trúc nhà phố.

Quan sát từ góc nhìn này, có thể thấy nhà phố 2 tầng 1 tum thuộc dạng nhà xây liền kề nên không thể khai thác không gian thông thoáng ở hai bên hông. Vì vậy, các kiến trúc sư đã tập trung giải pháp lấy sáng và thông gió về phía cuối nhà, kết hợp bố trí các ô cửa và khoảng thoáng hợp lý. Đặc biệt, tại tầng 2 phía sau, công trình được thiết kế ban công với lan can bảo vệ, vừa giúp tăng khả năng lưu thông không khí, vừa tạo không gian thư giãn nhỏ, góp phần cải thiện chất lượng sống và đảm bảo sự thông thoáng cho toàn bộ ngôi nhà.

Quan sát từ góc nhìn trên cao, có thể thấy mẫu nhà phố 2 tầng 1 tum sở hữu không gian tầng tum rộng rãi, được khai thác linh hoạt cho nhiều mục đích sử dụng. Khu vực này cho phép bố trí cây cảnh, tiểu cảnh xanh, góp phần cải thiện vi khí hậu và mang lại cảm giác thư giãn cho gia đình. Đồng thời, kiến trúc sư đã đề xuất lắp đặt mái nhựa poly nhằm che chắn mưa nắng hiệu quả, vẫn đảm bảo khả năng lấy sáng tự nhiên, giúp tầng tum trở thành không gian sinh hoạt phụ tiện nghi và có giá trị sử dụng cao.

Mẫu nhà phố 2 tầng 1 tum sử dụng hệ mái bằng phẳng bằng bê tông cốt thép, mang phong cách hiện đại, gọn gàng và dễ dàng khai thác công năng phía trên. Đối với loại mái này, các kiến trúc sư và kỹ sư kết cấu cần tính toán chi tiết về tải trọng, khả năng chịu lực, lớp chống thấm và hệ thống thoát nước, nhằm đảm bảo sự an toàn, ổn định và độ bền lâu dài cho công trình. Bên cạnh đó, mái bằng còn tạo điều kiện thuận lợi cho việc bố trí không gian tum, sân thượng, lắp đặt hệ thống kỹ thuật hoặc cải tạo, nâng tầng trong tương lai, đáp ứng nhu cầu sử dụng linh hoạt của gia đình đô thị.

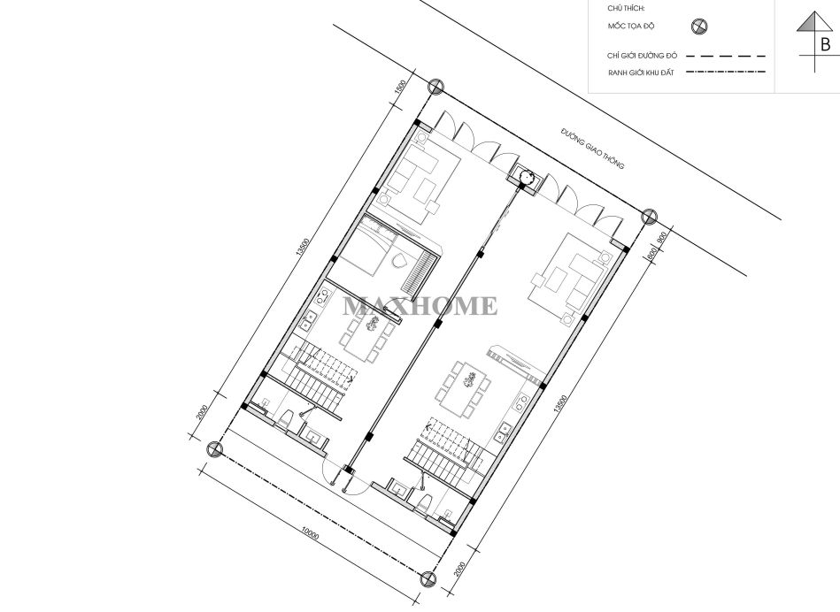
Khuôn viên đất có diện tích rộng rãi, nằm gần mặt đường giao thông, tạo điều kiện thuận lợi cho việc di chuyển và sinh hoạt hằng ngày. Mỗi căn nhà được xây dựng với kích thước 4,9 x 13,3m, được quy hoạch hợp lý nhằm tối ưu không gian sử dụng và đảm bảo sự thông thoáng cho các khu vực chức năng. Với quy mô 2 tầng 1 tum, tổng diện tích sử dụng của mỗi căn ước khoảng 130m², đáp ứng đầy đủ nhu cầu sinh hoạt của gia đình hiện đại, đồng thời vẫn đảm bảo tính thẩm mỹ và hiệu quả sử dụng lâu dài.

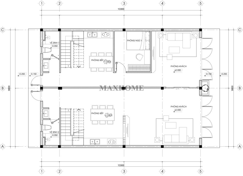
Về bố trí công năng tầng 1, hai căn nhà liền kề được sắp xếp linh hoạt nhằm đáp ứng nhu cầu sử dụng riêng của từng gia đình. Căn bên phải gồm không gian phòng khách đặt phía trước, tiếp đến là khu vực bếp – phòng ăn được bố trí gọn gàng, đảm bảo sự tiện nghi trong sinh hoạt, và nhà vệ sinh chung được đặt ở cuối nhà để tối ưu diện tích. Trong khi đó, căn bên trái có cách tổ chức khác biệt với phòng khách phía trước, tiếp đến là phòng ngủ số 01 diện tích nhỏ, phù hợp cho người lớn tuổi hoặc làm phòng đa năng, sau cùng là khu vực bếp – phòng ăn và nhà vệ sinh chung bố trí cuối nhà, giúp không gian luôn riêng tư và thuận tiện khi sử dụng.

Không gian tầng 2 của hai căn nhà được bố trí đồng bộ về công năng, đảm bảo sự thống nhất và thuận tiện trong quá trình sử dụng. Phòng thờ được thiết kế trang nghiêm, đặt ở vị trí phù hợp phong thủy, mang lại sự yên tĩnh và tôn nghiêm cho không gian thờ cúng của gia đình. Liền kề là hai phòng ngủ có diện tích hợp lý, đảm bảo sự riêng tư, thông thoáng và đáp ứng nhu cầu nghỉ ngơi cho các thành viên. Nhà vệ sinh chung được bố trí ở cuối nhà, giúp tối ưu diện tích sử dụng, đồng thời tạo sự thuận tiện trong sinh hoạt hằng ngày cho toàn bộ tầng.

Tầng tum được bố trí làm không gian sân thượng chung, đóng vai trò là khu vực sinh hoạt mở cho cả gia đình. Không gian này có thể linh hoạt sử dụng để trồng cây xanh, bố trí tiểu cảnh, khu thư giãn hoặc sân phơi, góp phần cải thiện vi khí hậu và tăng sự thông thoáng cho ngôi nhà phố. Bên cạnh đó, sân thượng còn tạo khoảng đệm giúp giảm hấp thụ nhiệt cho các tầng dưới, đồng thời nâng cao giá trị sử dụng và tính thẩm mỹ cho toàn bộ công trình.












