Thiết kế nhà 1 tầng hiện đại, đẹp như khu nghỉ dưỡng mini tại gia | MH06034
| Chủ đầu tư: Anh Nguyễn Thanh Xuân | Số tầng: 1 |
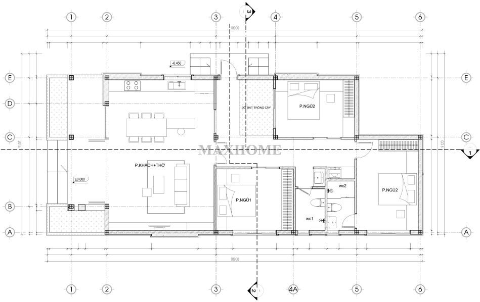
| Địa chỉ: Đức Mạnh, Đắk Mil, Đắk Nông | Diện tích xây dựng: 9,1 x 18,9m |
| Loại hình: Nhà mái Nhật hiện đại | Tổng diện tích: 125m2 |
| Công năng:
Phòng khách + thờ, phòng bếp, 3 phòng ngủ, 2 wc |
|
Gia đình anh Xuân tại Đắk Nông ước mơ một mẫu thiết kế nhà 1 tầng hiện đại, tinh tế và đầy chất thơ nên đã liên hệ Maxhome để có thể thực hiện được. Ngay khi nhìn vào bản phối cảnh này, gia đình anh đã dễ dàng bị chinh phục bởi vẻ đẹp bình yên, sang trọng chẳng kém gì một khu nghỉ dưỡng mini thực thụ. Sự kết hợp hoàn hảo giữa đường nét kiến trúc tối tân và không gian mở thoáng đãng đã tạo nên một dấu ấn độc bản giữa vùng đất Tây Nguyên đầy nắng và gió.
Ngôi nhà 1 tầng hiện đại của anh Xuân tọa lạc trên một khuôn viên đất rộng rãi cho phép đội ngũ thiết kế tự do bay bổng với các hình khối ngang. Mặt tiền 9,1m của ngôi nhà là sự giao thoa tuyệt vời giữa các loại vật liệu cao cấp. Những diện tường trắng sứ tinh khôi được điểm xuyết bởi các mảng ốp đá tự nhiên màu xám ghi và những nan gỗ nhựa ngoài trời màu nâu trầm ấm

Sự đối lập giữa nét thô ráp của đá và sự mịn màng của gỗ tạo nên một hiệu ứng thị giác mạnh mẽ giúp công trình thoát khỏi sự đơn điệu thường thấy của những mẫu nhà cấp 4 truyền thống. Đặc biệt, hệ thống cửa chính và cửa sổ đều sử dụng kính cường lực khung nhôm xingfa cao cấp. Những ô kính lớn này là phương tiện kết nối con người với thiên nhiên và giúp đón ánh sáng tự nhiên và gió trời, đồng thời giúp không gian bên trong luôn ngập tràn năng lượng và sự tươi mới.

Một chi tiết đắt giá khiến ngôi nhà 1 tầng hiện đại này thực sự giống một resort mini chính là thiết kế khoảng hiên và sân vườn. Phần hiên nhà được mở rộng với hệ lam che nắng hiện đại đua dài 3m để gia chủ có thể bố trí một bộ bàn ghế mây nhỏ để nhâm nhi tách cà phê vào mỗi buổi sáng. Phía hông nhà, một góc thư giãn với ô che và ghế tựa được bố trí ngay trên thảm cỏ xanh mướt mang tới không gian nghỉ dưỡng tại gia tuyệt vời. Cách thiết kế này giúp tối ưu hóa diện tích và tạo ra những khoảng lặng cần thiết để cả gia đình anh Xuân có thể tổ chức những bữa tiệc BBQ ngoài trời hay đơn giản là cùng nhau ngắm nhìn hoàng hôn buông xuống.

Không chỉ chú trọng vào thẩm mỹ, các thông số kỹ thuật cũng được tính toán kỹ lưỡng để phù hợp với khí hậu đặc trưng của Đắk Nông. Hệ móng đơn kiên cố kết hợp với tường đôi chống nóng giúp ngôi nhà luôn mát mẻ vào mùa khô và ấm áp vào mùa mưa. Tiếp theo, phần sân vườn được lát đá chống trơn trượt rất tốt, giúp đảm bảo an toàn cho người già và trẻ nhỏ và tăng thêm vẻ sang trọng cho lối vào

Khu vực tường rào cũng được thiết kế đồng bộ với phong cách hiện đại của mẫu nhà cấp 4 bằng cách sử dụng các thanh nan sắt thông thoáng giúp lưu thông không khí mà vẫn đảm bảo tính riêng tư và an ninh tuyệt đối cho gia đình. Với sự tâm huyết của đội ngũ thiết kế Maxhome và gu thẩm mỹ tinh tế của gia chủ, ngôi nhà anh Xuân chắc chắn sẽ là một điểm sáng nổi bật, góp phần định nghĩa lại phong cách sống hiện đại tại vùng đất Đắk Nông đầy tiềm năng.


Anh Xuân sở hữu mảnh đất rất rộng lớn ở Đắk Nông, căn nhà vườn 1 tầng hiện đại được xây dựng gọn gàng phía trước và để lại phần đất phía sau trồng cây xanh tươi mát. Hướng nhà được xây cũng rất đẹp theo hướng Tây Bắc và nhìn ra mặt đường, tuy nhiên vẫn cách một khoảng lớn 11m từ cổng trước khi vào tới nhà, mảnh đất này quá đẹp để tạo nên một resort tại gia.

Bên dưới hệ mái Nhật là một sự sắp xếp không gian cực kỳ khoa học với diện tích xây dựng 125m2 bao gồm đầy đủ công năng từ phòng khách sang trọng, phòng bếp ấm cúng cho đến các phòng ngủ tiện nghi. Trong khuôn viên nhà còn có một không gian xanh nhỏ tô điểm sinh khí cho căn nhà đặt ở giữa các không gian ngủ nghỉ. Hệ thống nhà vệ sinh có 2 phòng giúp cho mọi người trong nhà dễ dàng sử dụng.












