Thiết kế nhà phố 2 tầng mặt tiền 5m đẹp lung linh, ai cũng mê | MH05420
| Chủ đầu tư: Anh Nguyễn Đình Chung | Số tầng: 2 |
| Địa chỉ: Vinh, Nghệ An | Diện tích xây dựng: 5 x 19,3m |
| Loại hình: Nhà lô phố hiện đại | Tổng diện tích: 180m2 |
Công năng:
|
|
Sở hữu quỹ đất 5m mặt tiền, nhiều gia đình hiện nay lựa chọn xây dựng nhà phố 2 tầng mặt tiền 5m vừa đẹp vừa tối ưu công năng. Đặc biệt, nhờ cách bố trí thông minh, từng mét vuông đều được tận dụng tối đa, phù hợp với gia đình trẻ cũng như những gia đình đông thành viên. Đây chính là xu hướng thiết kế nhà phố được ưa chuộng nhất năm 2025.
Đối với những gia đình sở hữu khuôn viên đất hạn chế cùng mặt tiền khiêm tốn, mẫu nhà phố 2 tầng mặt tiền 5m chính là giải pháp tối ưu. Thiết kế mẫu nhà đẹp này không chỉ giúp tận dụng triệt để diện tích, mang lại sự gọn gàng và khoa học trong bố trí công năng, mà còn đảm bảo một không gian sống tiện nghi, hiện đại và tiết kiệm chi phí xây dựng.

Mẫu nhà phố 2 tầng mặt tiền 5m được lựa chọn gam màu trắng làm chủ đạo, kết hợp khéo léo với sắc xám xanh và ghi, tạo nên sự phân chia màu sắc hài hòa và tinh tế. Cách phối màu này không chỉ làm nổi bật các đường nét kiến trúc hiện đại mà còn mang đến cảm giác thanh thoát, sang trọng cho tổng thể công trình. Nhờ đó, ngôi nhà vừa giữ được vẻ đẹp trang nhã, vừa toát lên sự bền vững và cuốn hút theo thời gian.

Ban công của ngôi nhà được thiết kế rộng rãi, thông thoáng, sử dụng lan can kính cường lực chắc chắn giúp mở rộng tầm nhìn và mang lại vẻ đẹp thanh thoát, hiện đại. Không gian này còn có thể được tận dụng để bố trí thêm chậu cây cảnh hoặc tiểu cảnh nhỏ, vừa tạo điểm nhấn xanh mát vừa góp phần điều hòa không khí. Ở tầng 1, mặt tiền nổi bật với lớp ốp gạch giả đá sang trọng kết hợp cùng mảng xanh tiểu cảnh, mang đến sự cân bằng giữa vẻ đẹp hiện đại và sự gần gũi thiên nhiên, tạo cảm giác thoải mái, dễ chịu cho gia chủ mỗi khi trở về nhà.

Toàn bộ hệ thống cửa của mẫu nhà phố 2 tầng được bố trí hợp lý ở các mặt xung quanh công trình, giúp không gian bên trong luôn thông thoáng và tràn ngập ánh sáng tự nhiên. Chất liệu nhôm Xingfa kết hợp với kính cường lực cao cấp không chỉ đảm bảo độ bền chắc, khả năng cách âm – cách nhiệt tốt mà còn mang lại vẻ đẹp hiện đại, tinh tế cho tổng thể kiến trúc.

Ở góc nhìn từ trên cao này, ta có thể quan sát rõ toàn bộ tổng thể công trình nhà phố 2 tầng mặt tiền 5m. Ngôi nhà được thiết kế mái bằng hiện đại, trên mái có đặt bồn nước inox kết hợp hệ thống năng lượng mặt trời, vừa đảm bảo sinh hoạt hằng ngày vừa tiết kiệm chi phí điện năng.
Phần sân thượng khá rộng, có thể tận dụng làm sân phơi hoặc trồng cây xanh để tạo không gian thư giãn cho gia đình. Các ô cửa sổ được bố trí dọc theo chiều dài ngôi nhà, vừa giúp lấy sáng vừa hỗ trợ lưu thông gió, mang lại sự thoáng mát cho toàn bộ không gian bên trong.

Ở góc nhìn chính diện, ngôi nhà phố 2 tầng mặt tiền 5m hiện lên với phong cách kiến trúc hiện đại, tinh gọn nhưng vẫn đầy sự sang trọng. Điểm nhấn đầu tiên là hệ cổng được thiết kế vuông vức, sử dụng chất liệu sắt sơn tĩnh điện kết hợp các nan gỗ ngang, vừa đảm bảo sự kiên cố vừa tạo cảm giác thoáng đãng. Hai gam màu nâu gỗ và đen kim loại kết hợp hài hòa, nổi bật trên nền sơn trắng chủ đạo.

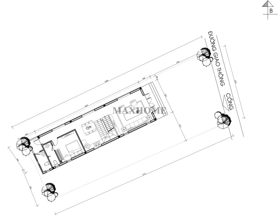
Công trình nhà phố 2 tầng được xây dựng ngay gần trục đường giao thông thuận tiện, với kích thước khu đất 5 x 19,3m, mang đến sự cân đối trong bố cục tổng thể. Tổng diện tích sử dụng của ngôi nhà khoảng 180m², đủ để đáp ứng nhu cầu sinh hoạt thoải mái cho một gia đình nhiều thế hệ. Bên cạnh đó, lợi thế nằm gần đường lớn không chỉ tạo điều kiện thuận tiện cho việc di chuyển, giao thương mà còn góp phần nâng tầm giá trị bất động sản cho công trình.

Bước qua sảnh chính, ta sẽ bắt gặp không gian phòng khách rộng rãi, được bố trí liền kề với khu vực cầu thang tạo nên sự kết nối mạch lạc trong sinh hoạt. Tiếp đến là phòng bếp kết hợp phòng ăn, nơi sum vầy của cả gia đình. Bên cạnh khu vực này là một phòng ngủ tiện nghi, được thiết kế với nhà vệ sinh khép kín đảm bảo sự riêng tư. Ngoài ra, công trình còn có một nhà vệ sinh chung bố trí cuối nhà, thuận tiện cho việc sử dụng khi đi từ cửa hậu hoặc khi gia đình có khách đến chơi.

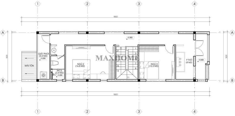
Tầng 2 được bố trí phòng thờ trang nghiêm, đặt ở vị trí hướng ra mặt tiền, vừa đảm bảo yếu tố phong thủy vừa thể hiện sự tôn kính với truyền thống gia đình. Bên cạnh đó, tầng này còn có 2 phòng ngủ thoáng mát, được thiết kế hợp lý để mang lại sự riêng tư và tiện nghi cho các thành viên. Một nhà vệ sinh chung được sắp xếp khoa học, thuận tiện cho nhu cầu sinh hoạt. Đặc biệt, từ lối cửa hậu có thể di chuyển ra khu vực giặt và sân phơi, tạo nên không gian chức năng gọn gàng, đáp ứng đầy đủ nhu cầu sinh hoạt hằng ngày.












