Thiết kế nhà phố 3 tầng hiện đại với phối màu phong thủy hợp mệnh | MH05747

Chủ đầu tư: Anh Nguyễn Văn Bằng Số tầng: 3
Địa chỉ: Tiền Phong, Bắc Ninh Diện tích xây dựng: 4,5 x 16,6m
Loại hình: Nhà lô phố hiện đại Tổng diện tích: 178m2
Công năng:
  • Tầng 1: Phòng khách, phòng bếp ăn, 1 phòng ngủ, 1 wc
  • Tầng 2: 3 phòng ngủ, 1 wc
  • Tầng 3: Phòng thờ, giặt phơi, sân thượng

Nhà phố 3 tầng hiện đại không chỉ là nơi để sinh sống mà còn là không gian thể hiện phong cách và gu thẩm mỹ của gia chủ. Một trong những yếu tố quan trọng giúp nâng cao giá trị thẩm mỹ và mang lại vận khí tốt cho ngôi nhà chính là phối màu phong thủy. Việc lựa chọn màu sắc hài hòa, phù hợp với mệnh của gia chủ không chỉ tạo cảm giác dễ chịu, tinh tế mà còn mang lại sự thịnh vượng, may mắn và cân bằng năng lượng cho cả gia đình.

Nhà phố 3 tầng được thiết kế theo phong cách hiện đại với các mảng khối vuông vức, đường nét sắc sảo và loại bỏ hoàn toàn những chi tiết trang trí rườm rà. Kiến trúc tập trung vào sự tinh gọn, bố cục rõ ràng và tính thẩm mỹ bền vững theo thời gian. Với kinh nghiệm dày dặn trong việc thiết kế các mẫu nhà đẹp, Maxhome luôn đảm bảo mang đến cho khách hàng những phương án thiết kế tối ưu, phù hợp nhu cầu khách hàng hiện nay.

Gam màu chủ đạo của mẫu nhà phố 3 tầng hiện đại là tông trắng thanh lịch, giúp tổng thể công trình trở nên sáng thoáng và sang trọng. Đi cùng đó là sự kết hợp hài hòa của các vật liệu trang trí hiện đại như gạch granite ốp mặt tiền tầng 1, tạo cảm giác chắc chắn và bền vững. Ở tầng 2, kiến trúc được điểm tô bằng những mảng gạch trang trí tinh tế, mang lại chiều sâu cho mặt đứng. Các khu vực ban công được nhấn mạnh bằng lớp sơn giả đá, giúp tăng tính thẩm mỹ và tạo điểm nhìn ấn tượng.

Trần mỗi tầng được ốp gỗ nhựa, vừa đảm bảo vẻ đẹp tự nhiên, vừa có khả năng chống ẩm, bền màu trước tác động thời tiết. Toàn bộ bảng màu sử dụng trong thiết kế đều được lựa chọn dựa trên phong thủy của gia chủ, nhằm mang lại năng lượng tốt, thu hút tài lộc và tạo sự cân bằng cho không gian sống.

Ngoài phối cảnh ban ngày, đội ngũ KTS Maxhome còn triển khai thêm phối cảnh ban đêm nhằm giúp khách hàng dễ dàng hình dung vẻ đẹp của ngôi nhà khi ánh sáng lên. Hệ thống đèn được bố trí tinh tế tại trần các tầng và những vị trí trọng điểm của mặt tiền, tạo hiệu ứng ánh sáng lung linh, tôn lên đường nét kiến trúc hiện đại. Không chỉ tăng tính thẩm mỹ, hệ đèn còn góp phần nâng cao độ an toàn và sự thuận tiện cho gia chủ khi di chuyển vào buổi tối.

Tầng 3 là tầng cao nhất của nhà phố 3 tầng có sân trước được thiết kế nổi bật với hệ mái kính poly hiện đại. Phần mái này giúp che chắn hiệu quả cho khu vực ban công, đồng thời cho phép ánh sáng tự nhiên tràn vào không gian, tạo cảm giác thoáng đãng và dễ chịu. Nhờ đặc tính lấy sáng tốt, tầng 3 trở thành khu vực đón nhận nhiều ánh sáng tự nhiên nhất trong toàn bộ công trình, góp phần nâng cao tính thẩm mỹ và sự tiện nghi trong quá trình sử dụng.

Nhà phố 3 tầng sử dụng hệ mái bằng là lựa chọn hoàn toàn hợp lý trong kiến trúc hiện đại ngày nay. Mái bằng được ưa chuộng nhờ chi phí thi công phải chăng, kết cấu đơn giản và độ bền cao. Đặc biệt, loại mái này ít bị ảnh hưởng bởi gió bão, giúp công trình ổn định và an toàn hơn trong điều kiện thời tiết khắc nghiệt. Ngoài ra, mái bằng còn cho phép tận dụng tối đa diện tích phía trên để làm sân thượng, khu phơi đồ hoặc không gian thư giãn ngoài trời, góp phần tăng tính tiện ích cho ngôi nhà.

Công trình được xây dựng theo hướng Nam – một trong những hướng nhà được đánh giá cao về phong thủy nhờ khả năng đón gió mát và ánh sáng ổn định quanh năm. Ngôi nhà có kích thước 4,5 x 16,6m phù hợp với đặc trưng của nhà phố hiện đại. Tổng diện tích sử dụng khoảng 178m², được bố trí hợp lý để tối ưu công năng, mang đến không gian sống tiện nghi và thoải mái cho gia đình.

Mặt bằng định vị công trình

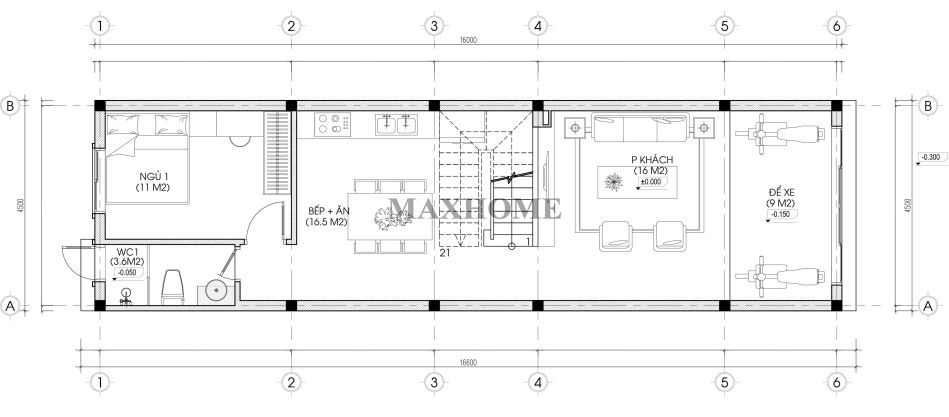
Từ cổng bước vào là khu vực để xe được bố trí rộng rãi, thuận tiện cho việc di chuyển và sinh hoạt hằng ngày. Tiến vào bên trong là không gian phòng khách thoáng sáng, được thiết kế làm nơi tiếp đón khách và sinh hoạt chung của gia đình. Qua khu vực cầu thang là phòng bếp kết hợp phòng ăn, bố trí gọn gàng và đầy đủ tiện nghi. Cuối nhà là một phòng ngủ thích hợp cho người lớn tuổi hoặc khách đến chơi, đi kèm một nhà vệ sinh chung đặt bên cạnh, đảm bảo sự thuận tiện trong quá trình sử dụng.

Mặt bằng bố trí công năng tầng 1

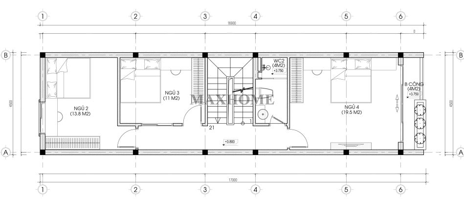
Tầng 2 được bố trí gồm 3 phòng ngủ, đáp ứng nhu cầu sinh hoạt của các thành viên trong gia đình. Trong đó, phòng ngủ số 04 có thiết kế ban công thoáng mát, giúp đón gió và ánh sáng tự nhiên, tạo không gian thư giãn dễ chịu. Các phòng ngủ trên tầng này sử dụng chung một nhà vệ sinh, bố trí hợp lý để thuận tiện cho việc sinh hoạt hằng ngày.

Mặt bằng bố trí công năng tầng 2

Tầng 3 được bố trí phòng thờ trang nghiêm, là không gian dành cho việc thờ cúng và gìn giữ nét đẹp truyền thống của gia đình. Từ phòng thờ có lối cửa dẫn ra sân thượng thoáng rộng, thuận tiện cho việc sinh hoạt và thư giãn ngoài trời. Khu vực giặt và phơi đồ cũng được thiết kế rộng rãi, đảm bảo sự tiện lợi và khô thoáng trong quá trình sử dụng.

Mặt bằng bố trí công năng tầng 3

Yêu cầu tư vấn

    *Vui lòng để lại thông tin, nhân viên tư vấn sẽ liên hệ lại quý khách trong thời gian sớm nhất