Nhà 2 tầng tân cổ điển với mái ngói đỏ mang hơi thở truyền thống | MH05807
| Chủ đầu tư: Chú Trần Văn Thuỷ | Số tầng: 2 |
| Địa chỉ: Yên Lạc, Vĩnh Phúc | Diện tích xây dựng: 9,8 x 16,6m |
| Loại hình: Nhà mái Nhật tân cổ điển | Tổng diện tích: 265m2 |
Công năng:
|
|
Nhà 2 tầng tân cổ điển với mái ngói đỏ mang hơi thở truyền thống là gợi ý hoàn hảo cho những ai yêu sự thanh lịch nhưng vẫn muốn giữ lại nét quen thuộc của kiến trúc Việt xưa. Ngay trong bài viết này, Maxhome sẽ gửi tới bạn mẫu thiết kế nhà chú Thuỷ ở Vĩnh Phúc rất đẹp nhờ sự kết hợp khéo giữa phong cách tân cổ điển sang trọng và dấu ấn mái ngói đỏ truyền thống đã tạo nên một tổng thể hài hòa và gần gũi.
Cảm giác đầu tiên khi nhìn thấy căn nhà 2 tầng tân cổ điển mái ngói đỏ là sự cân bằng giữa vẻ đẹp hiện đại và chút hoài niệm thân thương, khác hoàn toàn với những mẫu nhà 2 tầng mái Nhật hiện đại thường thấy. Từng chi tiết ngoại thất đều được Maxhome chăm chút để làm nổi bật phong cách tân cổ điển mà gia đình chú Thuỷ yêu thích.

Điểm làm ai cũng nhớ đến căn nhà này chính là gam màu đỏ của hệ mái Nhật. Hệ mái được tạo hình tinh tế và giữ lại sự thanh thoát vốn có của mái Nhật nhưng khoác lên mình sắc đỏ truyền thống đặc trưng của nhiều ngôi nhà Việt. Khi ánh nắng chiếu vào, phần mái như sáng bừng mang lại cảm giác ấm áp và rất gần gũi. Phía dưới, nước sơn trắng làm nền cho toàn bộ thân nhà càng khiến phần mái đỏ trở nên nổi bật hơn.
Nhìn tổng thể, căn nhà 2 tầng tân cổ điển này toát lên vẻ sang trọng nhờ sự phối màu thông minh và đường nét chuẩn chỉ. Màu trắng tưởng chừng đơn giản nhưng khi kết hợp với phào chỉ kẻ sọc mềm mại lại tạo ra chiều sâu cho các mảng tường giúp ngôi nhà mang đúng tinh thần tân cổ điển mà vẫn nhẹ nhàng, không hề rối mắt.

Không chỉ tôn lên vẻ thanh lịch, màu sơn trắng còn làm cho hệ cửa gỗ trở thành điểm nhấn rõ nét. Cửa chính và cửa phụ đều dùng gỗ tự nhiên có màu nâu ấm nổi bật trên nền sơn trắng sáng. Hoa văn ở giữa cánh cửa được làm đối xứng, hệ pano gỗ dày 30mm tạo cảm giác chắc chắn và đẳng cấp. Trong hồ sơ thiết kế, Maxhome ghi rõ kích thước, cốt sàn và cốt dưới lanh tô để đảm bảo thi công chính xác. Nhờ vậy, từng chi tiết khi hiện lên đều sắc sảo, đúng chuẩn phong cách mà gia chủ mong muốn. Chính sự tỉ mỉ này đã góp phần làm nên một phiên bản hoàn thiện của nhà 2 tầng tân cổ điển đẹp và bền.

Bên hông nhà cũng được chăm chút kỹ lưỡng như mặt tiền. Các đường phào chỉ được giữ nguyên tinh thần tân cổ điển và không bị giản lược hay thay đổi phong cách. Nhờ vậy, khi đi quanh nhà chú Thuỷ, bạn sẽ cảm nhận được sự thống nhất và chỉn chu. Phía sau còn có một khoảng trống nhỏ dẫn từ cửa phụ ra sau nhà vừa tiện sinh hoạt vừa giúp thông thoáng cho toàn bộ không gian. Dù là mặt sau nhưng mọi chi tiết vẫn được bố trí gọn và đẹp, thể hiện sự đầu tư nghiêm túc trong thiết kế.

Nhìn lên tầng 2, ai cũng dễ bị thu hút bởi lan can sắt nghệ thuật màu đen cùng đường cong uốn mềm, họa tiết được làm đều tay nhưng không quá cầu kỳ. Lan can vừa đẹp mắt vừa đảm bảo an toàn cho các thành viên trong nhà. Ngay bên dưới, phào phân tầng chạy ngang giúp phân chia tầng 1 và tầng 2 rõ ràng để tạo sự cân đối cho mặt tiền. Khi nhìn từ xa, sự liên kết giữa lan can sắt, phào phân tầng, phào chỉ tường và hệ cửa tạo thành bố cục hoàn chỉnh cho một ngôi nhà 2 tầng tân cổ điển đúng chất vừa sang vừa hài hòa.

Đặc biệt, hệ mái Nhật của nhà chú Thuỷ được sử dụng lito thép hộp 30×30 kết hợp kèo thép hộp 50×100 để tạo nên bộ khung chắc chắn. Mái được đổ dốc đều ra bốn hướng giúp nước thoát nhanh, hạn chế đọng nước và tăng tuổi thọ công trình. Nhờ cách xử lý mái bài bản này mà tổng thể ngôi nhà 2 tầng càng thêm hoàn thiện, đủ vững chãi để gắn bó cùng gia đình trong thời gian dài.

Công trình nhà chú Thuỷ nằm trên mảnh đất rất rộng rãi và sở hữu tới 3 lối ra vào nhà, những lối đi này cũng góp phần quan trọng trong việc lưu thông không khí. Đánh giá tổng quan hướng nhà ở Tây Bắc được đặt phù hợp với phong thuỷ của gia chủ, đồng thời vẫn khéo thể hiện vẻ đẹp ngoại thất của ngôi nhà bằng cách thiết kế chỉn chu ở cả mặt tiền và bên hông.


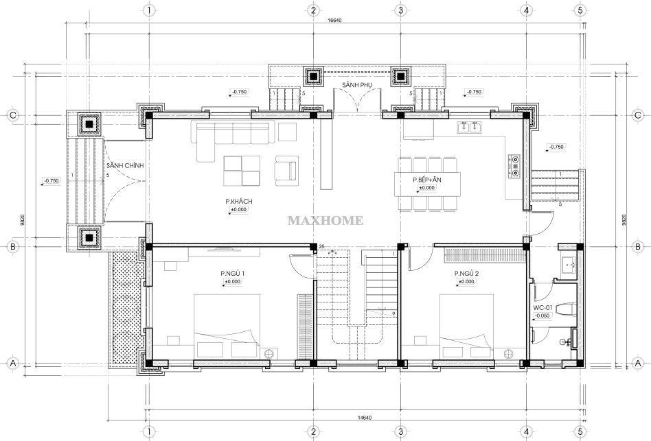
Tầng 1 của nhà chú Thuỷ được bố trí theo cách rất tiện cho sinh hoạt hằng ngày, đi vào trong nhà là phòng khách rộng rãi bố trí bộ bàn ghế sofa gọn gàng, bên cạnh là vách ngăn với phòng bếp ấm cúng, một vị trí ưu ái khi đặt cạnh sảnh phụ và kết nối liền mạch với cửa sau nhà rất thoáng mát cho một vị trí nấu nướng. Cùng tầng còn có 2 phòng ngủ dành cho ông bà và bố mẹ, ở giữa là cầu thang đi bộ lên tầng 2. Đi ra cửa phụ sau nhà sẽ dẫn ra nhà vệ sinh chung được đặt ở vị trí hợp lý, dễ sử dụng mà vẫn đảm bảo riêng tư.


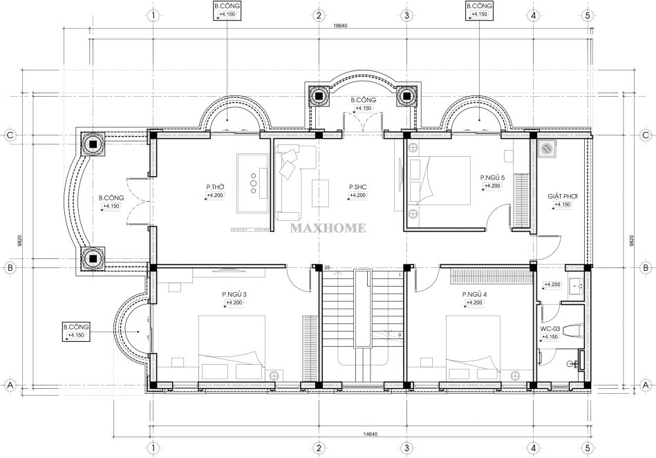
Lên tầng 2 tiến thẳng tới phòng sinh hoạt chung như một phòng khách nhỏ thứ hai trong nhà. Bên cạnh là phòng thờ được đặt ở vị trí trang trọng, hướng sáng đẹp phía mặt tiền và luôn giữ được sự nghiêm trang cần có. Ba phòng ngủ được chia đều giúp mỗi thành viên ở nhà chú Thuỷ có không gian nghỉ ngơi riêng tư. Một nhà vệ sinh chung nằm ở cuối hành lang để tiện sử dụng cho mọi phòng, cạnh đó cũng là sân phơi thoáng đãng, đón nắng gió tốt nên rất tiện cho việc giặt giũ và phơi đồ mỗi ngày.












